
Két utcáról nyíló, felújított családi ház tágas telekkel Ján
Két utcáról nyíló, felújított családi ház tágas telekkel Jánossomorján, percekre
az osztrák határtól!Leírás:Jánossomorján, csendes és rendezett környezetben
eladóvá vált egy 106 m˛-es, földszintes, 3 szobás családi ház, mely egy
hatalmas, 1176 m˛-es telken helyezkedik el. Az ingatlan kiváló lehetőséget kínál
készpénzel kereső családoknak, Ausztriába ingázóknak, vagy befektetőknek
egyaránt.Az ingatlanról:Az 1970-ben épült, masszív tégla falazatú ház 12 évvel
ezelőtt egy jelentős felújításon esett át. Ennek keretében teljesen új
cserépfedést kapott a tető, és a villanyvezeték-hálózatot is korszerűsítették. A
régi ablakokat hőszigetelt, műanyag nyílászárókra cserélték, melyek redőnnyel
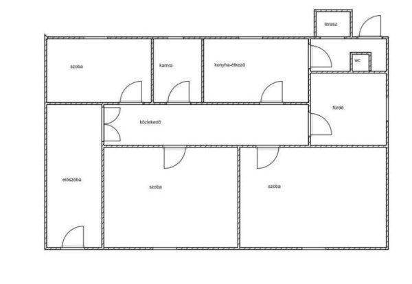
felszereltek.A ház elrendezése a mellékelt alaprajz szerint:3 külön bejáratú,
tágas szobaKonyha-étkezőKamraFürdőszobaKülön WCElőszoba és közlekedőEgy
hangulatos, kb. 4 m˛-es fedett teraszA déli tájolásnak köszönhetően a szobák
világosak és napfényesek. A ház alatt egy 18 m˛-es száraz pince is található,
amely kiválóan alkalmas tárolásra.Műszaki tartalom és extrák:Fűtés: A fűtési
rendszert kettős megoldás biztosítja: egy gázkazán és egy vegyes tüzelésű kazán
is rendelkezésre áll, így a fűtés gazdaságosan és rugalmasan
alakítható.Vízellátás: Az ingatlan saját vízműrendszerrel rendelkezik, így a
városi vízdíjtól mentes. A gáz és a csatorna a városi hálózatra van
kötve.Parkolás és telek: A telek különlegessége, hogy két utcáról is
megközelíthető. Az udvarban több autó számára is van beállási lehetőség,
valamint egy garázs és további melléképületek (műhely, tároló) is tartoznak az
ingatlanhoz. A hatalmas kert gazdálkodásra, pihenőkert kialakítására vagy akár a
ház építésére is lehetőséget ad.Elhelyezkedés:Jánossomorja egy dinamikusan
fejlődő város kiváló infrastruktúrával. Az ingatlan csendes utcában található,
mégis közel a központhoz, boltokhoz, iskolához. A legnagyobb előnye az
elhelyezkedésének, hogy az osztrák határ mindössze néhány perces autóúttal
elérhető, ami napi ingázáshoz is tökéletessé teszi.Ez a ház tökéletes választás,
ha egy stabil alapokon álló, már részben felújított, de saját ízlésére
formálható otthont keres egy stratégiailag is kiváló helyen.Amennyiben a
hirdetés felkeltette érdeklődését, keressen bizalommal a megadott telefonszámon
egy személyes megtekintésért!
az osztrák határtól!Leírás:Jánossomorján, csendes és rendezett környezetben
eladóvá vált egy 106 m˛-es, földszintes, 3 szobás családi ház, mely egy
hatalmas, 1176 m˛-es telken helyezkedik el. Az ingatlan kiváló lehetőséget kínál
készpénzel kereső családoknak, Ausztriába ingázóknak, vagy befektetőknek
egyaránt.Az ingatlanról:Az 1970-ben épült, masszív tégla falazatú ház 12 évvel
ezelőtt egy jelentős felújításon esett át. Ennek keretében teljesen új
cserépfedést kapott a tető, és a villanyvezeték-hálózatot is korszerűsítették. A
régi ablakokat hőszigetelt, műanyag nyílászárókra cserélték, melyek redőnnyel
felszereltek.A ház elrendezése a mellékelt alaprajz szerint:3 külön bejáratú,
tágas szobaKonyha-étkezőKamraFürdőszobaKülön WCElőszoba és közlekedőEgy
hangulatos, kb. 4 m˛-es fedett teraszA déli tájolásnak köszönhetően a szobák
világosak és napfényesek. A ház alatt egy 18 m˛-es száraz pince is található,
amely kiválóan alkalmas tárolásra.Műszaki tartalom és extrák:Fűtés: A fűtési
rendszert kettős megoldás biztosítja: egy gázkazán és egy vegyes tüzelésű kazán
is rendelkezésre áll, így a fűtés gazdaságosan és rugalmasan
alakítható.Vízellátás: Az ingatlan saját vízműrendszerrel rendelkezik, így a
városi vízdíjtól mentes. A gáz és a csatorna a városi hálózatra van
kötve.Parkolás és telek: A telek különlegessége, hogy két utcáról is
megközelíthető. Az udvarban több autó számára is van beállási lehetőség,
valamint egy garázs és további melléképületek (műhely, tároló) is tartoznak az
ingatlanhoz. A hatalmas kert gazdálkodásra, pihenőkert kialakítására vagy akár a
ház építésére is lehetőséget ad.Elhelyezkedés:Jánossomorja egy dinamikusan
fejlődő város kiváló infrastruktúrával. Az ingatlan csendes utcában található,
mégis közel a központhoz, boltokhoz, iskolához. A legnagyobb előnye az
elhelyezkedésének, hogy az osztrák határ mindössze néhány perces autóúttal
elérhető, ami napi ingázáshoz is tökéletessé teszi.Ez a ház tökéletes választás,
ha egy stabil alapokon álló, már részben felújított, de saját ízlésére
formálható otthont keres egy stratégiailag is kiváló helyen.Amennyiben a
hirdetés felkeltette érdeklődését, keressen bizalommal a megadott telefonszámon
egy személyes megtekintésért!
Részletek...
Adatlap
| Ár: | 39.900.000 Ft |
| Település: | Jánossomorja |
| A hirdető: | Ingatlaniroda ajánlatából |
| Értékesítés típusa: | Eladó |
| Használtság: | Használt |
| Telek nagysága (m2) : | 1176 |
| Épület hasznos területe (m2) : | 106.00 |
| Szobák száma: | 3 |
| Ingatlan állapota: | Normál állapotú |
| Feladás dátuma: | 2026.03.16 |
| Eddig megtekintették 5 alkalommal | |
A hirdető adatai
Kapcsolat a hirdetővel...
Családi házak rovaton belül a(z) "Két utcáról nyíló, felújított családi ház tágas telekkel Ján" című hirdetést látja. (fent)




























