
Családi ház Hegyeshalomban eladó!
Álmodd meg ? alakítsd át!Hatalmas telek, izgalmas lehetőségek, csendes
környékHegyeshalom nyugodt részén, 1076?m˛ es telken áll ez a 72?m˛ es családi
ház, amely tökéletes alap ahhoz, hogy belőle álmaid otthonát megvalósítsd. A ház
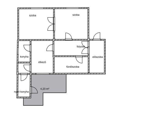
klasszikus vidéki elrendezésű: két külön nyíló szoba, étkező, konyha, előszoba,
fürdőszoba, valamint egy hasznos nyári konyha kapcsolódik hozzá. A nagy telek
kiváló lehetőséget kínál kertészkedésre, játszótér kialakítására, akár garázs
vagy műhely építésére is, néhány melléképület hasznos lehet
tárolásra. Alapterület: 72?m˛ ? tégla építés, stabil szerkezet Telek: 1076?m˛ ?
gondozott kert, gyümölcsfák, veteményes is kialakítható Elosztás: 2 szoba +
étkező + konyha + előszoba + fürdőszoba + nyári konyha Fűtés: cserépkályha,
gázcsonk az udvaron Építés éve: 1958, részleges felújítás: 2005 ? a ház belső
terei korszerűsítésre szorulnak Közművek: víz, csatorna, gázcsonk az udvaron és
villany (3x15A+10A) bevezetveA jelenlegi állapotában a ház felújítandó, így
ideális választás mindenkinek, aki saját elképzelései szerint szeretné
kialakítani életterét. A bővítési lehetőségeidnek köszönhetően könnyedén
tervezhetsz. A 1076?m˛ es kertben ? elfér a hobbikert, játszótér vagy akár egy
kis házikó is.Kinek ajánlom? Fiatal pároknak, családoknak, akik szívesen
alakítanák saját ízlésükre otthonukat. Kreatív vevőknek, akik szeretik a nagy
telket és a vidéki hangulatot. Befektetőknek, akik látják a nagy telekben és az
átalakítható házban rejlő potenciált.Hegyeshalom a magyar?osztrák határnál
fekszik, kiváló közlekedéssel az M1 es autópálya és vasútállomás révén. A
faluban minden fontos intézmény elérhető ? óvoda, iskola, bolt, posta ?,
Mosonmagyaróvár pedig mindössze 10 perc autóval. Ha egy olyan ingatlant keresel,
amit saját ízlésed szerint újíthatsz fel, és ahol a kert is fontos szempont, ne
hagyd ki ezt a lehetőséget!Érdeklődj még ma, és nézd meg személyesen, milyen
otthont varázsolhatsz ebből a házból!
környékHegyeshalom nyugodt részén, 1076?m˛ es telken áll ez a 72?m˛ es családi
ház, amely tökéletes alap ahhoz, hogy belőle álmaid otthonát megvalósítsd. A ház
klasszikus vidéki elrendezésű: két külön nyíló szoba, étkező, konyha, előszoba,
fürdőszoba, valamint egy hasznos nyári konyha kapcsolódik hozzá. A nagy telek
kiváló lehetőséget kínál kertészkedésre, játszótér kialakítására, akár garázs
vagy műhely építésére is, néhány melléképület hasznos lehet
tárolásra. Alapterület: 72?m˛ ? tégla építés, stabil szerkezet Telek: 1076?m˛ ?
gondozott kert, gyümölcsfák, veteményes is kialakítható Elosztás: 2 szoba +
étkező + konyha + előszoba + fürdőszoba + nyári konyha Fűtés: cserépkályha,
gázcsonk az udvaron Építés éve: 1958, részleges felújítás: 2005 ? a ház belső
terei korszerűsítésre szorulnak Közművek: víz, csatorna, gázcsonk az udvaron és
villany (3x15A+10A) bevezetveA jelenlegi állapotában a ház felújítandó, így
ideális választás mindenkinek, aki saját elképzelései szerint szeretné
kialakítani életterét. A bővítési lehetőségeidnek köszönhetően könnyedén
tervezhetsz. A 1076?m˛ es kertben ? elfér a hobbikert, játszótér vagy akár egy
kis házikó is.Kinek ajánlom? Fiatal pároknak, családoknak, akik szívesen
alakítanák saját ízlésükre otthonukat. Kreatív vevőknek, akik szeretik a nagy
telket és a vidéki hangulatot. Befektetőknek, akik látják a nagy telekben és az
átalakítható házban rejlő potenciált.Hegyeshalom a magyar?osztrák határnál
fekszik, kiváló közlekedéssel az M1 es autópálya és vasútállomás révén. A
faluban minden fontos intézmény elérhető ? óvoda, iskola, bolt, posta ?,
Mosonmagyaróvár pedig mindössze 10 perc autóval. Ha egy olyan ingatlant keresel,
amit saját ízlésed szerint újíthatsz fel, és ahol a kert is fontos szempont, ne
hagyd ki ezt a lehetőséget!Érdeklődj még ma, és nézd meg személyesen, milyen
otthont varázsolhatsz ebből a házból!
Részletek...
Adatlap
| Ár: | 49.900.000 Ft |
| Település: | Hegyeshalom |
| A hirdető: | Ingatlaniroda ajánlatából |
| Értékesítés típusa: | Eladó |
| Használtság: | Használt |
| Telek nagysága (m2) : | 1076 |
| Épület hasznos területe (m2) : | 72.00 |
| Szobák száma: | 2 |
| Komfort: | Komfortos |
| Ingatlan állapota: | Felújítandó |
| Feladás dátuma: | 2026.03.16 |
| Eddig megtekintették 7 alkalommal | |
A hirdető adatai
Kapcsolat a hirdetővel...
Családi házak rovaton belül a(z) "Családi ház Hegyeshalomban eladó!" című hirdetést látja. (fent)




























