
Új Építésű, A+ Energetikai Besorolású Családi Ház Eladó! - M
Új Építésű, A+ Energetikai Besorolású Családi Ház Mosonszolnokon!Kivételes
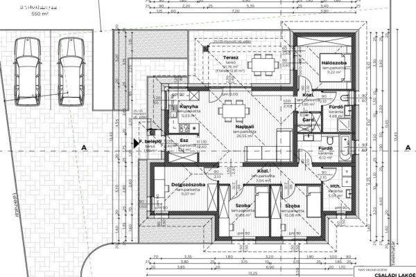
lehetőség! Eladó egy modern, újonnan épülő családi ház 550 nm telekkel
Mosonszolnokon, amely a legszigorúbb energetikai követelményeknek is megfelel,
kiemelkedő A+ besorolással!A főbb adatok, amelyek garantálják az alacsony
rezsit: Helyszín: Mosonszolnok Alapterület: 103,80 m˛ hasznos alapterület
Elosztása: 4 szoba, nappali-konyha, 2 fürdőszoba, gardrób, háztartási
helyiség, nagy terasz (udvari részen két kocsibeálló) Energetikai minőség: A+
Környezettudatosság: Rendkívül alacsony CO? kibocsátás: A+ besorolás. Fűtési
energiaigény: Éves nettó igény mindössze 42,10 kWh/m˛év. Az épület fűtését a
háztartási helyiségben elhelyezett levegő-víz rendszerű hőszivattyú fogja
biztosítaniKiváló Műszaki Tartalom: Hőszigetelés: A falakban 20 cm, a födémen 30
cm vastag szigetelés, valamint a talajon fekvő padló is kiválóan
szigetelt. Nyílászárók: Korszerű, alacsony hőátbocsátási tényezőjű (U_ii=0,80
W/m˛K, U_nv=1,00 W/m˛K) ablakok és ajtók, redőnnyel és függönnyel ellátva a
nyári hővédelem érdekében.
lehetőség! Eladó egy modern, újonnan épülő családi ház 550 nm telekkel
Mosonszolnokon, amely a legszigorúbb energetikai követelményeknek is megfelel,
kiemelkedő A+ besorolással!A főbb adatok, amelyek garantálják az alacsony
rezsit: Helyszín: Mosonszolnok Alapterület: 103,80 m˛ hasznos alapterület
Elosztása: 4 szoba, nappali-konyha, 2 fürdőszoba, gardrób, háztartási
helyiség, nagy terasz (udvari részen két kocsibeálló) Energetikai minőség: A+
Környezettudatosság: Rendkívül alacsony CO? kibocsátás: A+ besorolás. Fűtési
energiaigény: Éves nettó igény mindössze 42,10 kWh/m˛év. Az épület fűtését a
háztartási helyiségben elhelyezett levegő-víz rendszerű hőszivattyú fogja
biztosítaniKiváló Műszaki Tartalom: Hőszigetelés: A falakban 20 cm, a födémen 30
cm vastag szigetelés, valamint a talajon fekvő padló is kiválóan
szigetelt. Nyílászárók: Korszerű, alacsony hőátbocsátási tényezőjű (U_ii=0,80
W/m˛K, U_nv=1,00 W/m˛K) ablakok és ajtók, redőnnyel és függönnyel ellátva a
nyári hővédelem érdekében.
Részletek...
Adatlap
| Ár: | 89.900.000 Ft |
| Település: | Mosonszolnok |
| A hirdető: | Ingatlaniroda ajánlatából |
| Értékesítés típusa: | Eladó |
| Használtság: | Új építésű |
| Telek nagysága (m2) : | 550 |
| Épület hasznos területe (m2) : | 103.00 |
| Szobák száma: | 5 |
| Feladás dátuma: | 2026.03.16 |
| Eddig megtekintették 4 alkalommal | |
A hirdető adatai
Kapcsolat a hirdetővel...
Családi házak rovaton belül a(z) "Új Építésű, A+ Energetikai Besorolású Családi Ház Eladó! - M" című hirdetést látja. (fent)




























