
Városközpont és Hatalmas Telek! - Mosonmagyaróvár
Álomtelek, Központi Életérzés Mosonmagyaróváron!Képzelje el a lehetőségeket! Ez
az 1965-ös téglaépítésű, 90 nm-es felújítandó családi ház a városközpontban
várja. 945 nm-es, két utcáról is megközelíthető, hatalmas telke igazi kincs! Pár
lépesre a bevásárlási lehetőség és egy vízparti sétány is.A házban
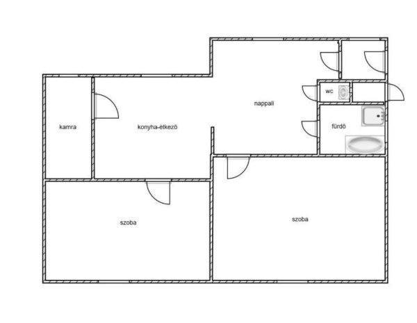
konyha-étkező, kamra, nappali és 2 tágas szoba biztosítja a kényelmet (lásd
alaprajz). Az egyik szobából könnyedén kialakíthat barátságos gyerekszobát vagy
otthoni irodát.Jól karbantartott gázkazánnal, műanyag ablakokkal a csendes
éjszakákért. Ráadásul: nagy melléképületek, borospince, és központi
elhelyezkedés! Itt a hely, ahol a nagy megosztató telek értékével és a központi
fekvés kényelmével álmodhatja meg a jövőjét.Ne maradjon le, nézze meg még ma!
az 1965-ös téglaépítésű, 90 nm-es felújítandó családi ház a városközpontban
várja. 945 nm-es, két utcáról is megközelíthető, hatalmas telke igazi kincs! Pár
lépesre a bevásárlási lehetőség és egy vízparti sétány is.A házban
konyha-étkező, kamra, nappali és 2 tágas szoba biztosítja a kényelmet (lásd
alaprajz). Az egyik szobából könnyedén kialakíthat barátságos gyerekszobát vagy
otthoni irodát.Jól karbantartott gázkazánnal, műanyag ablakokkal a csendes
éjszakákért. Ráadásul: nagy melléképületek, borospince, és központi
elhelyezkedés! Itt a hely, ahol a nagy megosztató telek értékével és a központi
fekvés kényelmével álmodhatja meg a jövőjét.Ne maradjon le, nézze meg még ma!
Részletek...
Adatlap
| Ár: | 79.900.000 Ft |
| Település: | Mosonmagyaróvár |
| A hirdető: | Ingatlaniroda ajánlatából |
| Értékesítés típusa: | Eladó |
| Használtság: | Használt |
| Telek nagysága (m2) : | 945 |
| Épület hasznos területe (m2) : | 90.00 |
| Szobák száma: | 2 |
| Félszobák száma: | 1 |
| Ingatlan állapota: | Normál állapotú |
| Feladás dátuma: | 2026.03.16 |
| Eddig megtekintették 6 alkalommal | |
A hirdető adatai
Kapcsolat a hirdetővel...
Családi házak rovaton belül a(z) "Városközpont és Hatalmas Telek! - Mosonmagyaróvár" című hirdetést látja. (fent)




























