
Modern Elegancia és Fenntarthatóság a Duna Lakóparkban - Mos
PRÉMIUM CSALÁDI HÁZ 4 HÁLÓSZOBÁVAL ? MODERN TECHNOLÓGIA, ALACSONY
REZSIMosonmagyaróváron, a Duna Lakópark csendes és biztonságos környezetében
kínálunk megvételre egy új építésű, modern, egyszintes családi házat. Az
ingatlan tervezésekor a legfőbb szempont a családok igényeinek kiszolgálása és a
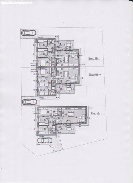
maximális energiahatékonyság volt.Műszaki paraméterek és
felszereltség:Alapterület: 94 m˛ hasznos lakótér + 18 m˛ terasz.Telek: 366 m˛,
saját használatú kertkapcsolattal.Szerkezet: Emelt szintű fűtéskész állapot
(falak, tető, nyílászárók, gépészeti alapcsövezés kész).Fűtési rendszer: Modern
hőszivattyús rendszer, minden helyiségben padlófűtéssel hőleadással.Energetikai
besorolás: A+ (minimális rezsiköltség).Elrendezés (A hatékonyság jegyében): Az
ingatlan szíve a tágas, világos amerikai konyhás nappali, ahonnan közvetlen
kijárás nyílik a nagyméretű teraszra. A 4 különálló hálószoba ideális
szeparáltságot biztosít a családtagoknak. A lakók kényelmét gardróbszoba, külön
háztartási helyiség és plusz vendég WC is szolgálja.Lokáció és környezet: A Duna
Lakópark Mosonmagyaróvár egyik legkeresettebb része.Közlekedés: Kiváló, az
autópálya felhajtó és a városközpont is percek alatt elérhető.Infrastruktúra:
Sétatávolságon belül játszóterek, a közelben pedig élelmiszerboltok, iskolák és
óvodák találhatók.Életérzés: Fiatalos közösség, nyugodt kertvárosi hangulat.Az
ingatlan leköthető, igény esetén pedig vállaljuk a teljes körű, kulcsrakész
befejezést, hogy Önnek már csak a bútorozással kelljen foglalkoznia!Bővebb
információért és helyszíni megtekintésért keressen bizalommal
REZSIMosonmagyaróváron, a Duna Lakópark csendes és biztonságos környezetében
kínálunk megvételre egy új építésű, modern, egyszintes családi házat. Az
ingatlan tervezésekor a legfőbb szempont a családok igényeinek kiszolgálása és a
maximális energiahatékonyság volt.Műszaki paraméterek és
felszereltség:Alapterület: 94 m˛ hasznos lakótér + 18 m˛ terasz.Telek: 366 m˛,
saját használatú kertkapcsolattal.Szerkezet: Emelt szintű fűtéskész állapot
(falak, tető, nyílászárók, gépészeti alapcsövezés kész).Fűtési rendszer: Modern
hőszivattyús rendszer, minden helyiségben padlófűtéssel hőleadással.Energetikai
besorolás: A+ (minimális rezsiköltség).Elrendezés (A hatékonyság jegyében): Az
ingatlan szíve a tágas, világos amerikai konyhás nappali, ahonnan közvetlen
kijárás nyílik a nagyméretű teraszra. A 4 különálló hálószoba ideális
szeparáltságot biztosít a családtagoknak. A lakók kényelmét gardróbszoba, külön
háztartási helyiség és plusz vendég WC is szolgálja.Lokáció és környezet: A Duna
Lakópark Mosonmagyaróvár egyik legkeresettebb része.Közlekedés: Kiváló, az
autópálya felhajtó és a városközpont is percek alatt elérhető.Infrastruktúra:
Sétatávolságon belül játszóterek, a közelben pedig élelmiszerboltok, iskolák és
óvodák találhatók.Életérzés: Fiatalos közösség, nyugodt kertvárosi hangulat.Az
ingatlan leköthető, igény esetén pedig vállaljuk a teljes körű, kulcsrakész
befejezést, hogy Önnek már csak a bútorozással kelljen foglalkoznia!Bővebb
információért és helyszíni megtekintésért keressen bizalommal
Részletek...
Adatlap
| Ár: | 89.100.000 Ft |
| Település: | Mosonmagyaróvár |
| A hirdető: | Ingatlaniroda ajánlatából |
| Értékesítés típusa: | Eladó |
| Használtság: | Új építésű |
| Telek nagysága (m2) : | 366 |
| Épület hasznos területe (m2) : | 94.00 |
| Szobák száma: | 5 |
| Feladás dátuma: | 2026.03.16 |
| Eddig megtekintették 5 alkalommal | |
A hirdető adatai
Kapcsolat a hirdetővel...
Családi házak rovaton belül a(z) "Modern Elegancia és Fenntarthatóság a Duna Lakóparkban - Mos" című hirdetést látja. (fent)




























