
Modern minimál stílus és rezsimentes jövő Aranyosszigeten -
Szeretne egy olyan otthont, ahol a fűtésköltség szinte észrevétlen tétel a
családi költségvetésben? Máriakálnok legkedveltebb részén, az Aranyossziget
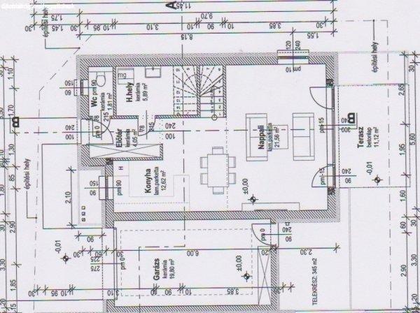
lakóparkban kínáljuk eladásra ezt a kétszintes, nettó 91 négyzetméteres
ikerházat, amelyhez 20 négyzetméteres saját garázs és privát kertrész is
tartozik.Amiért érdemes ezt választania:Geotermikus fűtés: A termálvizes
hőcserélő és a padlófűtés garantálja az extra alacsony rezsit.Élhető elosztás:
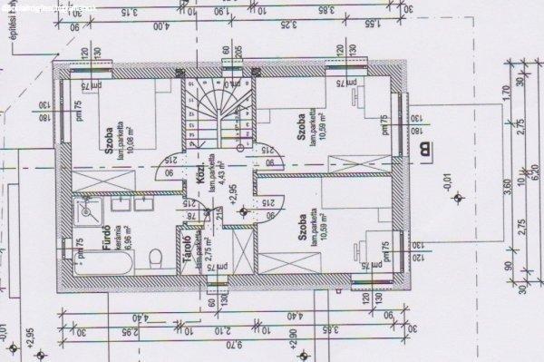
Földszinti tágas nappali-étkező kertkapcsolattal, az emeleten pedig 3 teljes
értékű hálószoba a nyugodt pihenésért.Minőségi szerkezet: 15 cm-es szigetelés, 3
rétegű antracit nyílászárók és Bramac cserépfedés.Rugalmasság: Az ár az
emeltszintű fűtéskész állapotot tartalmazza, de kérheti kulcsrakész befejezéssel
is.A nagyobb telekkel (345 m2) rendelkező ház ára: 83.990.000 Ft A kisebb
telekkel (320 m2)
családi költségvetésben? Máriakálnok legkedveltebb részén, az Aranyossziget
lakóparkban kínáljuk eladásra ezt a kétszintes, nettó 91 négyzetméteres
ikerházat, amelyhez 20 négyzetméteres saját garázs és privát kertrész is
tartozik.Amiért érdemes ezt választania:Geotermikus fűtés: A termálvizes
hőcserélő és a padlófűtés garantálja az extra alacsony rezsit.Élhető elosztás:
Földszinti tágas nappali-étkező kertkapcsolattal, az emeleten pedig 3 teljes
értékű hálószoba a nyugodt pihenésért.Minőségi szerkezet: 15 cm-es szigetelés, 3
rétegű antracit nyílászárók és Bramac cserépfedés.Rugalmasság: Az ár az
emeltszintű fűtéskész állapotot tartalmazza, de kérheti kulcsrakész befejezéssel
is.A nagyobb telekkel (345 m2) rendelkező ház ára: 83.990.000 Ft A kisebb
telekkel (320 m2)
Részletek...
Adatlap
| Ár: | 83.500.000 Ft |
| Település: | Máriakálnok |
| A hirdető: | Ingatlaniroda ajánlatából |
| Értékesítés típusa: | Eladó |
| Használtság: | Új építésű |
| Telek nagysága (m2) : | 320 |
| Épület hasznos területe (m2) : | 91.00 |
| Szobák száma: | 4 |
| Feladás dátuma: | 2026.03.16 |
| Eddig megtekintették 3 alkalommal | |
A hirdető adatai
Kapcsolat a hirdetővel...
Családi házak rovaton belül a(z) "Modern minimál stílus és rezsimentes jövő Aranyosszigeten - " című hirdetést látja. (fent)




























