
ÚJRAÁLMODOTT MODERNITÁS - Mosonmagyaróvár
100 NM-ES PRÉMIUM CSALÁDI HÁZ MOSONMAGYARÓVÁR SZÍVÉBENEladásra kínálunk
Mosonmagyaróvár belvárosi övezetében egy minden igényt kielégítő, teljes körűen
felújított, egyszintes családi házat. Az ingatlan ötvözi a hagyományos
szerkezeti megbízhatóságot a modern építészeti megoldásokkal.Műszaki tartalom ?
Ami a biztonságot adja: Az ingatlan ben esett át a teljes körű felújításon, mely
az alábbiakat érintette:Szerkezet: Új tetőszerkezet és héjazat.Szigetelés:
Modern külső homlokzati hőszigetelő rendszer.Nyílászárók: Prémium kategóriás, 3
rétegű üvegezéssel ellátott hőszigetelt ablakok.Gépészet: Teljes víz- és
villanyvezeték csere, új gázkazán radiátoros hőleadókkal.Burkolatok: Magas
kopásállóságú hideg- és melegburkolatok, modern szaniterek a
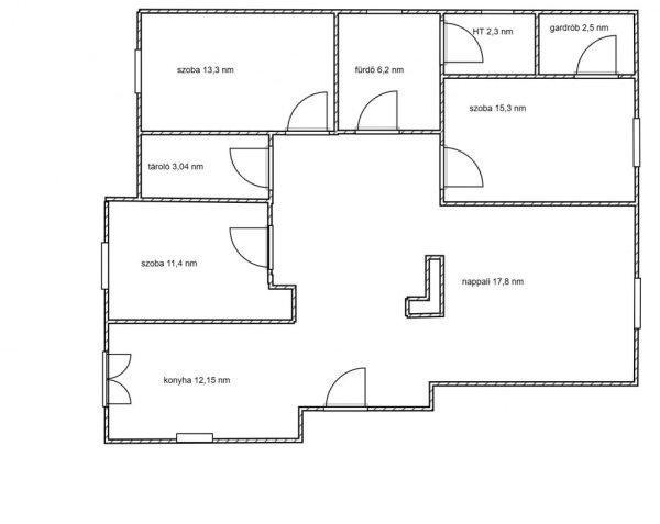
fürdőszobában.Helyiséglista és elrendezés: Az ingatlan 100 m˛-es hasznos
alapterülete logikus és élhető:Világos előszoba/folyosó.3 külön bejáratú, tágas
hálószoba.Külön gardróbhelyiség a maximális tárolókapacitásért.Délnyugati
fekvésű, napsütötte amerikai konyhás nappali.Modern fürdőszoba és praktikus
mosókonyha.Két terasz, melyek közvetlen kertkapcsolatot biztosítanak az 500
m˛-es telken.Környék és infrastruktúra: A lokáció kiváló! Sétatávolságra
található a SPAR, így a napi bevásárlás percek alatt elintézhető. A közelben
óvodák és iskolák is elérhetőek, a Park Center pedig mindössze pár perc
autóút.Az ingatlanhoz tartozik egy önálló garázs és egy tároló is, így a
parkolás és a kerti eszközök elhelyezése is megoldott.Ez a ház ideális választás
azoknak, akik nem akarnak felújítással bajlódni, és fontos számukra a belváros
közelsége. Az ingatlan tehermentes és azonnal birtokba vehető!
Mosonmagyaróvár belvárosi övezetében egy minden igényt kielégítő, teljes körűen
felújított, egyszintes családi házat. Az ingatlan ötvözi a hagyományos
szerkezeti megbízhatóságot a modern építészeti megoldásokkal.Műszaki tartalom ?
Ami a biztonságot adja: Az ingatlan ben esett át a teljes körű felújításon, mely
az alábbiakat érintette:Szerkezet: Új tetőszerkezet és héjazat.Szigetelés:
Modern külső homlokzati hőszigetelő rendszer.Nyílászárók: Prémium kategóriás, 3
rétegű üvegezéssel ellátott hőszigetelt ablakok.Gépészet: Teljes víz- és
villanyvezeték csere, új gázkazán radiátoros hőleadókkal.Burkolatok: Magas
kopásállóságú hideg- és melegburkolatok, modern szaniterek a
fürdőszobában.Helyiséglista és elrendezés: Az ingatlan 100 m˛-es hasznos
alapterülete logikus és élhető:Világos előszoba/folyosó.3 külön bejáratú, tágas
hálószoba.Külön gardróbhelyiség a maximális tárolókapacitásért.Délnyugati
fekvésű, napsütötte amerikai konyhás nappali.Modern fürdőszoba és praktikus
mosókonyha.Két terasz, melyek közvetlen kertkapcsolatot biztosítanak az 500
m˛-es telken.Környék és infrastruktúra: A lokáció kiváló! Sétatávolságra
található a SPAR, így a napi bevásárlás percek alatt elintézhető. A közelben
óvodák és iskolák is elérhetőek, a Park Center pedig mindössze pár perc
autóút.Az ingatlanhoz tartozik egy önálló garázs és egy tároló is, így a
parkolás és a kerti eszközök elhelyezése is megoldott.Ez a ház ideális választás
azoknak, akik nem akarnak felújítással bajlódni, és fontos számukra a belváros
közelsége. Az ingatlan tehermentes és azonnal birtokba vehető!
Részletek...
Adatlap
| Ár: | 85.990.000 Ft |
| Település: | Mosonmagyaróvár |
| A hirdető: | Ingatlaniroda ajánlatából |
| Értékesítés típusa: | Eladó |
| Használtság: | Használt |
| Telek nagysága (m2) : | 490 |
| Épület hasznos területe (m2) : | 100.00 |
| Szobák száma: | 3 |
| Félszobák száma: | 1 |
| Ingatlan állapota: | Felújított |
| Feladás dátuma: | 2026.03.16 |
| Eddig megtekintették 6 alkalommal | |
A hirdető adatai
Kapcsolat a hirdetővel...
Családi házak rovaton belül a(z) "ÚJRAÁLMODOTT MODERNITÁS - Mosonmagyaróvár" című hirdetést látja. (fent)




























