
Csend és kényelem Gödöllőn ? új építésű ikerház nagy kerttel
CasaNetWork Gödöllő Ingatlaniroda kínálatában eladó családi ház Gödöllőn, az
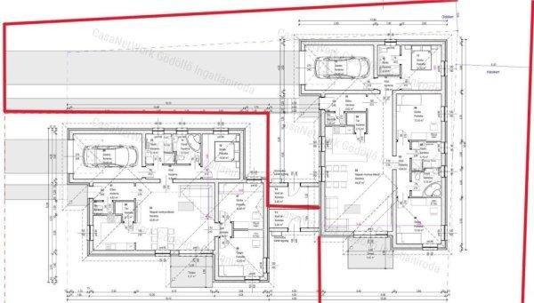
Egyetem szomszédságábanÚj építésű ikerház eladó Gödöllő egyik legkeresettebb
részén, Nagyfenyvesben!Gödöllő kedvelt, csendes kis utcájában épül ez a modern
kialakítású ikerház, melynek két lakása csak a tárolóknál kapcsolódik egymáshoz,
így a lakóterek teljesen elszeparáltak, nyugodt, családi házas hangulatot
biztosítva.Mindkét lakáshoz kb. 500 m˛-es, jól használható kert tartozik, amely
ideális családi kikapcsolódásra, kertészkedésre vagy akár játszótér
kialakítására. A déli tájolású terasz és kert egész napos napfényt biztosít, ami
különösen kellemes életteret teremt, akár medence kialakítására is tökéletesen
alkalmas.Az ingatlan garázzsal épül, a belső elrendezés pedig a mai igényekhez
igazodik:tágas amerikai konyhás nappali, kényelmes méretű szobák, valamint
praktikus kiszolgáló helyiségek ? háztartási helyiség és kamra ? segítik a
mindennapi kényelmet.A ház korszerű hőszivattyús fűtési rendszerrel készül,
amely:rendkívül energiahatékony és alacsony rezsiköltséget
biztosít,környezetbarát megoldás,hosszú távon is modern és értéknövelő
technológia,padlófűtéssel kombinálva egyenletes, kellemes hőérzetet ad az egész
házban.A lakás külön előnye, hogy két fürdőszobával rendelkezik: a szülői
hálószobához saját fürdőszoba tartozik, ami nagyban növeli a kényelmet és a
privát szférát, így a család minden tagja számára praktikus megoldást kínál.A
kivitelezést rutinos, igényes építő végzi, korszerű, modern műszaki tartalommal
és minőségi anyagok felhasználásával.Ha egy új építésű, energiatakarékos,
nyugodt környezetben lévő családi otthont keres Gödöllőn, amely mégis közel van
minden fontos infrastruktúrához, ez az ingatlan kiváló választás lehet.A lokáció
is kiemelkedően jó:az egyetem,óvoda, bölcsőde, 4- és 8 osztályos
gimnáziumvasútállomás,valamint csodálatos zöld parkmind kellemes, rövid sétával
elérhetők. Emellett Gödöllő központja is gyorsan és könnyen megközelíthető akár
gyalogosan is, így az infrastruktúra és a nyugodt lakókörnyezet ideális
egyensúlyt alkot.Tervezett kulcsrakész átadás: 2026. IV. negyedévTovábbi
információért és megtekintéssel kapcsolatban keressen bizalommal! Hívjon most,
le ne maradjon róla! Ingyenes hitel tanácsadással, ügyvédi kapcsolattal és
rugalmas időbeosztással állunk kedves ügyfeleink rendelkezésére! CASANETWORK -
Ingatlanban otthon vagyunk
Egyetem szomszédságábanÚj építésű ikerház eladó Gödöllő egyik legkeresettebb
részén, Nagyfenyvesben!Gödöllő kedvelt, csendes kis utcájában épül ez a modern
kialakítású ikerház, melynek két lakása csak a tárolóknál kapcsolódik egymáshoz,
így a lakóterek teljesen elszeparáltak, nyugodt, családi házas hangulatot
biztosítva.Mindkét lakáshoz kb. 500 m˛-es, jól használható kert tartozik, amely
ideális családi kikapcsolódásra, kertészkedésre vagy akár játszótér
kialakítására. A déli tájolású terasz és kert egész napos napfényt biztosít, ami
különösen kellemes életteret teremt, akár medence kialakítására is tökéletesen
alkalmas.Az ingatlan garázzsal épül, a belső elrendezés pedig a mai igényekhez
igazodik:tágas amerikai konyhás nappali, kényelmes méretű szobák, valamint
praktikus kiszolgáló helyiségek ? háztartási helyiség és kamra ? segítik a
mindennapi kényelmet.A ház korszerű hőszivattyús fűtési rendszerrel készül,
amely:rendkívül energiahatékony és alacsony rezsiköltséget
biztosít,környezetbarát megoldás,hosszú távon is modern és értéknövelő
technológia,padlófűtéssel kombinálva egyenletes, kellemes hőérzetet ad az egész
házban.A lakás külön előnye, hogy két fürdőszobával rendelkezik: a szülői
hálószobához saját fürdőszoba tartozik, ami nagyban növeli a kényelmet és a
privát szférát, így a család minden tagja számára praktikus megoldást kínál.A
kivitelezést rutinos, igényes építő végzi, korszerű, modern műszaki tartalommal
és minőségi anyagok felhasználásával.Ha egy új építésű, energiatakarékos,
nyugodt környezetben lévő családi otthont keres Gödöllőn, amely mégis közel van
minden fontos infrastruktúrához, ez az ingatlan kiváló választás lehet.A lokáció
is kiemelkedően jó:az egyetem,óvoda, bölcsőde, 4- és 8 osztályos
gimnáziumvasútállomás,valamint csodálatos zöld parkmind kellemes, rövid sétával
elérhetők. Emellett Gödöllő központja is gyorsan és könnyen megközelíthető akár
gyalogosan is, így az infrastruktúra és a nyugodt lakókörnyezet ideális
egyensúlyt alkot.Tervezett kulcsrakész átadás: 2026. IV. negyedévTovábbi
információért és megtekintéssel kapcsolatban keressen bizalommal! Hívjon most,
le ne maradjon róla! Ingyenes hitel tanácsadással, ügyvédi kapcsolattal és
rugalmas időbeosztással állunk kedves ügyfeleink rendelkezésére! CASANETWORK -
Ingatlanban otthon vagyunk
Részletek...
Adatlap
| Ár: | 158.000.000 Ft |
| Település: | Gödöllő |
| A hirdető: | Ingatlaniroda ajánlatából |
| Értékesítés típusa: | Eladó |
| Használtság: | Új építésű |
| Telek nagysága (m2) : | 692 |
| Épület hasznos területe (m2) : | 148.00 |
| Szobák száma: | 4 |
| Feladás dátuma: | 2026.03.16 |
| Eddig megtekintették 9 alkalommal | |
A hirdető adatai
Kapcsolat a hirdetővel...
Családi házak rovaton belül a(z) "Csend és kényelem Gödöllőn ? új építésű ikerház nagy kerttel" című hirdetést látja. (fent)

























