
Eladó 70.00 nm-es Családi ház Orosháza
Orosházán, a Szőlőkhöz közeli, csendes utcában, a városközponttól kb. 2,5?3
km-re kínálok megvételre egy 70 nm-es, vertfalú és tégla építésű családi házat,
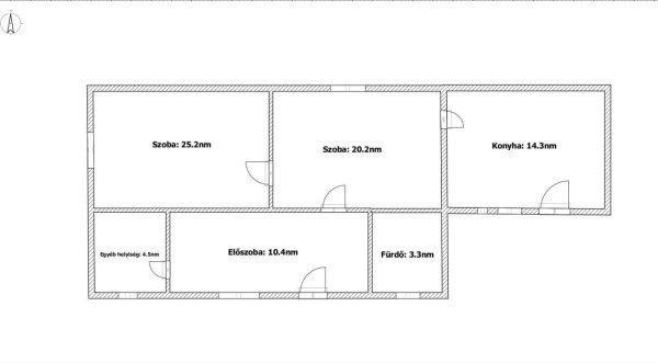
amely 1200 nm-es telken helyezkedik el.Az ingatlan 2 tágas szobávsl rendelkezik.
A ház még további felújítást igényel, ugyanakkor az elmúlt időszakban több
fontos korszerűsítés már megtörtént benne. A fürdőszoba újítása közben, a
vízhálózat és a fűtésrendszer is cserélve lett. A fűtést kombi gázkazán
biztosítja radiátoros hőleadással. A villanyhálózat több helyiségben új
vezetékeket kapott.A ház nyílászárói fa és műanyag hungaropán ablakok.A
konyhában az aljzatbeton szigetelést kapott, továbbá a konyha, a fürdőszoba és
az egyik kisebb helyiség ? amely jelenleg körmös helyiségként funkcionál ?
padlásszigetelést is kapott.A konyhában látható két oszlop statikai okokból lett
meghagyva, a belső átalakítás során ezek a tartószerkezet megtámasztását
szolgálják, mivel korábban több helyiség került egybenyitásra.A szobákban
laminált parketta, a többi helyiségben hidegburkolat található.A tető átlagos
állapotú, a korábbi beázások miatt a szükséges javításokat elvégezték.Az
ingatlan további előnye, hogy több berendezés a vételár részét képezi:- a
konyhabútor és a konyhai berendezések a hűtőszekrény kivételével a vételár
részét képezik,- valamint a két szobabútor is ( Az ágyak nem) is az ingatlanban
marad.Főbb adatok:- Lakótér: 70 nm- Telek: 1200 nm- Falazat: vert fal és tégla-
Szobák száma: 2- Fűtés: kombi gázkazán, radiátor- Nyílászárók: fa és műanyag
hungaropánBirtokbaadás leghamarabb: 2026. július 1.
km-re kínálok megvételre egy 70 nm-es, vertfalú és tégla építésű családi házat,
amely 1200 nm-es telken helyezkedik el.Az ingatlan 2 tágas szobávsl rendelkezik.
A ház még további felújítást igényel, ugyanakkor az elmúlt időszakban több
fontos korszerűsítés már megtörtént benne. A fürdőszoba újítása közben, a
vízhálózat és a fűtésrendszer is cserélve lett. A fűtést kombi gázkazán
biztosítja radiátoros hőleadással. A villanyhálózat több helyiségben új
vezetékeket kapott.A ház nyílászárói fa és műanyag hungaropán ablakok.A
konyhában az aljzatbeton szigetelést kapott, továbbá a konyha, a fürdőszoba és
az egyik kisebb helyiség ? amely jelenleg körmös helyiségként funkcionál ?
padlásszigetelést is kapott.A konyhában látható két oszlop statikai okokból lett
meghagyva, a belső átalakítás során ezek a tartószerkezet megtámasztását
szolgálják, mivel korábban több helyiség került egybenyitásra.A szobákban
laminált parketta, a többi helyiségben hidegburkolat található.A tető átlagos
állapotú, a korábbi beázások miatt a szükséges javításokat elvégezték.Az
ingatlan további előnye, hogy több berendezés a vételár részét képezi:- a
konyhabútor és a konyhai berendezések a hűtőszekrény kivételével a vételár
részét képezik,- valamint a két szobabútor is ( Az ágyak nem) is az ingatlanban
marad.Főbb adatok:- Lakótér: 70 nm- Telek: 1200 nm- Falazat: vert fal és tégla-
Szobák száma: 2- Fűtés: kombi gázkazán, radiátor- Nyílászárók: fa és műanyag
hungaropánBirtokbaadás leghamarabb: 2026. július 1.
Részletek...
Adatlap
| Ár: | 13.000.000 Ft |
| Település: | Orosháza |
| A hirdető: | Ingatlaniroda ajánlatából |
| Értékesítés típusa: | Eladó |
| Használtság: | Használt |
| Telek nagysága (m2) : | 1200 |
| Épület hasznos területe (m2) : | 70.00 |
| Szobák száma: | 2 |
| Fűtés: | Házközponti fűtéses (egyedi méréssel) |
| Ingatlan állapota: | Normál állapotú |
| Feladás dátuma: | 2026.03.23 |
| Eddig megtekintették 0 alkalommal | |
A hirdető adatai
Kapcsolat a hirdetővel...
Családi házak rovaton belül a(z) "Eladó 70.00 nm-es Családi ház Orosháza" című hirdetést látja. (fent)




























