
Eladó családi ház Dunaharaszti, Deák Ferenc utca
Eladó 3 szobás önálló családi ház Dunaharasztiban.Dunaharaszti Óvárosában
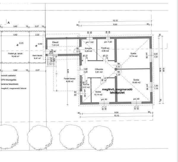
kínálunk megvételre egy nettó 79 nm alapterületű, téglából épült, önálló családi
házat, 10 nm-es fedett terasszal 487 nm-es telken.A telken található még, egy
16,5 nm-es fedett gépkocsi beálló +33 nm-es fedett kerti tároló.2025-ben lettek
beépítve új nyílászárok, szúnyoghálóval illetve redőnnyel szerelve.A tető 15 éve
lett felújítva. A fűtést gáz církó biztosítja radiátoros hőleadással + 2 db
hűtő-fűtő klíma lett felszerelve.A kert locsolását fúrt kút biztosítja.
Ingatlan beosztása:- előszoba 9,81nm- kamra 3,22nm- konyha 5,29nm- étkező
7,44nm- fürdőszoba 5,9nm- szoba 10,14nm- szoba 17,74nm- szoba
19,95nm----------------------------- nettó: 79,49nmHév,buszmegálló a közelben.
Iskola ,óvoda,bölcsöde,orvosi rendelő séta távolságra található.Amivel segítjük
az Ön ingatlanvásárlását:- ingyenes hitelügyintézés,- jogi háttér,- földhivatali
ügyintézés,- energetikai tanúsítvány,- a vevő számára az ingatlanközvetítés
ingyenes.Irodánk 30 éves szakmai tapasztalattal áll ügyfelei
rendelkezésére!Várom szíves megkeresését! ...TOVÁBBI, TÖBBEZRES INGATLAN
KÍNÁLAT: www.gdn-ingatlan.hu - GDN azonosító: 393729
kínálunk megvételre egy nettó 79 nm alapterületű, téglából épült, önálló családi
házat, 10 nm-es fedett terasszal 487 nm-es telken.A telken található még, egy
16,5 nm-es fedett gépkocsi beálló +33 nm-es fedett kerti tároló.2025-ben lettek
beépítve új nyílászárok, szúnyoghálóval illetve redőnnyel szerelve.A tető 15 éve
lett felújítva. A fűtést gáz církó biztosítja radiátoros hőleadással + 2 db
hűtő-fűtő klíma lett felszerelve.A kert locsolását fúrt kút biztosítja.
Ingatlan beosztása:- előszoba 9,81nm- kamra 3,22nm- konyha 5,29nm- étkező
7,44nm- fürdőszoba 5,9nm- szoba 10,14nm- szoba 17,74nm- szoba
19,95nm----------------------------- nettó: 79,49nmHév,buszmegálló a közelben.
Iskola ,óvoda,bölcsöde,orvosi rendelő séta távolságra található.Amivel segítjük
az Ön ingatlanvásárlását:- ingyenes hitelügyintézés,- jogi háttér,- földhivatali
ügyintézés,- energetikai tanúsítvány,- a vevő számára az ingatlanközvetítés
ingyenes.Irodánk 30 éves szakmai tapasztalattal áll ügyfelei
rendelkezésére!Várom szíves megkeresését! ...TOVÁBBI, TÖBBEZRES INGATLAN
KÍNÁLAT: www.gdn-ingatlan.hu - GDN azonosító: 393729
Részletek...
Adatlap
| Ár: | 99.900.000 Ft |
| Település: | Dunaharaszti |
| A hirdető: | Ingatlaniroda ajánlatából |
| Értékesítés típusa: | Eladó |
| Használtság: | Használt |
| Utca: | Deák Ferenc utca |
| Telek nagysága (m2) : | 487 |
| Épület hasznos területe (m2) : | 79 |
| Szobák száma: | 3 |
| Fűtés: | Cirkó fűtéses |
| Ingatlan állapota: | Normál állapotú |
| Anyaga: | Tégla |
| A hirdető kérése: | Ingatlanközvetítő vagyok - keresse fel Irodánkat! |
| Feladás dátuma: | 2026.04.22 |
| Eddig megtekintették 23 alkalommal | |
A hirdető adatai
Kapcsolat a hirdetővel...
Családi házak rovaton belül a(z) "Eladó családi ház Dunaharaszti, Deák Ferenc utca" című hirdetést látja. (fent)




























