
Eladó ikerház Dunaharaszti, Családi házas övezetében
Prémium ikerház eladó Dunaharasztin.Dunaharaszti egyik legkedveltebb részén, a
csendes és rendezett Bezerédi lakóparkban kínálunk megvételre egy prémium
minőségben épülő ikerház 1117 m˛-es iker lakását 400 m˛-es saját kerttel. Az A+
energetikai besorolású otthon modern hőszivattyús rendszerrel, padló, mennyezeti
és falfűtéssel készül, amely egész évben kiemelkedő komfortot és alacsony
fenntartási költséget biztosít. Az átgondolt tervezésnek, a prémium műszaki
tartalomnak és az extra hangszigetelésnek köszönhetően a ház valódi családi ház
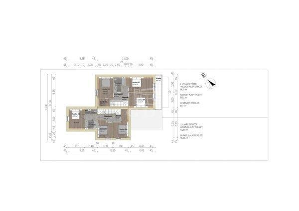
érzetét nyújtja egy nyugodt, élhető környezetben.Főbb jellemzők: - 105 m˛
lakótér + 12 m˛ terasz/erkély - 405 m˛ saját telekrész - 4 szoba + nappali
- 2 fürdőszoba + gardrób - A+ energetikai besorolás - Hőszivattyús rendszer
(padló-, mennyezet- és falfűtés) - Háromrétegű nyílászárók - Elektromos redőny
előkészítés - Prémium anyaghasználatAz ikerház tervezése során külön figyelmet
fordítottak az önálló családi ház érzetére: - Extra hangszigetelés az
ikerfalnál - Külön öntött födémek - Stabil, vasbeton szerkezetAz ingatlan
egyedi tervezéssel és gondos kivitelezéssel készül. A beruházó számára a minőség
és időtállóság elsődleges, Várható átadás: 2026. júliusAMENNYIBEN NEM
RENDELKEZIK A TELJES VÉTELÁRRAL, segítünk Önnek megtalálni a legjobb megoldást!
BANKFÜGGETLEN hitelcentrumunk minden elérhető bank és hitelintézet ajánlatát
versenyezteti az Ön kedvéért, ráadásul díjmentesen. Önnek nincs más dolga, mint
elbeszélgetni munkatársunkkal, aki a hallott információk alapján versenyre hívja
a bankokat, hogy Ön hosszú távon is a legjobb konstrukciót kaphassa. A legjobb
ajánlatokból végül Ön választhatja ki a nyertest. Munkatársaink sokéves szakmai
tapasztalattal várják Önt, előre egyeztetve akár a normál munkaidő után
is.További információkért állok rendelkezéséreZZs. ...TOVÁBBI, TÖBBEZRES
INGATLAN KÍNÁLAT: www.gdn-ingatlan.hu - GDN azonosító: 393495
csendes és rendezett Bezerédi lakóparkban kínálunk megvételre egy prémium
minőségben épülő ikerház 1117 m˛-es iker lakását 400 m˛-es saját kerttel. Az A+
energetikai besorolású otthon modern hőszivattyús rendszerrel, padló, mennyezeti
és falfűtéssel készül, amely egész évben kiemelkedő komfortot és alacsony
fenntartási költséget biztosít. Az átgondolt tervezésnek, a prémium műszaki
tartalomnak és az extra hangszigetelésnek köszönhetően a ház valódi családi ház
érzetét nyújtja egy nyugodt, élhető környezetben.Főbb jellemzők: - 105 m˛
lakótér + 12 m˛ terasz/erkély - 405 m˛ saját telekrész - 4 szoba + nappali
- 2 fürdőszoba + gardrób - A+ energetikai besorolás - Hőszivattyús rendszer
(padló-, mennyezet- és falfűtés) - Háromrétegű nyílászárók - Elektromos redőny
előkészítés - Prémium anyaghasználatAz ikerház tervezése során külön figyelmet
fordítottak az önálló családi ház érzetére: - Extra hangszigetelés az
ikerfalnál - Külön öntött födémek - Stabil, vasbeton szerkezetAz ingatlan
egyedi tervezéssel és gondos kivitelezéssel készül. A beruházó számára a minőség
és időtállóság elsődleges, Várható átadás: 2026. júliusAMENNYIBEN NEM
RENDELKEZIK A TELJES VÉTELÁRRAL, segítünk Önnek megtalálni a legjobb megoldást!
BANKFÜGGETLEN hitelcentrumunk minden elérhető bank és hitelintézet ajánlatát
versenyezteti az Ön kedvéért, ráadásul díjmentesen. Önnek nincs más dolga, mint
elbeszélgetni munkatársunkkal, aki a hallott információk alapján versenyre hívja
a bankokat, hogy Ön hosszú távon is a legjobb konstrukciót kaphassa. A legjobb
ajánlatokból végül Ön választhatja ki a nyertest. Munkatársaink sokéves szakmai
tapasztalattal várják Önt, előre egyeztetve akár a normál munkaidő után
is.További információkért állok rendelkezéséreZZs. ...TOVÁBBI, TÖBBEZRES
INGATLAN KÍNÁLAT: www.gdn-ingatlan.hu - GDN azonosító: 393495
Részletek...
Adatlap
| Ár: | 148.990.000 Ft |
| Település: | Dunaharaszti |
| A hirdető: | Ingatlaniroda ajánlatából |
| Értékesítés típusa: | Eladó |
| Használtság: | Új építésű |
| Utca: | Családi házas övezetében |
| Telek nagysága (m2) : | 405 |
| Épület hasznos területe (m2) : | 117 |
| Szobák száma: | 4 |
| Félszobák száma: | 1 |
| Anyaga: | Tégla |
| A hirdető kérése: | Ingatlanközvetítő vagyok - keresse fel Irodánkat! |
| Feladás dátuma: | 2026.04.22 |
| Eddig megtekintették 23 alkalommal | |
A hirdető adatai
Kapcsolat a hirdetővel...
Családi házak rovaton belül a(z) "Eladó ikerház Dunaharaszti, Családi házas övezetében" című hirdetést látja. (fent)




























