
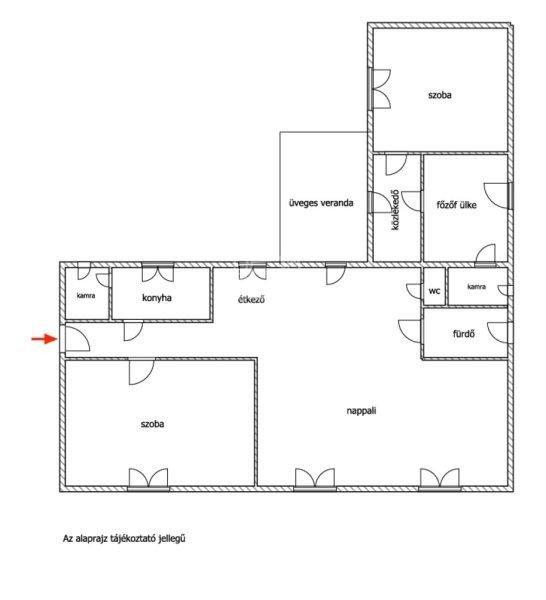
Eladó családi ház Gödöllő, Katona József utca
Eladásra kínálok Gödöllő kertvárosi részén egy különleges lehetőségeket rejtő 2
lakásos családiházat.A ház lényegében 2 külön lakóház egybe építve, egy közös
udvarral, amelyen nagy méretű tároló, és garázs is elhelyezkedik.A 2 ház "L"
alaklban került összeépítésre, így teljesen különálló, külön közmű órákkal
rendelkezik.Az első 1967-es tégla, cserép borítással. 3 szoba, fürdőszoba,
konyha, étkező.A második 1976. évben épült, majd 1989-ben a tetőtér került
kialakításra.A földszinten 2 szoba, konyha, fürdőszoba, előtér, a beépített
tetőtérben pedig 3 szoba, közlekedő, és fürdőszoba került kialakításra.Mind két
ház fűtése gáz cirkó, radiátoros hőleadókkal, és vegyes tüzelésű kazán is
rendelkezésre áll. Szintén külön fűtőberendezések.A másdik házban a földszinten
kílma is beszerelésre került.A melegvizet gázcirkó, és villanybojler is
biztosítja.Folymataos karbantartás jellemzi az épületeket!Hívjon bizalommal,
tekintsük meg együtt! ...TOVÁBBI, TÖBBEZRES INGATLAN KÍNÁLAT:
www.gdn-ingatlan.hu - GDN azonosító: 393791
lakásos családiházat.A ház lényegében 2 külön lakóház egybe építve, egy közös
udvarral, amelyen nagy méretű tároló, és garázs is elhelyezkedik.A 2 ház "L"
alaklban került összeépítésre, így teljesen különálló, külön közmű órákkal
rendelkezik.Az első 1967-es tégla, cserép borítással. 3 szoba, fürdőszoba,
konyha, étkező.A második 1976. évben épült, majd 1989-ben a tetőtér került
kialakításra.A földszinten 2 szoba, konyha, fürdőszoba, előtér, a beépített
tetőtérben pedig 3 szoba, közlekedő, és fürdőszoba került kialakításra.Mind két
ház fűtése gáz cirkó, radiátoros hőleadókkal, és vegyes tüzelésű kazán is
rendelkezésre áll. Szintén külön fűtőberendezések.A másdik házban a földszinten
kílma is beszerelésre került.A melegvizet gázcirkó, és villanybojler is
biztosítja.Folymataos karbantartás jellemzi az épületeket!Hívjon bizalommal,
tekintsük meg együtt! ...TOVÁBBI, TÖBBEZRES INGATLAN KÍNÁLAT:
www.gdn-ingatlan.hu - GDN azonosító: 393791
Részletek...
Adatlap
| Ár: | 174.900.000 Ft |
| Település: | Gödöllő |
| A hirdető: | Ingatlaniroda ajánlatából |
| Értékesítés típusa: | Eladó |
| Használtság: | Használt |
| Utca: | Katona József utca |
| Telek nagysága (m2) : | 1000 |
| Épület hasznos területe (m2) : | 240 |
| Szobák száma: | 8 |
| Fűtés: | Cirkó fűtéses |
| Ingatlan állapota: | Normál állapotú |
| Anyaga: | Tégla |
| A hirdető kérése: | Ingatlanközvetítő vagyok - keresse fel Irodánkat! |
| Feladás dátuma: | 2026.04.22 |
| Eddig megtekintették 23 alkalommal | |
A hirdető adatai
Kapcsolat a hirdetővel...
Családi házak rovaton belül a(z) "Eladó családi ház Gödöllő, Katona József utca" című hirdetést látja. (fent)




























