
Eladó 88.00 nm-es Új építésű Ikerház Velence csendes
Velencén, Budapesttől mindössze 47 km-re modern ikerházi lakások eladóak saját
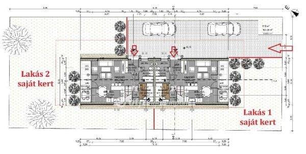
kertrésszel!Fejér vármegyében, Velence csendes, zöldövezeti részén, a számozott
utcákban kínálok megvételre 88 m2 hasznos alapterületű, új építésű ikerházi
lakásokat. A nappali+ 3,5 szobás ingatlanok kamrával, háztartási helyiséggel,
saját kertrésszel, két terasszal és felszíni gépkocsibeállóval rendelkeznek, így
magas komfortfokozatot biztosítanak leendő tulajdonosaik számára.Az építkezés
már elkezdődött, várható befejezés: 2026 nyara!Lakás 1.: 74.900.000 Ft (kert:
~150 m2)Lakás 2.: 79.900.000 Ft (kert: ~260 m2)Műszaki tartalom és
felszereltség:Fűtés: levegő víz hőszivattyú, padlófűtésHűtés: 1 db
klímaberendezésAlapozás: beton sávalapVízszigetelés: 1 réteg BITUBIT GV 4,5
hegeszthető bitumenes lemez talajnedvesség ellenTeherhordó falak: 30 cm
YTONGFödém: 20 cm monolit vasbeton lemez (statikai terv szerint)Válaszfalak: 10
cm YTONGHomlokzati hőszigetelés: 8 cm grafitos EPSZárófödém szigetelés: 2×15 cm
Rockwool MultirockFöldszinti födém szigetelés: 12 cm Austrotherm AT L2Külső
nyílászárók: 3 rétegű üvegezés, argongáz töltés, dupla gumitömítés, 5 légkamrás
műanyag szerkezetTetőfedés: betoncserépBurkolatok: ragasztott kerámia és
laminált padló választható színben, a teraszokon
kőlapFalburkolatok:Fürdőszobában mennyezetig csempe,Konyhában a munkapult
fölötti rész csempézveHomlokzat: törtfehér vékonyvakolat szürke díszítő
elemekkelCsapadékvíz-elvezetés: tározóba vezetveA lakások elrendezése praktikus,
tágas és világos tereket biztosít, a korszerű építészeti megoldások pedig
alacsony fenntartási költséget eredményeznek. A környék nyugodt, családbarát, a
Velencei-tó közelsége pedig különleges életminőséget kínál.Az OTP Ingatlanpont
teljeskörű ügyintézéssel áll az eladók és a vevők rendelkezésére! A választott
ingatlan finanszírozásához kedvezményes hitel- és pénzügyi konstrukciókat
kínálunk. Otthon Start hitel, CSOK Plusz teljeskörű ügyintézését vállaljuk. Az
adásvétel teljes folyamatát végigkísérjük és ügyvédi közreműködést
biztosítunk!Amennyiben modern, energiahatékony otthont keres természetközeli
környezetben, ezek a velencei ikerházi lakások kiváló választást jelentenek.
kertrésszel!Fejér vármegyében, Velence csendes, zöldövezeti részén, a számozott
utcákban kínálok megvételre 88 m2 hasznos alapterületű, új építésű ikerházi
lakásokat. A nappali+ 3,5 szobás ingatlanok kamrával, háztartási helyiséggel,
saját kertrésszel, két terasszal és felszíni gépkocsibeállóval rendelkeznek, így
magas komfortfokozatot biztosítanak leendő tulajdonosaik számára.Az építkezés
már elkezdődött, várható befejezés: 2026 nyara!Lakás 1.: 74.900.000 Ft (kert:
~150 m2)Lakás 2.: 79.900.000 Ft (kert: ~260 m2)Műszaki tartalom és
felszereltség:Fűtés: levegő víz hőszivattyú, padlófűtésHűtés: 1 db
klímaberendezésAlapozás: beton sávalapVízszigetelés: 1 réteg BITUBIT GV 4,5
hegeszthető bitumenes lemez talajnedvesség ellenTeherhordó falak: 30 cm
YTONGFödém: 20 cm monolit vasbeton lemez (statikai terv szerint)Válaszfalak: 10
cm YTONGHomlokzati hőszigetelés: 8 cm grafitos EPSZárófödém szigetelés: 2×15 cm
Rockwool MultirockFöldszinti födém szigetelés: 12 cm Austrotherm AT L2Külső
nyílászárók: 3 rétegű üvegezés, argongáz töltés, dupla gumitömítés, 5 légkamrás
műanyag szerkezetTetőfedés: betoncserépBurkolatok: ragasztott kerámia és
laminált padló választható színben, a teraszokon
kőlapFalburkolatok:Fürdőszobában mennyezetig csempe,Konyhában a munkapult
fölötti rész csempézveHomlokzat: törtfehér vékonyvakolat szürke díszítő
elemekkelCsapadékvíz-elvezetés: tározóba vezetveA lakások elrendezése praktikus,
tágas és világos tereket biztosít, a korszerű építészeti megoldások pedig
alacsony fenntartási költséget eredményeznek. A környék nyugodt, családbarát, a
Velencei-tó közelsége pedig különleges életminőséget kínál.Az OTP Ingatlanpont
teljeskörű ügyintézéssel áll az eladók és a vevők rendelkezésére! A választott
ingatlan finanszírozásához kedvezményes hitel- és pénzügyi konstrukciókat
kínálunk. Otthon Start hitel, CSOK Plusz teljeskörű ügyintézését vállaljuk. Az
adásvétel teljes folyamatát végigkísérjük és ügyvédi közreműködést
biztosítunk!Amennyiben modern, energiahatékony otthont keres természetközeli
környezetben, ezek a velencei ikerházi lakások kiváló választást jelentenek.
Részletek...
Adatlap
| Ár: | 79.900.000 Ft |
| Település: | Velence |
| A hirdető: | Ingatlaniroda ajánlatából |
| Értékesítés típusa: | Eladó |
| Használtság: | Új építésű |
| Utca: | csendes |
| Telek nagysága (m2) : | 518 |
| Épület hasznos területe (m2) : | 88.00 |
| Szobák száma: | 4 |
| Félszobák száma: | 1 |
| Feladás dátuma: | 2026.03.23 |
| Eddig megtekintették 1 alkalommal | |
A hirdető adatai
Kapcsolat a hirdetővel...
Családi házak rovaton belül a(z) "Eladó 88.00 nm-es Új építésű Ikerház Velence csendes " című hirdetést látja. (fent)




























