
Eladó Ház, Pincehely
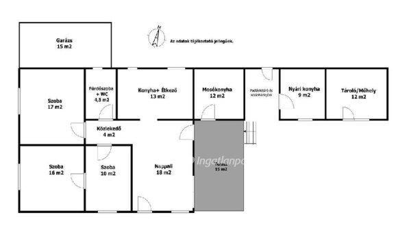
Pincehelyen eladó egy 110 m2-es, téglaépítésű, szépen felújított és kiváló
állapotú családi ház, amely egy közel 3000 m2-es telken helyezkedik el. A
klasszikus kádárkocka jellegű ingatlant praktikus elrendezésűvé tették: három
szoba, nappali,konyha és mosókonyha került kialakításra benne. A ház igényes
burkolatokat és festést kapott, a modern, jól felszerelt konyha pedig kényelmes
és esztétikus teret biztosít a mindennapokhoz. Az ingatlan gondosan
karbantartott, rendezett állapotú, így egy igazán otthonos, azonnal költözhető
házról van szó.Az ingatlan műszaki felújításon is átesett, a
villanyvezeték-hálózat teljesen ki lett cserélve, valamint a víz- és
szennyvízvezetékek is megújultak. A nyílászárók korszerű műanyag kivitelűek,
szúnyoghálóval és redőnnyel felszerelve. A komfortérzetről többféle fűtési
lehetőség gondoskodik: gázfűtés, fa tüzelésű központi rendszer, valamint két
darab hűtő-fűtő klíma áll rendelkezésre. A padlás szigetelést kapott.A tágas,
3000 m2-es telek kiváló lehetőséget nyújt kertészkedésre, gazdálkodásra. Az
ingatlan állapota valóban kiemelkedően jó, a felújításnak köszönhetően az új
tulajdonos számára egy kényelmes, azonnal birtokba vehető otthont kínál. Per- és
tehermentes, megfelel az Otthon Start program feltételeinek.
állapotú családi ház, amely egy közel 3000 m2-es telken helyezkedik el. A
klasszikus kádárkocka jellegű ingatlant praktikus elrendezésűvé tették: három
szoba, nappali,konyha és mosókonyha került kialakításra benne. A ház igényes
burkolatokat és festést kapott, a modern, jól felszerelt konyha pedig kényelmes
és esztétikus teret biztosít a mindennapokhoz. Az ingatlan gondosan
karbantartott, rendezett állapotú, így egy igazán otthonos, azonnal költözhető
házról van szó.Az ingatlan műszaki felújításon is átesett, a
villanyvezeték-hálózat teljesen ki lett cserélve, valamint a víz- és
szennyvízvezetékek is megújultak. A nyílászárók korszerű műanyag kivitelűek,
szúnyoghálóval és redőnnyel felszerelve. A komfortérzetről többféle fűtési
lehetőség gondoskodik: gázfűtés, fa tüzelésű központi rendszer, valamint két
darab hűtő-fűtő klíma áll rendelkezésre. A padlás szigetelést kapott.A tágas,
3000 m2-es telek kiváló lehetőséget nyújt kertészkedésre, gazdálkodásra. Az
ingatlan állapota valóban kiemelkedően jó, a felújításnak köszönhetően az új
tulajdonos számára egy kényelmes, azonnal birtokba vehető otthont kínál. Per- és
tehermentes, megfelel az Otthon Start program feltételeinek.
Részletek...
Adatlap
| Ár: | 45.000.000 Ft |
| Település: | Pincehely |
| A hirdető: | Ingatlaniroda ajánlatából |
| Értékesítés típusa: | Eladó |
| Használtság: | Használt |
| Telek nagysága (m2) : | 2985 |
| Épület hasznos területe (m2) : | 110.00 |
| Szobák száma: | 2 |
| Félszobák száma: | 1 |
| Ingatlan állapota: | Normál állapotú |
| Feladás dátuma: | 2026.03.23 |
| Eddig megtekintették 0 alkalommal | |
A hirdető adatai
Kapcsolat a hirdetővel...
Családi házak rovaton belül a(z) "Eladó Ház, Pincehely" című hirdetést látja. (fent)




























