
Eladó 330.00 nm-es Közepes állapotú Családi ház Pilisszentke
#P.GEladó panorámás, kétszintes családi ház a Pilis lábánál, csendes,
természetközeli környezetben.Az ingatlan a Pilis déli lejtőjén helyezkedik el,
nyugodt lakókörnyezetben, szép kilátással a szemközti hegyoldalra. A tájolásnak
és a nagy üvegfelületnek köszönhetően a ház egész nap világos, benapozott, a
tágas terek és a természet közelsége harmonikus életteret biztosítanak.A családi
ház 2006-ban épült, masszív szerkezettel. A felmenő falak 38-as falazóblokkból,
a válaszfalak 10 cm vastag válaszfaltéglából készültek.A külső nyílászárók Sofa
rendszerű, előregyártott kivitelűek, hőszigetelő Thermopan üvegezéssel, míg a
belső ajtók fa szerkezetű, előregyártott nyílászárók.Az ingatlan jól átgondolt,
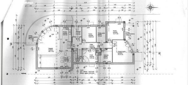
többfunkciós elrendezésű, három szinten kínál kényelmes életteret:Pinceszint:?
37 m˛-es hobby helyiség? 84,5 m˛-es nappali (amely alkalmas reprezentatív
fogadótér, wellness- vagy közösségi tér kialakítására)? raktár? kazánház?
mosókonyha? WC? több tárolóhelyiségFöldszint:? egy légtérben kialakított
nappali?étkező?konyha (64,4 m˛)? négy külön nyíló szoba (11 m˛, 8 m˛, 13,8 m˛,
20,3 m˛)? szélfogó? előtér? fürdőhelyiségek? gardróbGaléria és kültéri
kapcsolatok:A 21,23 m˛-es galéria tovább növeli a térérzetet, míg a két terasz
(57 m˛ és 13 m˛) exkluzív lehetőséget kínál pihenésre, vendéglátásra vagy a
panoráma élvezetére. A padlástér praktikus tárolási lehetőséget biztosít.Az
elhelyezkedés kiváló: a Dobogókő irányába vezető kiránduló- és természeti
környezet 11 perc alatt elérhető, Budapest pedig a 11-es úton kb. 30?40 perc
alatt megközelíthető, így az ingatlan állandó lakhatásra és hétvégi használatra
egyaránt alkalmas.Az ingatlan ideális választás mindazok számára, akik csendes,
természetközeli környezetben, mégis jó megközelíthetőséggel keresnek tágas,
minőségi kialakítású családi otthont a Pilis térségében.
természetközeli környezetben.Az ingatlan a Pilis déli lejtőjén helyezkedik el,
nyugodt lakókörnyezetben, szép kilátással a szemközti hegyoldalra. A tájolásnak
és a nagy üvegfelületnek köszönhetően a ház egész nap világos, benapozott, a
tágas terek és a természet közelsége harmonikus életteret biztosítanak.A családi
ház 2006-ban épült, masszív szerkezettel. A felmenő falak 38-as falazóblokkból,
a válaszfalak 10 cm vastag válaszfaltéglából készültek.A külső nyílászárók Sofa
rendszerű, előregyártott kivitelűek, hőszigetelő Thermopan üvegezéssel, míg a
belső ajtók fa szerkezetű, előregyártott nyílászárók.Az ingatlan jól átgondolt,
többfunkciós elrendezésű, három szinten kínál kényelmes életteret:Pinceszint:?
37 m˛-es hobby helyiség? 84,5 m˛-es nappali (amely alkalmas reprezentatív
fogadótér, wellness- vagy közösségi tér kialakítására)? raktár? kazánház?
mosókonyha? WC? több tárolóhelyiségFöldszint:? egy légtérben kialakított
nappali?étkező?konyha (64,4 m˛)? négy külön nyíló szoba (11 m˛, 8 m˛, 13,8 m˛,
20,3 m˛)? szélfogó? előtér? fürdőhelyiségek? gardróbGaléria és kültéri
kapcsolatok:A 21,23 m˛-es galéria tovább növeli a térérzetet, míg a két terasz
(57 m˛ és 13 m˛) exkluzív lehetőséget kínál pihenésre, vendéglátásra vagy a
panoráma élvezetére. A padlástér praktikus tárolási lehetőséget biztosít.Az
elhelyezkedés kiváló: a Dobogókő irányába vezető kiránduló- és természeti
környezet 11 perc alatt elérhető, Budapest pedig a 11-es úton kb. 30?40 perc
alatt megközelíthető, így az ingatlan állandó lakhatásra és hétvégi használatra
egyaránt alkalmas.Az ingatlan ideális választás mindazok számára, akik csendes,
természetközeli környezetben, mégis jó megközelíthetőséggel keresnek tágas,
minőségi kialakítású családi otthont a Pilis térségében.
Részletek...
Adatlap
| Ár: | 138.500.000 Ft |
| Település: | Pilisszentkereszt |
| A hirdető: | Ingatlaniroda ajánlatából |
| Értékesítés típusa: | Eladó |
| Használtság: | Használt |
| Utca: | Hársfa utca 2 |
| Telek nagysága (m2) : | 1082 |
| Épület hasznos területe (m2) : | 330.00 |
| Szobák száma: | 6 |
| Feladás dátuma: | 2026.03.23 |
| Eddig megtekintették 1 alkalommal | |
A hirdető adatai
Kapcsolat a hirdetővel...
Családi házak rovaton belül a(z) "Eladó 330.00 nm-es Közepes állapotú Családi ház Pilisszentke" című hirdetést látja. (fent)




























