
ÚJ ÉPÍTÉSŰ, ENERGIA TAKARÉKOS családi ház eladó Királyszenti
ÚJ ÉPÍTÉSŰ, ENERGIA TAKARÉKOS családi ház eladó Királyszentistvánon. A MODERN,
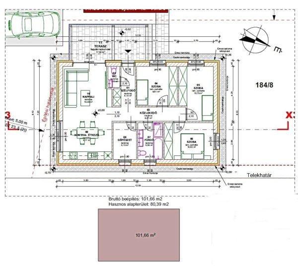
80,39 m2 hasznos alapterületű, bruttó 101,66 m2-es, egyszintes családi ház külön
utcáról megközelíthető, 417 m˛-es telken valósul meg. A 3 szoba + nappalis
családi ház kulcsrakész átadása 2027. tavaszra várható. A kiváló tájolású
telekről körbe tekintve POMPÁS PANORÁMÁBAN gyönyörködhetünk a bakonyi dombokra
és a Balatonra egyaránt. A házba belépve egy kényelmes méretű előszobába
érkezünk. Az előtérből nyílik egy külön WC kézmosóval. Jobbra egy IGAZÁN TÁGAS
NAPPALI KONYHA-ÉTKEZŐVEL egy légtérben, ahonnan közvetlenül léphetünk ki a
TÁGAS, 18 M2-NYI, NYUGATI FEKVÉSŰ, BURKOLT TERASZRA. A bejárattal szemben a
gépészetet magában foglaló háztartási helyiség van. A bejárattól balra a három,
JÓL BÚTOROZHATÓ, VILÁGOS HÁLÓSZOBA, valamint a TÁGAS FÜRDŐSZOBA
található. Az ENERGIATAKARÉKOS HÁZ korszerű műszaki tartalommal és
szerkezettel épül: - 30 cm-es Ytong falazat - 15 cm-es homlokzati
hőszigetelés - 30 cm-es kőzetgyapot födémszigetelés - 15 cm-es
hőszigetelés az aljzatbanCserép fedésű tető- Hőszivattyús padlófűtésű rendszer-
Háromrétegű műanyag nyílászárók, a redőnyökhöz elektromos előkészítéssel- Hideg-
és meleg burkolatok egyedi kiválasztási lehetőséggel- (meleg burkolat 8.000
Ft/m˛, hidegburkolat 11.000 Ft/m˛)- Beltéri ajtók 70.000ft-/db áron szerepelnek
az árban- tartalmazza az 5kW teljesítményű, sziget rendszerű napelem rendszert-
1 db 3,5kw hűtő-fűtő klímaIgény esetén lehetőség van garázs vagy féltető
megvalósítására is, illetve a belső térkialakítás személyre szabására külön
megállapodás alapján.HIBÁTLAN VÁLASZTÁS ez a RENDKÍVÜL ALACSONY REZSIVEL
rendelkező, modern családi otthon.HÍVJON, hogy Öné legyen ez a remek adottságú
ingatlan!A kivitelező két évtizedes építési tapasztalattal rendelkezik, így
megbízható, rugalmas és magas minőségű kivitelezést biztosít. A vásárláshoz CSOK
PLUSZ, FALUSI CSOK, ILLETÉKMENTESSÉG, OTTHON START HITEL
igényelhető. Bankfüggetlen INGYENES hitelügyintézés, INGYENES
CSOK ügyintézés. Ön csak kitalálja, mire keres megoldást és nyugodtan hátra
dőlhet, a többit elintézzük.
80,39 m2 hasznos alapterületű, bruttó 101,66 m2-es, egyszintes családi ház külön
utcáról megközelíthető, 417 m˛-es telken valósul meg. A 3 szoba + nappalis
családi ház kulcsrakész átadása 2027. tavaszra várható. A kiváló tájolású
telekről körbe tekintve POMPÁS PANORÁMÁBAN gyönyörködhetünk a bakonyi dombokra
és a Balatonra egyaránt. A házba belépve egy kényelmes méretű előszobába
érkezünk. Az előtérből nyílik egy külön WC kézmosóval. Jobbra egy IGAZÁN TÁGAS
NAPPALI KONYHA-ÉTKEZŐVEL egy légtérben, ahonnan közvetlenül léphetünk ki a
TÁGAS, 18 M2-NYI, NYUGATI FEKVÉSŰ, BURKOLT TERASZRA. A bejárattal szemben a
gépészetet magában foglaló háztartási helyiség van. A bejárattól balra a három,
JÓL BÚTOROZHATÓ, VILÁGOS HÁLÓSZOBA, valamint a TÁGAS FÜRDŐSZOBA
található. Az ENERGIATAKARÉKOS HÁZ korszerű műszaki tartalommal és
szerkezettel épül: - 30 cm-es Ytong falazat - 15 cm-es homlokzati
hőszigetelés - 30 cm-es kőzetgyapot födémszigetelés - 15 cm-es
hőszigetelés az aljzatbanCserép fedésű tető- Hőszivattyús padlófűtésű rendszer-
Háromrétegű műanyag nyílászárók, a redőnyökhöz elektromos előkészítéssel- Hideg-
és meleg burkolatok egyedi kiválasztási lehetőséggel- (meleg burkolat 8.000
Ft/m˛, hidegburkolat 11.000 Ft/m˛)- Beltéri ajtók 70.000ft-/db áron szerepelnek
az árban- tartalmazza az 5kW teljesítményű, sziget rendszerű napelem rendszert-
1 db 3,5kw hűtő-fűtő klímaIgény esetén lehetőség van garázs vagy féltető
megvalósítására is, illetve a belső térkialakítás személyre szabására külön
megállapodás alapján.HIBÁTLAN VÁLASZTÁS ez a RENDKÍVÜL ALACSONY REZSIVEL
rendelkező, modern családi otthon.HÍVJON, hogy Öné legyen ez a remek adottságú
ingatlan!A kivitelező két évtizedes építési tapasztalattal rendelkezik, így
megbízható, rugalmas és magas minőségű kivitelezést biztosít. A vásárláshoz CSOK
PLUSZ, FALUSI CSOK, ILLETÉKMENTESSÉG, OTTHON START HITEL
igényelhető. Bankfüggetlen INGYENES hitelügyintézés, INGYENES
CSOK ügyintézés. Ön csak kitalálja, mire keres megoldást és nyugodtan hátra
dőlhet, a többit elintézzük.
Részletek...
Adatlap
| Ár: | 83.600.000 Ft |
| Település: | Királyszentistván |
| A hirdető: | Ingatlaniroda ajánlatából |
| Értékesítés típusa: | Eladó |
| Használtság: | Új építésű |
| Utca: | Rózsadomb utca |
| Telek nagysága (m2) : | 417 |
| Épület hasznos területe (m2) : | 80.00 |
| Szobák száma: | 3 |
| Fűtés: | Házközponti fűtéses (egyedi méréssel) |
| Feladás dátuma: | 2026.04.22 |
| Eddig megtekintették 24 alkalommal | |
A hirdető adatai
Kapcsolat a hirdetővel...
Családi házak rovaton belül a(z) "ÚJ ÉPÍTÉSŰ, ENERGIA TAKARÉKOS családi ház eladó Királyszenti" című hirdetést látja. (fent)




























