
Eladó 169m2-es Családi ház, Göd
Alacsony energiafelhasználású, nagy méretű, garázsos családi ház eladó
Gödön!Eladásra kínálunk Göd egyik legkedveltebb részén egy 168,88 nm-es,
kétszintes, modern technológiával készülő családi házat. Az ingatlan egy 690
nm-es, saját használatú teleken fekszik, kulturált, kertvárosi
környezetben.Miért ezt a házat válassza??A hőellátás hibrid módon megoldott: a
fűtést kondenzációs gázkazán biztosítja, míg a helyiségek hűtése és kiegészítő
fűtése inverteres klímákkal történik. Az épület gépészete hőszivattyús rendszer
fogadására előkészített, így az opcionálisan kérhető technológia utólagosan is
integrálható a meglévő hálózatba.?Biztonság: A kivitelezést számos referenciával
rendelkező, megbízható és tőkeerős építő végzi.?Lokáció: Az alsógödi
vasútállomás gyalogosan pár perc alatt elérhető, ahonnan Budapest (Nyugati
pályaudvar) mindössze 20 perc vonattal.Praktikus és tágas elosztásA belső terek
tervezésénél a kényelem és a funkcionalitás volt az elsődleges
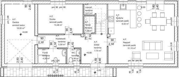
szempont:Földszint?Tágas, világos nappali.?Konyha.?Külön hálószoba. (ideális
vendégszobának vagy dolgozónak)?Fürdőszoba és külön WC.?Tároló és előtér.?18
nm-es, közvetlen kertkapcsolatos garázsEmelet?3 nagyméretű, világos
hálószoba.?Családi fürdőszoba és külön mellékhelyiség.?Külön háztartási és
gépészeti helyiség.?Kényelmes közlekedő.Műszaki tartalom és környezetAz ingatlan
modern alapanyagokból, a legfrissebb energetikai követelményeknek megfelelően
épül. A kert mérete ideális: elég tágas a gyerekeknek és a kerti partikhoz, de
még kényelmesen fenntartható.Ne maradjon le erről a kiváló lehetőségről! Várom
hívását a hét bármely napján, tekintse meg leendő otthonát személyesen is!
Gödön!Eladásra kínálunk Göd egyik legkedveltebb részén egy 168,88 nm-es,
kétszintes, modern technológiával készülő családi házat. Az ingatlan egy 690
nm-es, saját használatú teleken fekszik, kulturált, kertvárosi
környezetben.Miért ezt a házat válassza??A hőellátás hibrid módon megoldott: a
fűtést kondenzációs gázkazán biztosítja, míg a helyiségek hűtése és kiegészítő
fűtése inverteres klímákkal történik. Az épület gépészete hőszivattyús rendszer
fogadására előkészített, így az opcionálisan kérhető technológia utólagosan is
integrálható a meglévő hálózatba.?Biztonság: A kivitelezést számos referenciával
rendelkező, megbízható és tőkeerős építő végzi.?Lokáció: Az alsógödi
vasútállomás gyalogosan pár perc alatt elérhető, ahonnan Budapest (Nyugati
pályaudvar) mindössze 20 perc vonattal.Praktikus és tágas elosztásA belső terek
tervezésénél a kényelem és a funkcionalitás volt az elsődleges
szempont:Földszint?Tágas, világos nappali.?Konyha.?Külön hálószoba. (ideális
vendégszobának vagy dolgozónak)?Fürdőszoba és külön WC.?Tároló és előtér.?18
nm-es, közvetlen kertkapcsolatos garázsEmelet?3 nagyméretű, világos
hálószoba.?Családi fürdőszoba és külön mellékhelyiség.?Külön háztartási és
gépészeti helyiség.?Kényelmes közlekedő.Műszaki tartalom és környezetAz ingatlan
modern alapanyagokból, a legfrissebb energetikai követelményeknek megfelelően
épül. A kert mérete ideális: elég tágas a gyerekeknek és a kerti partikhoz, de
még kényelmesen fenntartható.Ne maradjon le erről a kiváló lehetőségről! Várom
hívását a hét bármely napján, tekintse meg leendő otthonát személyesen is!
Részletek...
Adatlap
| Ár: | 178.500.000 Ft |
| Település: | Göd |
| A hirdető: | Ingatlaniroda ajánlatából |
| Értékesítés típusa: | Eladó |
| Telek nagysága (m2) : | 690 |
| Épület hasznos területe (m2) : | 169 |
| Szobák száma: | 5 |
| Anyaga: | Tégla |
| A hirdető kérése: | Ingatlanközvetítő vagyok - keresse fel Irodánkat! |
| Feladás dátuma: | 2026.04.22 |
| Eddig megtekintették 20 alkalommal | |
A hirdető adatai
Kapcsolat a hirdetővel...
Családi házak rovaton belül a(z) "Eladó 169m2-es Családi ház, Göd" című hirdetést látja. (fent)




























