
2 szintes 3 szobás újépítésű ikerházfél eladó
A 16. kerület családi házas övezetében eladó egy jelenleg épülő 2 szintes
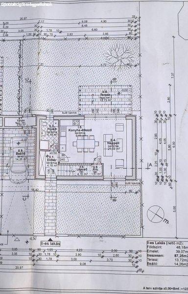
ikerházfél!Elhelyezkedése: A György utca egyik keresztutcájában található,
átmenő forgalom nincs, tömegközlekedés 5 perces sétával elérhető.A földszinten
kap helyet az étkező, a szép tágas nappali, fürdőszoba, kamra. Az emeleten a 3
hálószoba (9,9,10 nm-esek), a nagyobbik szobában egy gardrób is készül. Külön
autóbeálló is tartozik hozzá, valamint egy tároló is (2,5 nm). A ház további
értéke a 20 nm-es terasz, amely a nappaliból közelíthető meg.A tervezett átadás
ideje 2018. IV. negyedévA burkolatok még választhatóak 5000 Ft/nm értékhatárig,
az irányár ezt tartalmazza.Részletes tervdokumentáció nálam.Jöjjön, nézzük meg
együtt!
ikerházfél!Elhelyezkedése: A György utca egyik keresztutcájában található,
átmenő forgalom nincs, tömegközlekedés 5 perces sétával elérhető.A földszinten
kap helyet az étkező, a szép tágas nappali, fürdőszoba, kamra. Az emeleten a 3
hálószoba (9,9,10 nm-esek), a nagyobbik szobában egy gardrób is készül. Külön
autóbeálló is tartozik hozzá, valamint egy tároló is (2,5 nm). A ház további
értéke a 20 nm-es terasz, amely a nappaliból közelíthető meg.A tervezett átadás
ideje 2018. IV. negyedévA burkolatok még választhatóak 5000 Ft/nm értékhatárig,
az irányár ezt tartalmazza.Részletes tervdokumentáció nálam.Jöjjön, nézzük meg
együtt!
Részletek...
Adatlap
| Ár: | 60.000.000 Ft |
| Település: | XVI. kerület |
| A hirdető: | Ingatlaniroda ajánlatából |
| Értékesítés típusa: | Eladó |
| Használtság: | Új építésű |
| Utca: | Vörösmarty utca |
| Telek nagysága (m2) : | 360 |
| Épület hasznos területe (m2) : | 100 |
| Szobák száma: | 2 |
| Félszobák száma: | 2 |
| Komfort: | Duplakomfortos |
| Fűtés: | Cirkó fűtéses |
| Ingatlan állapota: | Felújított |
| Anyaga: | Tégla |
| A hirdető kérése: | A hirdető közvetítői ajánlatot is meghallgat! |
| Feladás dátuma: | 2026.04.23 |
| Eddig megtekintették 526 alkalommal | |
A hirdető adatai
Kapcsolat a hirdetővel...
Családi házak rovaton belül a(z) "2 szintes 3 szobás újépítésű ikerházfél eladó" című hirdetést látja. (fent)

























