
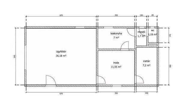
Miskolctól 19 km-re Hernádnémetiben, irodaházként használt h
Hernádnémetiben a Bajcsy-Zsilinszky utcában eladó egy 64.82 m˛-es ház, 365
m˛-es telekkel!Az ingatlan régebben irodaként volt hasznosítva, ennek
megfelelően a földhivatali nyilvántartásban "kivett irodaház"-ként van
nyilvántartva.Ára: 13 340 000, -Ft+ÁfaMűszaki leírás:1980-ban vasbeton alapra
épült, tégla falazattal, vasbeton födémmel. A tető fa szerkezetű nyeregtető,
hullámpala fedéssel. A homlokzat kőporozott, a nyílászárók műanyag szerkezetűek.
Az épület fűtésétés a használati melegvizet kp-i gázkazán biztosítja, radiátor
hőleadókkal. A falak festettek és csempézettek, a padlóburkolat kerámia
lap.2013-ban felújításon esett át az épület, mely felújítás a következőkre
terjedt ki: nyílászáró csere, festés, burkolás, álmennyezet kialakítása.Ablakok
szerkezete: MűanyagAblakok üvegezése: Hőszigetelő üvegezésFűtési mód: Központi
gázkazánHőleadó felületek: RadiátorMelegvízellátás: CIRKO kazánÉpületgépészet
állapota: JóKörnyezet:A település központjában fekszik. A környező ingatlanok
közintézmények, templom, lakó ingatlanok, kereskedelmi
egységek.Közlekedés:Aszfaltozott úton megközelíthetőTömegközlekedés
buszmegállója kb. 5 m
m˛-es telekkel!Az ingatlan régebben irodaként volt hasznosítva, ennek
megfelelően a földhivatali nyilvántartásban "kivett irodaház"-ként van
nyilvántartva.Ára: 13 340 000, -Ft+ÁfaMűszaki leírás:1980-ban vasbeton alapra
épült, tégla falazattal, vasbeton födémmel. A tető fa szerkezetű nyeregtető,
hullámpala fedéssel. A homlokzat kőporozott, a nyílászárók műanyag szerkezetűek.
Az épület fűtésétés a használati melegvizet kp-i gázkazán biztosítja, radiátor
hőleadókkal. A falak festettek és csempézettek, a padlóburkolat kerámia
lap.2013-ban felújításon esett át az épület, mely felújítás a következőkre
terjedt ki: nyílászáró csere, festés, burkolás, álmennyezet kialakítása.Ablakok
szerkezete: MűanyagAblakok üvegezése: Hőszigetelő üvegezésFűtési mód: Központi
gázkazánHőleadó felületek: RadiátorMelegvízellátás: CIRKO kazánÉpületgépészet
állapota: JóKörnyezet:A település központjában fekszik. A környező ingatlanok
közintézmények, templom, lakó ingatlanok, kereskedelmi
egységek.Közlekedés:Aszfaltozott úton megközelíthetőTömegközlekedés
buszmegállója kb. 5 m
Részletek...
Adatlap
| Ár: | 13.340.000 Ft |
| Település: | Hernádnémeti |
| A hirdető: | Ingatlaniroda ajánlatából |
| Értékesítés típusa: | Eladó |
| Használtság: | Használt |
| Telek nagysága (m2) : | 365 |
| Épület hasznos területe (m2) : | 65.00 |
| Szobák száma: | 2 |
| Félszobák száma: | 1 |
| Ingatlan állapota: | Normál állapotú |
| Feladás dátuma: | 2026.01.22 |
| Eddig megtekintették 42 alkalommal | |
A hirdető adatai
Kapcsolat a hirdetővel...
Családi házak rovaton belül a(z) "Miskolctól 19 km-re Hernádnémetiben, irodaházként használt h" című hirdetést látja. (fent)




























