
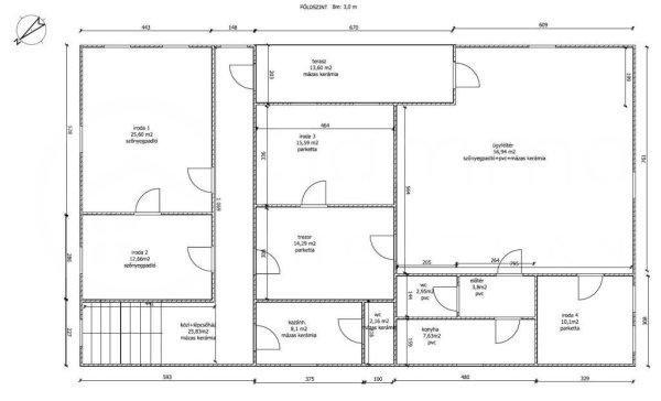
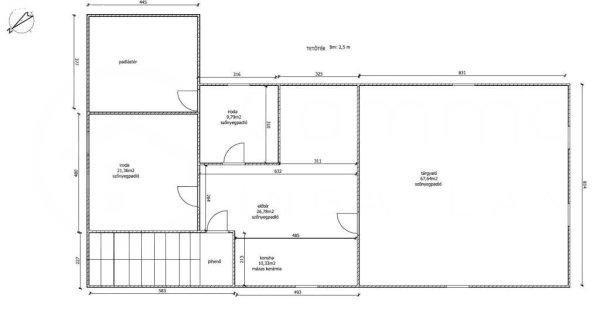
Taktaharkányban, irodaházként használt ház eladó!
Miskolctól 25 km-re, Taktaharkányban 335.15 m˛-esház, 417 m˛-es telekkel!Az
ingatlan régebben irodaként volt hasznosítva, ennek megfelelően a földhivatali
nyilvántartásban "kivett irodaház"-ként van nyilvántartva.Ára: 26.910.000,
-Ft+ÁfaMűszaki leírás:1972-ben épült, 1992-ben a felépítmény ki lett bővitve és
a tetőteret beépítették. Kialakítása földszint + tetőtér tagolódású, tégla és
gázszilikát vegyes falazatú, vasbeton gerendás födém szerkezetű, összetett
nyeregtetős, cserépfedéses épület. Homlokzata kőporos vakolattal ellátott.
Homlokzati nyílászárói fa szerkezetű ablakok, hőszigetelt üvegezéssel, közepes
műszaki állapotban. Fűtése gázkazánnal, radiátor hőleadókkal megoldott.
Melegvíz-ellátását gázbojler biztosítja. A helyiségek padló burkolata mázas
kerámia, padlószőnyeg, PVC és parketta, közepes műszaki állapotban.Környezet:Az
ingatlan a település központjában, a Magtár utcában található.Környezetében
üzletek, valamint lakóházak találhatóak.Közlekedés:Aszfaltozott úton
megközelíthető.Tömegközlekedés buszmegálló és vasútállomás kb. 700 m.
ingatlan régebben irodaként volt hasznosítva, ennek megfelelően a földhivatali
nyilvántartásban "kivett irodaház"-ként van nyilvántartva.Ára: 26.910.000,
-Ft+ÁfaMűszaki leírás:1972-ben épült, 1992-ben a felépítmény ki lett bővitve és
a tetőteret beépítették. Kialakítása földszint + tetőtér tagolódású, tégla és
gázszilikát vegyes falazatú, vasbeton gerendás födém szerkezetű, összetett
nyeregtetős, cserépfedéses épület. Homlokzata kőporos vakolattal ellátott.
Homlokzati nyílászárói fa szerkezetű ablakok, hőszigetelt üvegezéssel, közepes
műszaki állapotban. Fűtése gázkazánnal, radiátor hőleadókkal megoldott.
Melegvíz-ellátását gázbojler biztosítja. A helyiségek padló burkolata mázas
kerámia, padlószőnyeg, PVC és parketta, közepes műszaki állapotban.Környezet:Az
ingatlan a település központjában, a Magtár utcában található.Környezetében
üzletek, valamint lakóházak találhatóak.Közlekedés:Aszfaltozott úton
megközelíthető.Tömegközlekedés buszmegálló és vasútállomás kb. 700 m.
Részletek...
Adatlap
| Ár: | 26.910.000 Ft |
| Település: | Taktaharkány |
| A hirdető: | Ingatlaniroda ajánlatából |
| Értékesítés típusa: | Eladó |
| Használtság: | Használt |
| Telek nagysága (m2) : | 417 |
| Épület hasznos területe (m2) : | 335.00 |
| Szobák száma: | 10 |
| Ingatlan állapota: | Normál állapotú |
| Feladás dátuma: | 2026.01.22 |
| Eddig megtekintették 42 alkalommal | |
A hirdető adatai
Kapcsolat a hirdetővel...
Családi házak rovaton belül a(z) "Taktaharkányban, irodaházként használt ház eladó!" című hirdetést látja. (fent)




























