
Sámsonkert, újépítésű 130 m2 es, nappali + 3 szobás ikerház
Hajdúsámson- Sámsonkert, új családi házas övezetben, a Szűcs utca közelében,
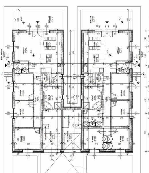
brutto 130 m2 es, nappali + 3 szobás, amerikai konyhás ikerház, garázzsal, 1040
m2 telken eladó!Jellemzői:- csendes, lakott környezetben helyezkedik el-
porotherm NF 30 téglafalazat- 15 cm polisztirol szigetelés a homlokzati falakon-
fafödémes, 30 cm szigeteléssel- héjazata: betoncserép ( szín választható)-
műanyag nyílászárós, 6 légkamrás, 3 rétegű, fehér színben- klíma- fürdőszoba
kádas és zuhanyzós- külön wc- kamra- külön nyíló szobák ( 11, m2 )- amerikai
konyhás nappali 37,6 m2- 16,80 m2 garázs- 23,7 m2 terasz- fűtést és melegvíz
ellátást kondenzációs kombi gázkazán biztosítja- a ház padlófűtéses, szobákban
radiátoros hőleadással- választható burkolatok: melegburkolat : 4500ft/ m2 ig,
kerámiaburkolatok 7500ft/ m2 ig a vételárbanA teljes műszaki tartalom előzetesen
megtekinthető!Várható átadás: 2026.nyárÁr: 79 M ftA vételár tartalmazza a telek
árát is.Élelmiszer és zöldségbolt, buszmegálló pár perc távolságra.
brutto 130 m2 es, nappali + 3 szobás, amerikai konyhás ikerház, garázzsal, 1040
m2 telken eladó!Jellemzői:- csendes, lakott környezetben helyezkedik el-
porotherm NF 30 téglafalazat- 15 cm polisztirol szigetelés a homlokzati falakon-
fafödémes, 30 cm szigeteléssel- héjazata: betoncserép ( szín választható)-
műanyag nyílászárós, 6 légkamrás, 3 rétegű, fehér színben- klíma- fürdőszoba
kádas és zuhanyzós- külön wc- kamra- külön nyíló szobák ( 11, m2 )- amerikai
konyhás nappali 37,6 m2- 16,80 m2 garázs- 23,7 m2 terasz- fűtést és melegvíz
ellátást kondenzációs kombi gázkazán biztosítja- a ház padlófűtéses, szobákban
radiátoros hőleadással- választható burkolatok: melegburkolat : 4500ft/ m2 ig,
kerámiaburkolatok 7500ft/ m2 ig a vételárbanA teljes műszaki tartalom előzetesen
megtekinthető!Várható átadás: 2026.nyárÁr: 79 M ftA vételár tartalmazza a telek
árát is.Élelmiszer és zöldségbolt, buszmegálló pár perc távolságra.
Részletek...
Adatlap
| Ár: | 79.000.000 Ft |
| Település: | Hajdúsámson |
| A hirdető: | Ingatlaniroda ajánlatából |
| Értékesítés típusa: | Eladó |
| Használtság: | Új építésű |
| Épület hasznos területe (m2) : | 115.00 |
| Szobák száma: | 4 |
| Feladás dátuma: | 2026.01.22 |
| Eddig megtekintették 57 alkalommal | |
A hirdető adatai
Kapcsolat a hirdetővel...
Családi házak rovaton belül a(z) "Sámsonkert, újépítésű 130 m2 es, nappali + 3 szobás ikerház " című hirdetést látja. (fent)

























