
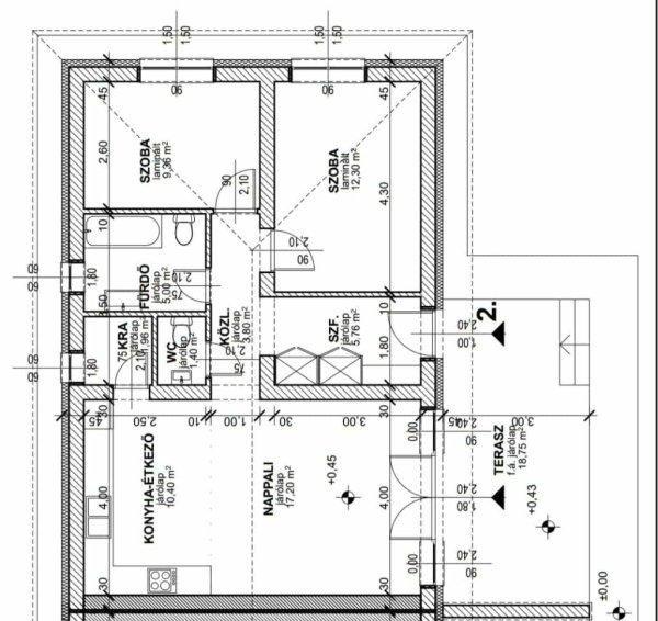
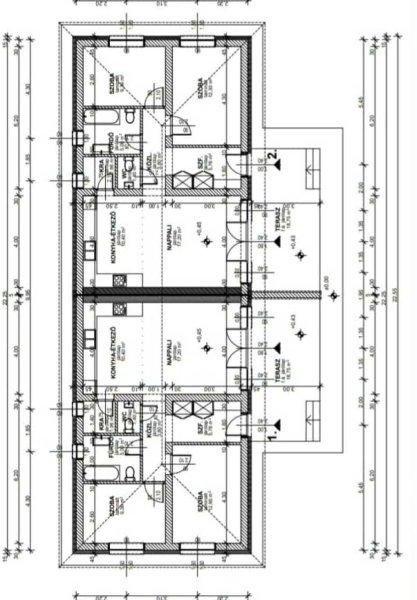
Sámsonkert, újépítésű 68 m2 es, nappali + szobás ikerházak e
Hajdúsámson- Sámsonkert, újépítésű 68 m2 es, nappali + 2 szobás ikerházak 420
m2 telken eladók!Ár: 65 millió FtÉrdeklődni: A vételár tartalmazza a telek árát
is!Jellemzői:-aszfaltos úttól 50 méterre található- csendes, lakott környezetben
helyezkedik el- porotherm NF 30 téglafalazat- 15 cm polisztirol szigetelés a
homlokzati falakon- fafödémes, 30 cm szigeteléssel- héjazata: betoncserép ( szín
választható)- műanyag nyílászárós, 6 légkamrás, 3 rétegű, fehér színben- klíma-
fürdőszoba kádas- külön wc- kamra- külön nyíló szobák (9,36 m2, 12,90 m2 )-
amerikai konyhás nappali 28 m2-18 ,75 m2 terasz- fűtést és melegvízellátást
kondenzációs kombi gázkazán biztosítja- a ház padlófűtéses, szobákban radiátoros
hőleadással- választható burkolatok: melegburkolat 4500ft/m2 ig,
kerámiaburkolatok:7500ft/m2 ig a vételárbanA teljes műszaki tartalom előzetesen
megtekinthető!Várható átadás:2026.ősz
m2 telken eladók!Ár: 65 millió FtÉrdeklődni: A vételár tartalmazza a telek árát
is!Jellemzői:-aszfaltos úttól 50 méterre található- csendes, lakott környezetben
helyezkedik el- porotherm NF 30 téglafalazat- 15 cm polisztirol szigetelés a
homlokzati falakon- fafödémes, 30 cm szigeteléssel- héjazata: betoncserép ( szín
választható)- műanyag nyílászárós, 6 légkamrás, 3 rétegű, fehér színben- klíma-
fürdőszoba kádas- külön wc- kamra- külön nyíló szobák (9,36 m2, 12,90 m2 )-
amerikai konyhás nappali 28 m2-18 ,75 m2 terasz- fűtést és melegvízellátást
kondenzációs kombi gázkazán biztosítja- a ház padlófűtéses, szobákban radiátoros
hőleadással- választható burkolatok: melegburkolat 4500ft/m2 ig,
kerámiaburkolatok:7500ft/m2 ig a vételárbanA teljes műszaki tartalom előzetesen
megtekinthető!Várható átadás:2026.ősz
Részletek...
Adatlap
| Ár: | 65.000.000 Ft |
| Település: | Hajdúsámson |
| A hirdető: | Ingatlaniroda ajánlatából |
| Értékesítés típusa: | Eladó |
| Használtság: | Új építésű |
| Épület hasznos területe (m2) : | 68.00 |
| Szobák száma: | 3 |
| Feladás dátuma: | 2026.01.13 |
| Eddig megtekintették 33 alkalommal | |
A hirdető adatai
Kapcsolat a hirdetővel...
Családi házak rovaton belül a(z) "Sámsonkert, újépítésű 68 m2 es, nappali + szobás ikerházak e" című hirdetést látja. (fent)


























