
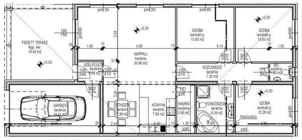
Felsőjózsán, A++-os, 129 m2-es, N+3 szobás, egyszintes, hősz
Felsőjózsán, A++ energetikai besorolású, 2025. év végi átadással, 129 m2-es,
nappali+ 3 szobás, hőszivattyús ikerház, magas műszaki tartalommal, garázzsal,
900 m2-es telken eladó!A vételár tartalmazza a telekárat.Jellemzői:- Értéktartó,
csendes környéken helyezkedik el- A ház új építésű, a belső még igény szerint
alakítható- Porotherm 30 N+F tégla falazat- Beton tetőcserép- Napelem
előkészítés- 15 cm Austrotherm AT-H80 hőszigetelés a homlokzati falakon, mely
biztosítja az alacsony fűtési költséget- A tetőtérben 35 cm vastagságú
Therwoolin hőszigetelés- 12 cm Austrotherm AT-N100 aljzatszigetelés- A ház
padlófűtéses, mely egyenletes hőeloszlást biztosít- Hőszivattyús fűtés- Hő- és
hangszigetelt ablakok: 3 rétegű, 6 légkamrás, műanyag profilrendszerű,
horganyzott idomacél merevítéssel (0,6 W/m2K)- Elektromos redőny előkészítés-
Inverteres, hűtő- fűtő, hőszivattyús klíma (5 kW)- Amerikai konyhás nappali-
Belső kialakítás flexibilis, az Ön elképzelése szerint alakítunk ki mindent-
Választható burkolatok: Kerámia burkolat 6 000 Ft/m2-ig, laminált parketta 6 000
Ft/m2-ig a vételárban- 20 m2-es garázs- 20 m2-es terasz- Igény szerint
füvesítés, parkosítás, öntözőrendszer, sziklakert, bográcsozási lehetőség,
pergolla, filagória kialakításra kerülhet a költözésre- Tömegközlekedés kiváló-
Iskolához, óvodához, üzletekhez, orvosi rendelőhöz, patikához közel helyezkedik
el!Várható befejezés: 2025. December 31.Babaváró, illetékmentesség, CSOK+ hitel
igénybe vehető a házra!Irányár: 115 MFt
nappali+ 3 szobás, hőszivattyús ikerház, magas műszaki tartalommal, garázzsal,
900 m2-es telken eladó!A vételár tartalmazza a telekárat.Jellemzői:- Értéktartó,
csendes környéken helyezkedik el- A ház új építésű, a belső még igény szerint
alakítható- Porotherm 30 N+F tégla falazat- Beton tetőcserép- Napelem
előkészítés- 15 cm Austrotherm AT-H80 hőszigetelés a homlokzati falakon, mely
biztosítja az alacsony fűtési költséget- A tetőtérben 35 cm vastagságú
Therwoolin hőszigetelés- 12 cm Austrotherm AT-N100 aljzatszigetelés- A ház
padlófűtéses, mely egyenletes hőeloszlást biztosít- Hőszivattyús fűtés- Hő- és
hangszigetelt ablakok: 3 rétegű, 6 légkamrás, műanyag profilrendszerű,
horganyzott idomacél merevítéssel (0,6 W/m2K)- Elektromos redőny előkészítés-
Inverteres, hűtő- fűtő, hőszivattyús klíma (5 kW)- Amerikai konyhás nappali-
Belső kialakítás flexibilis, az Ön elképzelése szerint alakítunk ki mindent-
Választható burkolatok: Kerámia burkolat 6 000 Ft/m2-ig, laminált parketta 6 000
Ft/m2-ig a vételárban- 20 m2-es garázs- 20 m2-es terasz- Igény szerint
füvesítés, parkosítás, öntözőrendszer, sziklakert, bográcsozási lehetőség,
pergolla, filagória kialakításra kerülhet a költözésre- Tömegközlekedés kiváló-
Iskolához, óvodához, üzletekhez, orvosi rendelőhöz, patikához közel helyezkedik
el!Várható befejezés: 2025. December 31.Babaváró, illetékmentesség, CSOK+ hitel
igénybe vehető a házra!Irányár: 115 MFt
Részletek...
Adatlap
| Ár: | 115.000.000 Ft |
| Település: | Debrecen |
| A hirdető: | Ingatlaniroda ajánlatából |
| Értékesítés típusa: | Eladó |
| Használtság: | Újszerű |
| Telek nagysága (m2) : | 900 |
| Épület hasznos területe (m2) : | 129.00 |
| Szobák száma: | 4 |
| Feladás dátuma: | 2026.01.22 |
| Eddig megtekintették 53 alkalommal | |
A hirdető adatai
Kapcsolat a hirdetővel...
Családi házak rovaton belül a(z) "Felsőjózsán, A++-os, 129 m2-es, N+3 szobás, egyszintes, hősz" című hirdetést látja. (fent)




























