
Józsa központjában, A+-os, 98 m2-es, N+3 szobás, hőszivattyú
Debrecen- Felsőjózsán, a Józsa-park mellett, 2026. év végi átadással, A+
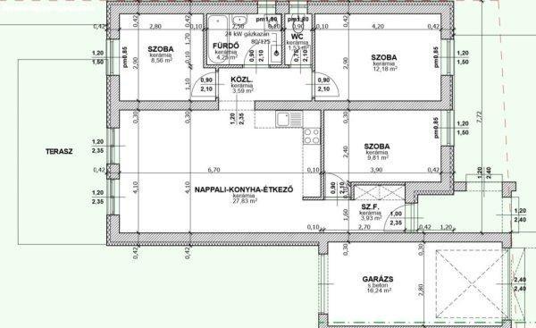
energetikai besorolású, 98 m2-es, nappali+ 3 szobás, hőszivattyús, klimatizált
ikerház, garázzsal, terasszal, magas műszaki tartalommal, 500 m2-es telken
eladó!Jellemzői:- A Központtól 300 méterre épül, kiváló helyen- Aszfaltozott
utca- A ház új építésű, a belső még igény szerint alakítható- Energetikai
besorolás: A+- Porotherm® 30 N+F tégla falazat- Beton tetőcserép- 15 cm
Austrotherm® AT-H80 hőszigetelés a homlokzati falakon, mely biztosítja az
alacsony fűtési költséget- 30 cm Rockwool® Multirock hőszigetelés a födémen- 10
cm Austrotherm® AT-N100 aljzatszigetelés- A fűtést az ingatlanba egyedileg
beépített, méretezett levegő-víz hőszivattyú biztosítja- Padlófűtés és falfűtés
kerül kialakításra, igény szerint helyiségenként külön termosztát szabályzással-
Hő- és hangszigetelt ablakok: 3 rétegű, 6 légkamrás, műanyag profilrendszerű,
horganyzott idomacél merevítéssel (0,6 W/m2K)- Napelem előkészítés- HD
felbontású kamera rendszer előkészítés- Riasztórendszer előkészítés- Elektromos
vezérelhető, alumínium redőny előkészítés- Inverteres, hűtő-fűtő klíma az árban-
Amerikai konyhás nappali- Belső kialakítás flexibilis, az Ön elképzelése szerint
alakítunk ki mindent- Választható burkolatok: Kerámia burkolat 10 000 Ft/m2-ig,
laminált parketta 6 000 Ft/m2-ig a vételárban- 20 m2-es terasz- 16,24 m2-es
garázs- Térkövezés szintén a vételárban- Tömegközlekedés kiváló!Igény szerint
füvesítés, parkosítás, öntözőrendszer, sziklakert, bográcsozási lehetőség,
pergolla, filagória kialakításra kerülhet, igy Önnek csak költöznie
kell!Rezsiátlag alatti az energiafogyasztása az ingatlannak, így az új
rezsiszabályozással is alacsony marad a fenntartási költsége!Babaváró,
illetékmentesség, Otthon Start 3 %-os hitel, CSOK+ igénybe vehető a házra!Nálunk
illetékmentes a vásárlás!Várható befejezés: 2026. December 31.Irányár: 89,9 MFt
energetikai besorolású, 98 m2-es, nappali+ 3 szobás, hőszivattyús, klimatizált
ikerház, garázzsal, terasszal, magas műszaki tartalommal, 500 m2-es telken
eladó!Jellemzői:- A Központtól 300 méterre épül, kiváló helyen- Aszfaltozott
utca- A ház új építésű, a belső még igény szerint alakítható- Energetikai
besorolás: A+- Porotherm® 30 N+F tégla falazat- Beton tetőcserép- 15 cm
Austrotherm® AT-H80 hőszigetelés a homlokzati falakon, mely biztosítja az
alacsony fűtési költséget- 30 cm Rockwool® Multirock hőszigetelés a födémen- 10
cm Austrotherm® AT-N100 aljzatszigetelés- A fűtést az ingatlanba egyedileg
beépített, méretezett levegő-víz hőszivattyú biztosítja- Padlófűtés és falfűtés
kerül kialakításra, igény szerint helyiségenként külön termosztát szabályzással-
Hő- és hangszigetelt ablakok: 3 rétegű, 6 légkamrás, műanyag profilrendszerű,
horganyzott idomacél merevítéssel (0,6 W/m2K)- Napelem előkészítés- HD
felbontású kamera rendszer előkészítés- Riasztórendszer előkészítés- Elektromos
vezérelhető, alumínium redőny előkészítés- Inverteres, hűtő-fűtő klíma az árban-
Amerikai konyhás nappali- Belső kialakítás flexibilis, az Ön elképzelése szerint
alakítunk ki mindent- Választható burkolatok: Kerámia burkolat 10 000 Ft/m2-ig,
laminált parketta 6 000 Ft/m2-ig a vételárban- 20 m2-es terasz- 16,24 m2-es
garázs- Térkövezés szintén a vételárban- Tömegközlekedés kiváló!Igény szerint
füvesítés, parkosítás, öntözőrendszer, sziklakert, bográcsozási lehetőség,
pergolla, filagória kialakításra kerülhet, igy Önnek csak költöznie
kell!Rezsiátlag alatti az energiafogyasztása az ingatlannak, így az új
rezsiszabályozással is alacsony marad a fenntartási költsége!Babaváró,
illetékmentesség, Otthon Start 3 %-os hitel, CSOK+ igénybe vehető a házra!Nálunk
illetékmentes a vásárlás!Várható befejezés: 2026. December 31.Irányár: 89,9 MFt
Részletek...
Adatlap
| Ár: | 89.900.000 Ft |
| Település: | Debrecen |
| A hirdető: | Ingatlaniroda ajánlatából |
| Értékesítés típusa: | Eladó |
| Használtság: | Új építésű |
| Telek nagysága (m2) : | 500 |
| Épület hasznos területe (m2) : | 98.00 |
| Szobák száma: | 4 |
| Feladás dátuma: | 2026.04.14 |
| Eddig megtekintették 47 alkalommal | |
A hirdető adatai
Kapcsolat a hirdetővel...
Családi házak rovaton belül a(z) "Józsa központjában, A+-os, 98 m2-es, N+3 szobás, hőszivattyú" című hirdetést látja. (fent)




























