
Eladó családi ház Vác, Felső Törökhegyi út közelében
Vácon, energiatakarékos, körpanorámás, új építésű családi ház eladó!Megvételre
kínálok Pest vármegyei Vácon, Törökhegy csendes, körpanorámás részén,
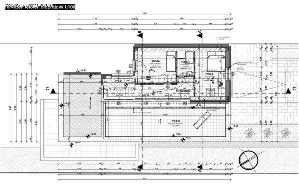
szerkezetkész BB energetikai besorolásra tervezett, 1000 nm-es telken, nettó 151
nm-es, 70 nm terasz, belső 2 szintes, alápincézett, 4 szoba + amerikai konyhás
nappalival rendelkező, új építésű, keleti fekvésű, önálló családi házat.Első
osztályú anyagokból, minőségi kivitelezéssel, extra hőszigeteléssel,
Hőszivattyús fűtéssel, 3 rétegű műanyag nyílászárókkal, kerítéssel,
riasztóval.Az ingatlan 2021-ben kezdett épülni téglából, vasbeton és
betongerendás födémmel, betoncseréppel. A homlokzat 15 cm-es szigetelést
kapott.Szuterén szinten garázs és tároló lett kialakítva.A ház rendelkezik
vízbekötéssel, saját emésztővel. Telek nem rendelkezik gáz bekötéssel,
gázfelhasználás nem történik az épületben.Az ingatlan PER és
TEHERMENTES!Infrastruktúrája jó, 10 percen belül található a helyi busz
megállója, autóval pedig pillanatokon belül megközelíthető, az E77/M2-es autóút,
illetve a főváros autóval 30 perc. A Nyugati pályaudvarra zónázó vonattal 40
perc alatt beérhetünk! Közelben elérhető városi kórház, óvodák, panziók,
pincészet, autószerelő.INGYENES a hiteltanácsadás is!BANKFÜGGETLEN
hitelcentrumunk minden elérhető bank és hitelintézet ajánlatát versenyezteti az
Ön kedvéért, ráadásul DÍJMENTESEN.Önnek nincs más dolga, mint elbeszélgetni
munkatársunkkal, aki a hallott információk alapján versenyre hívja a bankokat,
hogy Ön hosszú távon is a legjobb konstrukciót kaphassa.Amennyiben a hirdetés
felkeltette az érdeklődését, várom a hívását, akár hétvégén is. S.Z.E.
...TOVÁBBI, TÖBBEZRES INGATLAN KÍNÁLAT: www.gdn-ingatlan.hu - GDN azonosító:
351040
kínálok Pest vármegyei Vácon, Törökhegy csendes, körpanorámás részén,
szerkezetkész BB energetikai besorolásra tervezett, 1000 nm-es telken, nettó 151
nm-es, 70 nm terasz, belső 2 szintes, alápincézett, 4 szoba + amerikai konyhás
nappalival rendelkező, új építésű, keleti fekvésű, önálló családi házat.Első
osztályú anyagokból, minőségi kivitelezéssel, extra hőszigeteléssel,
Hőszivattyús fűtéssel, 3 rétegű műanyag nyílászárókkal, kerítéssel,
riasztóval.Az ingatlan 2021-ben kezdett épülni téglából, vasbeton és
betongerendás födémmel, betoncseréppel. A homlokzat 15 cm-es szigetelést
kapott.Szuterén szinten garázs és tároló lett kialakítva.A ház rendelkezik
vízbekötéssel, saját emésztővel. Telek nem rendelkezik gáz bekötéssel,
gázfelhasználás nem történik az épületben.Az ingatlan PER és
TEHERMENTES!Infrastruktúrája jó, 10 percen belül található a helyi busz
megállója, autóval pedig pillanatokon belül megközelíthető, az E77/M2-es autóút,
illetve a főváros autóval 30 perc. A Nyugati pályaudvarra zónázó vonattal 40
perc alatt beérhetünk! Közelben elérhető városi kórház, óvodák, panziók,
pincészet, autószerelő.INGYENES a hiteltanácsadás is!BANKFÜGGETLEN
hitelcentrumunk minden elérhető bank és hitelintézet ajánlatát versenyezteti az
Ön kedvéért, ráadásul DÍJMENTESEN.Önnek nincs más dolga, mint elbeszélgetni
munkatársunkkal, aki a hallott információk alapján versenyre hívja a bankokat,
hogy Ön hosszú távon is a legjobb konstrukciót kaphassa.Amennyiben a hirdetés
felkeltette az érdeklődését, várom a hívását, akár hétvégén is. S.Z.E.
...TOVÁBBI, TÖBBEZRES INGATLAN KÍNÁLAT: www.gdn-ingatlan.hu - GDN azonosító:
351040
Részletek...
Adatlap
| Ár: | 92.000.000 Ft |
| Település: | Vác |
| A hirdető: | Ingatlaniroda ajánlatából |
| Értékesítés típusa: | Eladó |
| Használtság: | Új építésű |
| Utca: | Felső Törökhegyi út közelében |
| Telek nagysága (m2) : | 1012 |
| Épület hasznos területe (m2) : | 221 |
| Szobák száma: | 4 |
| Anyaga: | Tégla |
| A hirdető kérése: | Ingatlanközvetítő vagyok - keresse fel Irodánkat! |
| Feladás dátuma: | 2026.05.08 |
| Eddig megtekintették 70 alkalommal | |
A hirdető adatai
Kapcsolat a hirdetővel...
Családi házak rovaton belül a(z) "Eladó családi ház Vác, Felső Törökhegyi út közelében" című hirdetést látja. (fent)




























