
Eladó családi ház Diósd, Diósd - Pest megye
Magas színvonalú kivitelezés ? energiatakarékos műszaki tartalom ? tágas
napfényes tájolás.Diósd kedvelt részén, eladó 891 m2-es telken épülő nettó 178
m2-es alapterületű családi ház nappali + 5 szoba, 2 gk.garázs, 3 fürdőszoba,
teraszok nagy telekkel, A családi ház leköthető, egyedi igények szerint
befejezhető.Földszint 122,7m2 + terasz:? 31.1 m2-es nappali - étkező + 25.2
m2-es fedett terasz? 14.4 m2-es szoba háló? 8.45 m2-es szoba vendég? 8.64 m2-es
konyha - 1.26 m2-es kamra? 11.5 m2-es szoba,? 6.21 m2-es fürdő + WC? 2,54 m2-es
Wc? 3,24 m2-es mosókonyha2? 5.1 m2-es közlekedő? 9.1 m2-es előszoba + 5,92 m2-es
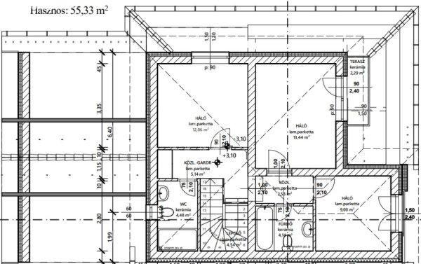
fedett bejáratEmelet:? 13.44 m2-es szoba - háló + 2,29 m2 terasz? 12.06 m2-es
szoba - háló? 9.00 m2-es szoba - háló? 4.14 m2-es fürdőszoba WC ? 4.48 m2-es WC
? 5,14 m2-es közlekedő- 4,54 m2 lépcsőtérKivitelezés:A kivitelező cég 15 év óta
több mint száz ingatlant épített meg minőségi kivitelezéssel.Műszaki tartalom:A
ház a mai energiatakarékos műszaki elvárásoknak megfelelően minőségi alapanyagok
felhasználásával épül.? H tarifa, Hőszivattyú, padlófűtés + fan-coil? A fűtést
és a melegvíz ellátást a 14 KW-os Immergas hőszivattyú látja el, meleg - hideg
hőellátást a padlófűtéssel kombinált hűtő-fűtő oldal fali berendezés ( fan-coil
) végzi.? A hőszivattyúhoz kedvezményes " H" tarifás elszámolás tartozik - 23
Ft/KW.? Az épület szigetelt, vasbeton sávlap alapra épült, 30-as Porotherm tégla
tartófalakkal, 10-es vakolt tégla válaszfalakkal.? A homlokzat 15 cm-es dryvit,
az aljzat 10 cm-es lépésálló szigeteléssel készült.? Tető beton födémmel készült
- födém 30 cm-es kőzetgyapot szigeteléssel rendelkezik.? Fehér, műanyag, több
ponton záródó, biztonsági bejárati ajtó.? Műanyag, fehér, 3 réteg üvegezésű, hő-
és hangszigetelt nyílászárók, rejtett redőnytok kívül szinterezett
párkányokkal.? A hideg és meleg burkolatok 7000 Ft/m2. értékben
választhatóak.? Beltéri dekor fóliás ajtók 7 féle színben
választhatók.? Elektromos motorral szerel távirányítós nagykapú térkövezett
kocsibeállóval.Az építkezés 2024 kezdődött 2025 készült el! - az első
negyedévben.Az ingatlan csendes, aszfaltozott utcában található. Kedvezményes
hiteligénylés, CSOK, BABAVÁRÓ támogatás esetén, kezdeményezheti a
kapcsolatfelvételt díjmentesen bankfüggetlen hitelszakértő munkatársunkkal.Az
ingatlan megtekintése előre egyeztetett időpontban lehetséges, akár hétvégén
is.Amennyiben felkeltette az érdeklődését, további kérdéseivel kapcsolatban
várom jelentkezését! ...TOVÁBBI, TÖBBEZRES INGATLAN KÍNÁLAT: www.gdn-ingatlan.hu
- GDN azonosító: 358488
napfényes tájolás.Diósd kedvelt részén, eladó 891 m2-es telken épülő nettó 178
m2-es alapterületű családi ház nappali + 5 szoba, 2 gk.garázs, 3 fürdőszoba,
teraszok nagy telekkel, A családi ház leköthető, egyedi igények szerint
befejezhető.Földszint 122,7m2 + terasz:? 31.1 m2-es nappali - étkező + 25.2
m2-es fedett terasz? 14.4 m2-es szoba háló? 8.45 m2-es szoba vendég? 8.64 m2-es
konyha - 1.26 m2-es kamra? 11.5 m2-es szoba,? 6.21 m2-es fürdő + WC? 2,54 m2-es
Wc? 3,24 m2-es mosókonyha2? 5.1 m2-es közlekedő? 9.1 m2-es előszoba + 5,92 m2-es
fedett bejáratEmelet:? 13.44 m2-es szoba - háló + 2,29 m2 terasz? 12.06 m2-es
szoba - háló? 9.00 m2-es szoba - háló? 4.14 m2-es fürdőszoba WC ? 4.48 m2-es WC
? 5,14 m2-es közlekedő- 4,54 m2 lépcsőtérKivitelezés:A kivitelező cég 15 év óta
több mint száz ingatlant épített meg minőségi kivitelezéssel.Műszaki tartalom:A
ház a mai energiatakarékos műszaki elvárásoknak megfelelően minőségi alapanyagok
felhasználásával épül.? H tarifa, Hőszivattyú, padlófűtés + fan-coil? A fűtést
és a melegvíz ellátást a 14 KW-os Immergas hőszivattyú látja el, meleg - hideg
hőellátást a padlófűtéssel kombinált hűtő-fűtő oldal fali berendezés ( fan-coil
) végzi.? A hőszivattyúhoz kedvezményes " H" tarifás elszámolás tartozik - 23
Ft/KW.? Az épület szigetelt, vasbeton sávlap alapra épült, 30-as Porotherm tégla
tartófalakkal, 10-es vakolt tégla válaszfalakkal.? A homlokzat 15 cm-es dryvit,
az aljzat 10 cm-es lépésálló szigeteléssel készült.? Tető beton födémmel készült
- födém 30 cm-es kőzetgyapot szigeteléssel rendelkezik.? Fehér, műanyag, több
ponton záródó, biztonsági bejárati ajtó.? Műanyag, fehér, 3 réteg üvegezésű, hő-
és hangszigetelt nyílászárók, rejtett redőnytok kívül szinterezett
párkányokkal.? A hideg és meleg burkolatok 7000 Ft/m2. értékben
választhatóak.? Beltéri dekor fóliás ajtók 7 féle színben
választhatók.? Elektromos motorral szerel távirányítós nagykapú térkövezett
kocsibeállóval.Az építkezés 2024 kezdődött 2025 készült el! - az első
negyedévben.Az ingatlan csendes, aszfaltozott utcában található. Kedvezményes
hiteligénylés, CSOK, BABAVÁRÓ támogatás esetén, kezdeményezheti a
kapcsolatfelvételt díjmentesen bankfüggetlen hitelszakértő munkatársunkkal.Az
ingatlan megtekintése előre egyeztetett időpontban lehetséges, akár hétvégén
is.Amennyiben felkeltette az érdeklődését, további kérdéseivel kapcsolatban
várom jelentkezését! ...TOVÁBBI, TÖBBEZRES INGATLAN KÍNÁLAT: www.gdn-ingatlan.hu
- GDN azonosító: 358488
Részletek...
Adatlap
| Ár: | 219.900.000 Ft |
| Település: | Diósd |
| A hirdető: | Ingatlaniroda ajánlatából |
| Értékesítés típusa: | Eladó |
| Használtság: | Új építésű |
| Utca: | Diósd - Pest megye |
| Telek nagysága (m2) : | 891 |
| Épület hasznos területe (m2) : | 178 |
| Szobák száma: | 4 |
| Félszobák száma: | 2 |
| Anyaga: | Tégla |
| A hirdető kérése: | Ingatlanközvetítő vagyok - keresse fel Irodánkat! |
| Feladás dátuma: | 2026.01.08 |
| Eddig megtekintették 38 alkalommal | |
A hirdető adatai
Kapcsolat a hirdetővel...
Családi házak rovaton belül a(z) "Eladó családi ház Diósd, Diósd - Pest megye" című hirdetést látja. (fent)




























