
Eladó ikerház Budapest, XXII. kerület, Budafok, Új épít. IK
MÁR CSAK 1 LAKÁS SZABAD! XXII. kerületben Budafok-Felsővárosban kertvárosi
környezetben, nettó hasznos 95,29 m˛ lakóterülettel rendelkező ÚJ ÉPÍTÉSŰ
ikerházat kínálunk eladásra.Az ikerház terv szerinti kialakítása alapján
amerikai konyhás nappalival rendelkezik 4 db. hálószobával, de igény szerint
dupla fürdőszobásra is kialakítható, így a földszinten található szoba
fürdőszobára is átalakítható, ebben az esetben am. konyhás nappali + 3 db.
hálószobás lenne az ingatlan.A ház felépítése: földszint + teljes értékű emelet
+ 8 m˛ beépített fűthető padlástér (amely egy helytakarékos lépcsőn keresztül
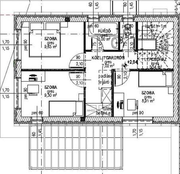
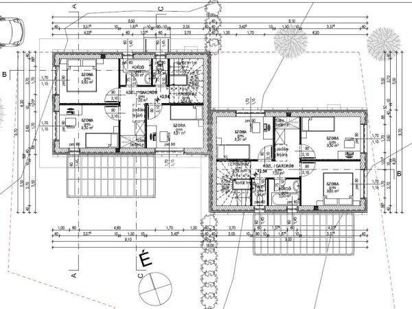
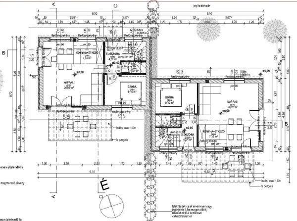
közelíthető meg).MÉRETEK, ELRENDEZÉS, TÁJOLÁS AZ ALAPRAJZOKON LÁTHATÓ!Igény
szerinti TERASZ KIALAKÍTÁS megbeszélés tárgyát képezi.Tájolása: D-NY-iTervezett
átadási idő: szerződéskötéstől számítva kb. 4 hónap.Műszaki tartalom
(részlet):-Teherhordó falak: Porotherm 30 N+F falazat-Külső szigetelés: 10 cm
Grafitos szigetelés-Tetőhéjazat: Fő tömegeken beton cserépfedés készül v.szürke
színben. Az ellenléc 5 cm. A nyári felmelegedés miatt
átszellőztetve,tetőszellőzők beépítése szükséges, rovarhálóval. Vonalmenti
hófogókkal.-Lépcső: Gipszbeton lépcső-Külső nyílászárók: Hőszigetelő műanyag
nyílászárók készülnek 3 rétegű üvegezéssel és kettős tömítéssel. Külső és belső
teli üvegezett ajtók és magas ablakok üvegfelületei biztonsági fóliával kell
ellátni, balesetmegelőzés miatt. Ajtóütközőkkel ellátva.-Árnyékolás: Beépített
redőnyök készülnek.Az ikerházhoz 1 db. kocsibeállási lehetőség tartozik ( igény
szerint további beállási lehetőséggel is bővíthető ), a hozzá tartozó
kizárólagos használatú telekrész 344,94 m˛.További nagyon részletes műszaki
leírással és dokumentációkkal rendelkezem, CÉGES ÉPÍTKEZÉS, megtekinthető
referencia munkákkal. Az ingatlan ára kulcsrakész állapotban: 129,9 MFt./db.Az
ingatlan részletes ismertetése és bemutatása előre egyeztetett időpontban
lehetséges, melyet nagyon rugalmasan kezelünk, akár HÉTVÉGÉN is.További
kérdéseivel kapcsolatban várom a jelentkezését.Amennyiben Önnek a vásárláshoz
szüksége lenne hitelre egyedi kedvezménnyel, CSOK PLUSZ-ra, állami
támogatásokra, stb., kezdeményezheti a kapcsolatfelvételt bankfüggetlen
hitelügyintézőinkkel, teljesen DÍJMENTESEN.Közel 25 év szakmai tapasztalattal
rendelkezem, eladó vagy kiadó ingatlana értékesítése vagy bérbeadása esetén,
készséggel állok az Ön rendelkezésére is, keressen bizalommal. ...TOVÁBBI,
TÖBBEZRES INGATLAN KÍNÁLAT: www.gdn-ingatlan.hu - GDN azonosító: 365377
környezetben, nettó hasznos 95,29 m˛ lakóterülettel rendelkező ÚJ ÉPÍTÉSŰ
ikerházat kínálunk eladásra.Az ikerház terv szerinti kialakítása alapján
amerikai konyhás nappalival rendelkezik 4 db. hálószobával, de igény szerint
dupla fürdőszobásra is kialakítható, így a földszinten található szoba
fürdőszobára is átalakítható, ebben az esetben am. konyhás nappali + 3 db.
hálószobás lenne az ingatlan.A ház felépítése: földszint + teljes értékű emelet
+ 8 m˛ beépített fűthető padlástér (amely egy helytakarékos lépcsőn keresztül
közelíthető meg).MÉRETEK, ELRENDEZÉS, TÁJOLÁS AZ ALAPRAJZOKON LÁTHATÓ!Igény
szerinti TERASZ KIALAKÍTÁS megbeszélés tárgyát képezi.Tájolása: D-NY-iTervezett
átadási idő: szerződéskötéstől számítva kb. 4 hónap.Műszaki tartalom
(részlet):-Teherhordó falak: Porotherm 30 N+F falazat-Külső szigetelés: 10 cm
Grafitos szigetelés-Tetőhéjazat: Fő tömegeken beton cserépfedés készül v.szürke
színben. Az ellenléc 5 cm. A nyári felmelegedés miatt
átszellőztetve,tetőszellőzők beépítése szükséges, rovarhálóval. Vonalmenti
hófogókkal.-Lépcső: Gipszbeton lépcső-Külső nyílászárók: Hőszigetelő műanyag
nyílászárók készülnek 3 rétegű üvegezéssel és kettős tömítéssel. Külső és belső
teli üvegezett ajtók és magas ablakok üvegfelületei biztonsági fóliával kell
ellátni, balesetmegelőzés miatt. Ajtóütközőkkel ellátva.-Árnyékolás: Beépített
redőnyök készülnek.Az ikerházhoz 1 db. kocsibeállási lehetőség tartozik ( igény
szerint további beállási lehetőséggel is bővíthető ), a hozzá tartozó
kizárólagos használatú telekrész 344,94 m˛.További nagyon részletes műszaki
leírással és dokumentációkkal rendelkezem, CÉGES ÉPÍTKEZÉS, megtekinthető
referencia munkákkal. Az ingatlan ára kulcsrakész állapotban: 129,9 MFt./db.Az
ingatlan részletes ismertetése és bemutatása előre egyeztetett időpontban
lehetséges, melyet nagyon rugalmasan kezelünk, akár HÉTVÉGÉN is.További
kérdéseivel kapcsolatban várom a jelentkezését.Amennyiben Önnek a vásárláshoz
szüksége lenne hitelre egyedi kedvezménnyel, CSOK PLUSZ-ra, állami
támogatásokra, stb., kezdeményezheti a kapcsolatfelvételt bankfüggetlen
hitelügyintézőinkkel, teljesen DÍJMENTESEN.Közel 25 év szakmai tapasztalattal
rendelkezem, eladó vagy kiadó ingatlana értékesítése vagy bérbeadása esetén,
készséggel állok az Ön rendelkezésére is, keressen bizalommal. ...TOVÁBBI,
TÖBBEZRES INGATLAN KÍNÁLAT: www.gdn-ingatlan.hu - GDN azonosító: 365377
Részletek...
Adatlap
| Ár: | 129.900.000 Ft |
| Település: | XXII. kerület |
| A hirdető: | Ingatlaniroda ajánlatából |
| Értékesítés típusa: | Eladó |
| Használtság: | Új építésű |
| Utca: | Budafok, Új épít. IKERHÁZ 1. Lakás |
| Telek nagysága (m2) : | 345 |
| Épület hasznos területe (m2) : | 95 |
| Szobák száma: | 1 |
| Félszobák száma: | 4 |
| Anyaga: | Tégla |
| A hirdető kérése: | Ingatlanközvetítő vagyok - keresse fel Irodánkat! |
| Feladás dátuma: | 2026.01.08 |
| Eddig megtekintették 40 alkalommal | |
A hirdető adatai
Kapcsolat a hirdetővel...
Családi házak rovaton belül a(z) "Eladó ikerház Budapest, XXII. kerület, Budafok, Új épít. IK" című hirdetést látja. (fent)




























