
Eladó 93.00 nm-es Új építésű Ikerház Budapest XXII. kerület
CSOK PLUSZ hitel igényelhető!Budapest Nagytétény híres neves utcák környékén
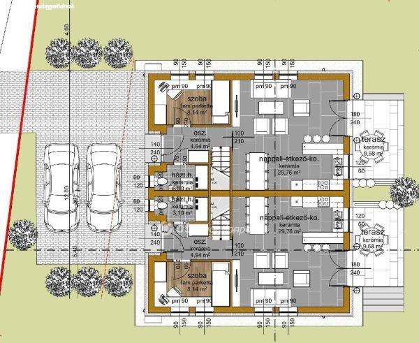
eladó 2 db 92,8 m2-es (nappali + 4 db hálószobás) újépítésű ikerház fél!Az
építkezés minőségi kivitelezéssel épül, a lakások nettó 84,45 m2 + teraszok (9,7
m2 + 7 m2) területtel rendelkeznek és kb. 300 m2 telekterület tartozik hozzájuk,
a házak egymás mellett helyezkednek el, külön kocsibeállóval.Műszaki
információk: 30 cm tégla falazat, 15 cm-es dryvit hőszigetelő rendszer,
cserépfedés, műanyag nyílászárók 3 rétegű üvegezéssel, hőszivattyú
padlófűtéssel.A pontos műszaki tartalom megismerhető egy személyes találkozó
alkalmával, ahol mindent át tudunk beszélni, a lakást a saját ízlésre alakítják
majd ki.Helyiségek:Előszoba 4,9 m2 Amerikai konyhás nappali 29,8
m2 Szoba 8,1 m2 Fürdőszoba 3,1 m2 Szoba 10,6 m2 1 Szoba 10,3
m2 1 Szoba 9,1 m2 1 Előszoba 3,1 m2 1 Fürdőszoba 5,4 m2 1 Terasz 9,7
m2 Loggia 7 m2 1 A képek között szerepelnek referencia- és látványképek
is, várható átadás 2026. tavaszVevőinknek szükség esetén kedvezményes hitelt
biztosítunk, teljes körű ügyintézéssel állunk az eladók és a vevők
rendelkezésére!Az adásvételi szerződés megkötéséhez igény szerint megbízható
ügyvédi közreműködést biztosítunk és segítséget nyújtunk az adásvételhez
kapcsolódó ügyek intézéséhez. Hívjon bizalommal.
eladó 2 db 92,8 m2-es (nappali + 4 db hálószobás) újépítésű ikerház fél!Az
építkezés minőségi kivitelezéssel épül, a lakások nettó 84,45 m2 + teraszok (9,7
m2 + 7 m2) területtel rendelkeznek és kb. 300 m2 telekterület tartozik hozzájuk,
a házak egymás mellett helyezkednek el, külön kocsibeállóval.Műszaki
információk: 30 cm tégla falazat, 15 cm-es dryvit hőszigetelő rendszer,
cserépfedés, műanyag nyílászárók 3 rétegű üvegezéssel, hőszivattyú
padlófűtéssel.A pontos műszaki tartalom megismerhető egy személyes találkozó
alkalmával, ahol mindent át tudunk beszélni, a lakást a saját ízlésre alakítják
majd ki.Helyiségek:Előszoba 4,9 m2 Amerikai konyhás nappali 29,8
m2 Szoba 8,1 m2 Fürdőszoba 3,1 m2 Szoba 10,6 m2 1 Szoba 10,3
m2 1 Szoba 9,1 m2 1 Előszoba 3,1 m2 1 Fürdőszoba 5,4 m2 1 Terasz 9,7
m2 Loggia 7 m2 1 A képek között szerepelnek referencia- és látványképek
is, várható átadás 2026. tavaszVevőinknek szükség esetén kedvezményes hitelt
biztosítunk, teljes körű ügyintézéssel állunk az eladók és a vevők
rendelkezésére!Az adásvételi szerződés megkötéséhez igény szerint megbízható
ügyvédi közreműködést biztosítunk és segítséget nyújtunk az adásvételhez
kapcsolódó ügyek intézéséhez. Hívjon bizalommal.
Részletek...
Adatlap
| Ár: | 135.000.000 Ft |
| Település: | XXII. kerület |
| A hirdető: | Ingatlaniroda ajánlatából |
| Értékesítés típusa: | Eladó |
| Használtság: | Új építésű |
| Utca: | Nagytétény |
| Telek nagysága (m2) : | 336 |
| Épület hasznos területe (m2) : | 93.00 |
| Szobák száma: | 5 |
| Feladás dátuma: | 2026.01.22 |
| Eddig megtekintették 53 alkalommal | |
A hirdető adatai
Kapcsolat a hirdetővel...
Családi házak rovaton belül a(z) "Eladó 93.00 nm-es Új építésű Ikerház Budapest XXII. kerület " című hirdetést látja. (fent)




























