
Eladó ikerház Nagykovácsi, Kossuth utca
Nagykovácsiban 170nm-es, 5+1 szobás, garázsos, duplakomfortos, energiatudatos
ikerház eladóNagykovácsi a budai agglomeráció kedvelt, hegyekkel körülvett
hangulatos zsákfaluja.Az eladó ikerház 2024 III.-IV. negyedévében kerül
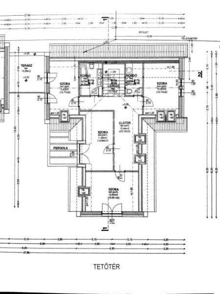
átadásra.Elrendezés :Földszinten Nappali-konyha-étkező (44,7 nm), szoba (14,8
nm), fürdőszoba, gardrób, előszoba + terasz (25 nm);Emelet: 4 szoba (br. 18,9,
14,8,16,7 és 9,4 nm) 2 fürdőszoba (5,0 és 3,7 nm) + lépcsőház. A 2051 nm-es
telken két ikerház kerül kialakításra, az egyes lakásokhoz ~ 400 nm-es saját
kertrész tartozik.Fűtés és meleg víz: hőszivattyú padló és mennyezet felületi
fűtéssel.Külső nyílászárók pácoét fa szerkezetűek, ablakok háromrétegűek
hőszigetelt üvegezéssel, külső zsaluziáva. Belső ajtók: pácolt fa
szerkezetűek.Hőszigetelés: padlóban 15 cm; tetőfödémben 30 cm; garázsban 10
cm.Hangszigetelés padlóban, födémben 4 cm.Pergola a D-i fronton.Esővíztárolás: 5
m3.Fiztési ütemezés a készenléti állapotnak megfelelően.Amennyiben az
ingatlanvásárlásához banki finanszírozást is igénybe kíván venni, úgy
BANKFÜGGETLEN hitelügyintéző kollégáink szívesen nyújtanak felvilágosítást az
aktuális hitelekkel, egyénre szabott kedvezményekkel, CSOK-kal kapcsolatban.
...TOVÁBBI, TÖBBEZRES INGATLAN KÍNÁLAT: www.gdn-ingatlan.hu - GDN azonosító:
371202
ikerház eladóNagykovácsi a budai agglomeráció kedvelt, hegyekkel körülvett
hangulatos zsákfaluja.Az eladó ikerház 2024 III.-IV. negyedévében kerül
átadásra.Elrendezés :Földszinten Nappali-konyha-étkező (44,7 nm), szoba (14,8
nm), fürdőszoba, gardrób, előszoba + terasz (25 nm);Emelet: 4 szoba (br. 18,9,
14,8,16,7 és 9,4 nm) 2 fürdőszoba (5,0 és 3,7 nm) + lépcsőház. A 2051 nm-es
telken két ikerház kerül kialakításra, az egyes lakásokhoz ~ 400 nm-es saját
kertrész tartozik.Fűtés és meleg víz: hőszivattyú padló és mennyezet felületi
fűtéssel.Külső nyílászárók pácoét fa szerkezetűek, ablakok háromrétegűek
hőszigetelt üvegezéssel, külső zsaluziáva. Belső ajtók: pácolt fa
szerkezetűek.Hőszigetelés: padlóban 15 cm; tetőfödémben 30 cm; garázsban 10
cm.Hangszigetelés padlóban, födémben 4 cm.Pergola a D-i fronton.Esővíztárolás: 5
m3.Fiztési ütemezés a készenléti állapotnak megfelelően.Amennyiben az
ingatlanvásárlásához banki finanszírozást is igénybe kíván venni, úgy
BANKFÜGGETLEN hitelügyintéző kollégáink szívesen nyújtanak felvilágosítást az
aktuális hitelekkel, egyénre szabott kedvezményekkel, CSOK-kal kapcsolatban.
...TOVÁBBI, TÖBBEZRES INGATLAN KÍNÁLAT: www.gdn-ingatlan.hu - GDN azonosító:
371202
Részletek...
Adatlap
| Ár: | 255.000.000 Ft |
| Település: | Nagykovácsi |
| A hirdető: | Ingatlaniroda ajánlatából |
| Értékesítés típusa: | Eladó |
| Használtság: | Új építésű |
| Utca: | Kossuth utca |
| Telek nagysága (m2) : | 2051 |
| Épület hasznos területe (m2) : | 170 |
| Szobák száma: | 5 |
| Félszobák száma: | 1 |
| Anyaga: | Tégla |
| A hirdető kérése: | Ingatlanközvetítő vagyok - keresse fel Irodánkat! |
| Feladás dátuma: | 2026.05.08 |
| Eddig megtekintették 66 alkalommal | |
A hirdető adatai
Kapcsolat a hirdetővel...
Családi házak rovaton belül a(z) "Eladó ikerház Nagykovácsi, Kossuth utca" című hirdetést látja. (fent)




























