
Eladó ikerház Nagykovácsi, Kossuth utca
A főváros központjától mindössze 15 km-re, Nagykovácsiban 170nm-es, 5+1 szobás,
garázsos, duplakomfortos, energiatudatos ikerház eladóAz eladó ikerház 2024
III.-IV. negyedévében kerül átadásra. A B2 jelű lakás az utcafronttól a második
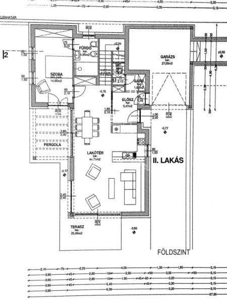
(belső) ingatlan.Elrendezése:Földszinten Nappali-konyha-étkező (44,7 nm), szoba
(14,8 nm), fürdőszoba (4,95), vendég WC, gardrób, előszoba + garázs (27,9 nm) +
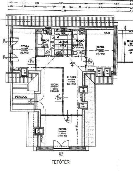
terasz (25 nm);Emelet: 4 szoba (br. 18,9, 14,8,16,7 és 9,4 nm) 2 fürdőszoba (5,0
és 3,7 nm) + lépcsőház. Fűtés és meleg víz: hőszivattyú padló és mennyezet
felületi fűtéssel.Külső nyílászárók pácoét fa szerkezetűek, ablakok
háromrétegűek hőszigetelt üvegezéssel, külső zsaluziáva. Belső ajtók: pácolt fa
szerkezetűek.Hőszigetelés: padlóban 15 cm; tetőfödémben 30 cm; garázsban 10
cm.Hangszigetelés padlóban, födémben 4 cm.Pergola a D-i fronton.Esővíztárolás: 5
m3.A 2051 nm-es telken két ikerház kerül kialakításra, az egyes lakásokhoz ~
400 nm-es saját kertrész tartozik.Fiztési ütemezés a készenléti állapotnak
megfelelően.Amennyiben az ingatlanvásárlásához banki finanszírozást is igénybe
kíván venni, úgy BANKFÜGGETLEN hitelügyintéző kollégáink szívesen nyújtanak
felvilágosítást az aktuális hitelekkel, egyénre szabott kedvezményekkel,
CSOK-kal kapcsolatban. ...TOVÁBBI, TÖBBEZRES INGATLAN KÍNÁLAT:
www.gdn-ingatlan.hu - GDN azonosító: 371362
garázsos, duplakomfortos, energiatudatos ikerház eladóAz eladó ikerház 2024
III.-IV. negyedévében kerül átadásra. A B2 jelű lakás az utcafronttól a második
(belső) ingatlan.Elrendezése:Földszinten Nappali-konyha-étkező (44,7 nm), szoba
(14,8 nm), fürdőszoba (4,95), vendég WC, gardrób, előszoba + garázs (27,9 nm) +
terasz (25 nm);Emelet: 4 szoba (br. 18,9, 14,8,16,7 és 9,4 nm) 2 fürdőszoba (5,0
és 3,7 nm) + lépcsőház. Fűtés és meleg víz: hőszivattyú padló és mennyezet
felületi fűtéssel.Külső nyílászárók pácoét fa szerkezetűek, ablakok
háromrétegűek hőszigetelt üvegezéssel, külső zsaluziáva. Belső ajtók: pácolt fa
szerkezetűek.Hőszigetelés: padlóban 15 cm; tetőfödémben 30 cm; garázsban 10
cm.Hangszigetelés padlóban, födémben 4 cm.Pergola a D-i fronton.Esővíztárolás: 5
m3.A 2051 nm-es telken két ikerház kerül kialakításra, az egyes lakásokhoz ~
400 nm-es saját kertrész tartozik.Fiztési ütemezés a készenléti állapotnak
megfelelően.Amennyiben az ingatlanvásárlásához banki finanszírozást is igénybe
kíván venni, úgy BANKFÜGGETLEN hitelügyintéző kollégáink szívesen nyújtanak
felvilágosítást az aktuális hitelekkel, egyénre szabott kedvezményekkel,
CSOK-kal kapcsolatban. ...TOVÁBBI, TÖBBEZRES INGATLAN KÍNÁLAT:
www.gdn-ingatlan.hu - GDN azonosító: 371362
Részletek...
Adatlap
| Ár: | 255.000.000 Ft |
| Település: | Nagykovácsi |
| A hirdető: | Ingatlaniroda ajánlatából |
| Értékesítés típusa: | Eladó |
| Használtság: | Új építésű |
| Utca: | Kossuth utca |
| Telek nagysága (m2) : | 2051 |
| Épület hasznos területe (m2) : | 170 |
| Szobák száma: | 5 |
| Félszobák száma: | 1 |
| Anyaga: | Tégla |
| A hirdető kérése: | Ingatlanközvetítő vagyok - keresse fel Irodánkat! |
| Feladás dátuma: | 2026.05.08 |
| Eddig megtekintették 66 alkalommal | |
A hirdető adatai
Kapcsolat a hirdetővel...
Családi házak rovaton belül a(z) "Eladó ikerház Nagykovácsi, Kossuth utca" című hirdetést látja. (fent)




























