
Eladó Szigetszentmárton, Pest megye
Szigetszentmárton új építésű házai szomszédságában, négylakásos sorház 4-es
számú.lakása eladó, 293 m2 saját használatú telekrésszel.KIVÁLÓ KIVITELEZŐ,
VERSENYKÉPES ÁRON, KIVÁLÓ OTTHONT AJÁNL ÖNNEK! CSOK +, SAJÁT KERT!Az otthon
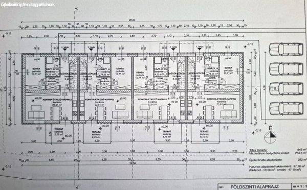
nettó 97,90 nm, ehhez 8,75 nm terasz kapcsolódik.Helyiségei:Földszint 50,8
nm+8,75 nm terasz.? konyha/étkező/nappali 23,91 nm? szoba 10,71 nm? háztartási
helyiség zuhanyzóval, toalettel 4,25 nm? előtér 8,49 nm? gardrób 2,72 nmEmelet
47,10 nm? közlekedő 4,29 nm? fürdőszoba 7,17 nm? szoba 14,25 nm? szoba 11,13 nm?
szoba 10,13 nmMŰSZAKI TARTALOM:-vasalt beton sáv alap-Porotherm tégla
falazat-nyílászárói (ablakok) műanyag szerkezetűek 6 légkamrás 3 rétegű
hőszigetelt üvegezéssel.-hűtő fűtő klíma-10 cm Dryvit szigetelés -lábazaton 10
cm XPS -beton cserép fedésű tető-lakások között SILKA hanggátló tégla
falazat-kombi cirkó, padló fűtés az egész lakásban -választható burkolatok-saját
autóbeállóA sorházi lakások árai:1. sz lakás 97 nm lakótér 197 nm telekrész,
ára: 74.900.000 Ft ELKELT2. sz lakás 97 nm lakótér 122 nm telekrész, ára:
64.900.000 Ft3. sz lakás 97 nm lakótér 122 nm telekrész, ára: 64.900.000 Ft4. sz
lakás 97 nm lakótér 293 nm telekrész, ára: 74.900.000 FtAz ingatlant kiváló
referenciákkal rendelkező helyi tőkeerős kivitelező építi meg, várható
birtokba-adás 2025 nyara. Szigetszentmárton a Csepel-sziget középső részén a
Ráckevei-Duna és a Duna között terül el , Budapesttől 35 kilométerre . A
település megközelíthető a Ráckevei HÉV-vel , gépkocsival az 5101-es számú úton
,illetve menetrend szerinti buszjárattal Csepelről. A településen igazi csendben
, kellemes friss levegővel élvezheti a mindennapokat , pár méteren belül minden
megtalálható , Pl : Óvoda,iskola, orvosi rendelő , buszmegálló játszótér ,
benzinkút, bisztró , hentes, közért, szépségipari szolgáltatások és a csodálatos
Duna part , mely fürdésre,horgászatra vagy számos sportolási lehetőségre is
alkalmas.Várom megtisztelő hívását!FINANSZÍROZÁS:Nálunk mindent egy helyen
intézhet:- hivatalos ingatlanközvetítés;- szakszerű jogi képviselet;- profi
CSOK-PLUSZ, és hitelügyintézés: 16 Bank, több mint 100 konstrukció;A részletes
adatvédelmi tájékoztató folyamatosan elérhető weboldalunkon. ...TOVÁBBI,
TÖBBEZRES INGATLAN KÍNÁLAT: www.gdn-ingatlan.hu - GDN azonosító: 380107
számú.lakása eladó, 293 m2 saját használatú telekrésszel.KIVÁLÓ KIVITELEZŐ,
VERSENYKÉPES ÁRON, KIVÁLÓ OTTHONT AJÁNL ÖNNEK! CSOK +, SAJÁT KERT!Az otthon
nettó 97,90 nm, ehhez 8,75 nm terasz kapcsolódik.Helyiségei:Földszint 50,8
nm+8,75 nm terasz.? konyha/étkező/nappali 23,91 nm? szoba 10,71 nm? háztartási
helyiség zuhanyzóval, toalettel 4,25 nm? előtér 8,49 nm? gardrób 2,72 nmEmelet
47,10 nm? közlekedő 4,29 nm? fürdőszoba 7,17 nm? szoba 14,25 nm? szoba 11,13 nm?
szoba 10,13 nmMŰSZAKI TARTALOM:-vasalt beton sáv alap-Porotherm tégla
falazat-nyílászárói (ablakok) műanyag szerkezetűek 6 légkamrás 3 rétegű
hőszigetelt üvegezéssel.-hűtő fűtő klíma-10 cm Dryvit szigetelés -lábazaton 10
cm XPS -beton cserép fedésű tető-lakások között SILKA hanggátló tégla
falazat-kombi cirkó, padló fűtés az egész lakásban -választható burkolatok-saját
autóbeállóA sorházi lakások árai:1. sz lakás 97 nm lakótér 197 nm telekrész,
ára: 74.900.000 Ft ELKELT2. sz lakás 97 nm lakótér 122 nm telekrész, ára:
64.900.000 Ft3. sz lakás 97 nm lakótér 122 nm telekrész, ára: 64.900.000 Ft4. sz
lakás 97 nm lakótér 293 nm telekrész, ára: 74.900.000 FtAz ingatlant kiváló
referenciákkal rendelkező helyi tőkeerős kivitelező építi meg, várható
birtokba-adás 2025 nyara. Szigetszentmárton a Csepel-sziget középső részén a
Ráckevei-Duna és a Duna között terül el , Budapesttől 35 kilométerre . A
település megközelíthető a Ráckevei HÉV-vel , gépkocsival az 5101-es számú úton
,illetve menetrend szerinti buszjárattal Csepelről. A településen igazi csendben
, kellemes friss levegővel élvezheti a mindennapokat , pár méteren belül minden
megtalálható , Pl : Óvoda,iskola, orvosi rendelő , buszmegálló játszótér ,
benzinkút, bisztró , hentes, közért, szépségipari szolgáltatások és a csodálatos
Duna part , mely fürdésre,horgászatra vagy számos sportolási lehetőségre is
alkalmas.Várom megtisztelő hívását!FINANSZÍROZÁS:Nálunk mindent egy helyen
intézhet:- hivatalos ingatlanközvetítés;- szakszerű jogi képviselet;- profi
CSOK-PLUSZ, és hitelügyintézés: 16 Bank, több mint 100 konstrukció;A részletes
adatvédelmi tájékoztató folyamatosan elérhető weboldalunkon. ...TOVÁBBI,
TÖBBEZRES INGATLAN KÍNÁLAT: www.gdn-ingatlan.hu - GDN azonosító: 380107
Részletek...
Adatlap
| Ár: | 74.900.000 Ft |
| Település: | Szigetszentmárton |
| A hirdető: | Ingatlaniroda ajánlatából |
| Értékesítés típusa: | Eladó |
| Használtság: | Új építésű |
| Utca: | Pest megye |
| Telek nagysága (m2) : | 293 |
| Épület hasznos területe (m2) : | 97 |
| Szobák száma: | 4 |
| Fűtés: | Cirkó fűtéses |
| Anyaga: | Tégla |
| A hirdető kérése: | Ingatlanközvetítő vagyok - keresse fel Irodánkat! |
| Feladás dátuma: | 2026.01.08 |
| Eddig megtekintették 37 alkalommal | |
A hirdető adatai
Kapcsolat a hirdetővel...
Családi házak rovaton belül a(z) "Eladó Szigetszentmárton, Pest megye" című hirdetést látja. (fent)




























