
Eladó ikerház Iszkaszentgyörgy, Mohai út
Iszkaszentgyörgyön, a Márványkert szomszédságában, csendes, kedvelt részen
egyszintes, igényes és egyedi kivitelezésű nappali+ 3 szobás, újépítésű ikerházi
egység saját 460m2-es telken eladó!Az ingatlan könnyen megközelíthető, a környék
tömegközlekedése jó, a településen minden elérhető, ami a kényelmes életvitelhez
elengedhetetlen ( orvosi rendelő, gyógyszertár, posta, bölcsőde, óvoda,
polgármesteri hivatal, boltok, piac, fitness-terem, tanösvény, Kastély Park,
sportpálya, szépészeti szolgáltatások, kutyaiskola és panzió, cukrászdák).A ház
tágas, világos, körbe napozott, a mai kor igényszintjének megfelelő, minőségi
anyagokból, korszerű dizájnnal és kialakítással készül.Műszaki paraméterek:- a
homlokzati falak 30 cm vastag téglafalazatúak 10cm vastag szigeteléssel, a
válaszfalak szintén tégla szerkezetűek- a lábazat 5cm vastag XPS szigetelést
kap- a tetőszerkezet szeglemezes, könnyített födém készül Isocell cellulóz
szigeteléssel, Bramac beton cserép fedéssel. ( a padlástér felár ellenében
opcionálisan rakodhatóvá/járhatóvá tehető)- A fűtést hőszivattyú biztosítja
padlófűtéses hőleadással, melynek köszönhetően a ház H-tarifás kedvezményben
részesül fűtési szezonban.- a nyílászárók műanyagok, 6 kamrás, 3 rétegű
üvegezésűekA ház hideg,-meleg burkolatjai, szaniterei, nyílászárók színei,
homlokzati színei előre megadott ár kategóriákon belül választhatók.(Egyéb
speciális munkák kivitelezésének igénye (pl: klíma, szellőző rendszer, központi
porszívó, kandalló, kémény kialakítás, víztisztító kiállás stb.) külön
egyeztetést igényel)(részletes műszaki leírás igényével kapcsolatban, kérem
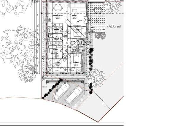
írjon üzenetet) Elosztását tekintve 103 m2 hasznos alapterületűElőszoba,
amerikai konyhás nappali kamrával, 3db 9m2-es hálószoba, vendég wc és háztartási
helyiség kerül kialakításra. A házhoz kapcsolódik egy fedett terasz és egy
21m2-es terasz.Fontosabb paraméterek:? 2025 év végi átadás? 460 m2 önálló
telekterület ? Nappali + 3 hálószoba ? H tarifás villany? Hőszivattyú ?
Alacsony rezsiköltségMegbízható és tapasztalt ingatlanfejlesztő, kivitelező
jegyzi a ház építését, számtalan referenciaépülettel rendelkezik. A vásárláshoz,
a jelenleg aktuális családok ?újépítésű? otthonteremtésére vonatkozó összes
támogatás igénybe vehető.AZ INGATLAN ALKALMAS 5%-os ÁFA, CSOK, CSOK HITEL
IGÉNYBEVÉTELÉRE!Eladási irányár: 79,9 M FtAz ingatlan adottságainak, fekvésének
köszönhetően alkalmas továbbá vállalkozásra, üzleti vagy befektetési célra,
hiszen akár bérbe adható, vagy üzlet, szolgáltatás (pl: orvosi rendelő, fodrász,
kozmetika, irodai tevékenység,(Csendes tevékenység engedélyezett).Ha felkeltette
érdeklődését, hívjon bizalommal, (hétvégén is) éljen ingyenes, személyre szabott
hitelügyintézés szolgáltatásunkkal. Segítünk továbbá adásvételhez szükséges
ügyvédi közreműködésben, energetikai tanúsítvány, valamint értékbecslés
elkészítésében.For English information please send a message. ...TOVÁBBI,
TÖBBEZRES INGATLAN KÍNÁLAT: www.gdn-ingatlan.hu - GDN azonosító: 380893
egyszintes, igényes és egyedi kivitelezésű nappali+ 3 szobás, újépítésű ikerházi
egység saját 460m2-es telken eladó!Az ingatlan könnyen megközelíthető, a környék
tömegközlekedése jó, a településen minden elérhető, ami a kényelmes életvitelhez
elengedhetetlen ( orvosi rendelő, gyógyszertár, posta, bölcsőde, óvoda,
polgármesteri hivatal, boltok, piac, fitness-terem, tanösvény, Kastély Park,
sportpálya, szépészeti szolgáltatások, kutyaiskola és panzió, cukrászdák).A ház
tágas, világos, körbe napozott, a mai kor igényszintjének megfelelő, minőségi
anyagokból, korszerű dizájnnal és kialakítással készül.Műszaki paraméterek:- a
homlokzati falak 30 cm vastag téglafalazatúak 10cm vastag szigeteléssel, a
válaszfalak szintén tégla szerkezetűek- a lábazat 5cm vastag XPS szigetelést
kap- a tetőszerkezet szeglemezes, könnyített födém készül Isocell cellulóz
szigeteléssel, Bramac beton cserép fedéssel. ( a padlástér felár ellenében
opcionálisan rakodhatóvá/járhatóvá tehető)- A fűtést hőszivattyú biztosítja
padlófűtéses hőleadással, melynek köszönhetően a ház H-tarifás kedvezményben
részesül fűtési szezonban.- a nyílászárók műanyagok, 6 kamrás, 3 rétegű
üvegezésűekA ház hideg,-meleg burkolatjai, szaniterei, nyílászárók színei,
homlokzati színei előre megadott ár kategóriákon belül választhatók.(Egyéb
speciális munkák kivitelezésének igénye (pl: klíma, szellőző rendszer, központi
porszívó, kandalló, kémény kialakítás, víztisztító kiállás stb.) külön
egyeztetést igényel)(részletes műszaki leírás igényével kapcsolatban, kérem
írjon üzenetet) Elosztását tekintve 103 m2 hasznos alapterületűElőszoba,
amerikai konyhás nappali kamrával, 3db 9m2-es hálószoba, vendég wc és háztartási
helyiség kerül kialakításra. A házhoz kapcsolódik egy fedett terasz és egy
21m2-es terasz.Fontosabb paraméterek:? 2025 év végi átadás? 460 m2 önálló
telekterület ? Nappali + 3 hálószoba ? H tarifás villany? Hőszivattyú ?
Alacsony rezsiköltségMegbízható és tapasztalt ingatlanfejlesztő, kivitelező
jegyzi a ház építését, számtalan referenciaépülettel rendelkezik. A vásárláshoz,
a jelenleg aktuális családok ?újépítésű? otthonteremtésére vonatkozó összes
támogatás igénybe vehető.AZ INGATLAN ALKALMAS 5%-os ÁFA, CSOK, CSOK HITEL
IGÉNYBEVÉTELÉRE!Eladási irányár: 79,9 M FtAz ingatlan adottságainak, fekvésének
köszönhetően alkalmas továbbá vállalkozásra, üzleti vagy befektetési célra,
hiszen akár bérbe adható, vagy üzlet, szolgáltatás (pl: orvosi rendelő, fodrász,
kozmetika, irodai tevékenység,(Csendes tevékenység engedélyezett).Ha felkeltette
érdeklődését, hívjon bizalommal, (hétvégén is) éljen ingyenes, személyre szabott
hitelügyintézés szolgáltatásunkkal. Segítünk továbbá adásvételhez szükséges
ügyvédi közreműködésben, energetikai tanúsítvány, valamint értékbecslés
elkészítésében.For English information please send a message. ...TOVÁBBI,
TÖBBEZRES INGATLAN KÍNÁLAT: www.gdn-ingatlan.hu - GDN azonosító: 380893
Részletek...
Adatlap
| Ár: | 79.900.000 Ft |
| Település: | Iszkaszentgyörgy |
| A hirdető: | Ingatlaniroda ajánlatából |
| Értékesítés típusa: | Eladó |
| Használtság: | Új építésű |
| Utca: | Mohai út |
| Telek nagysága (m2) : | 460 |
| Épület hasznos területe (m2) : | 103 |
| Szobák száma: | 4 |
| Anyaga: | Tégla |
| A hirdető kérése: | Ingatlanközvetítő vagyok - keresse fel Irodánkat! |
| Feladás dátuma: | 2026.05.08 |
| Eddig megtekintették 71 alkalommal | |
A hirdető adatai
Kapcsolat a hirdetővel...
Családi házak rovaton belül a(z) "Eladó ikerház Iszkaszentgyörgy, Mohai út" című hirdetést látja. (fent)




























