
Eladó családi ház Budapest, XVI. kerület, Szakoly utca
Sokoldalú lehetőség Cinkotán ? vállalkozóknak, befektetőknek,
nagycsaládosoknak!Eladásra kínálunk Budapest XVI. kerületének egyik
legkedveltebb, kertvárosi részén, Cinkotán, egy kiváló adottságokkal rendelkező,
nettó 232 m˛-es családi házat, különálló, korábban húsüzemként működő
melléképülettel ? ez utóbbi a tulajdonos információi szerint kb. 140 m˛-es, és
sokféle funkcióra átalakítható.A ház háromszintes kialakítású (pince, földszint,
emelet), összesen 6 szobával, hálófülkével és gardróbbal, valamint két
fürdőszobával és toalettel. A földszinten egy tágas, jól felszerelt konyha
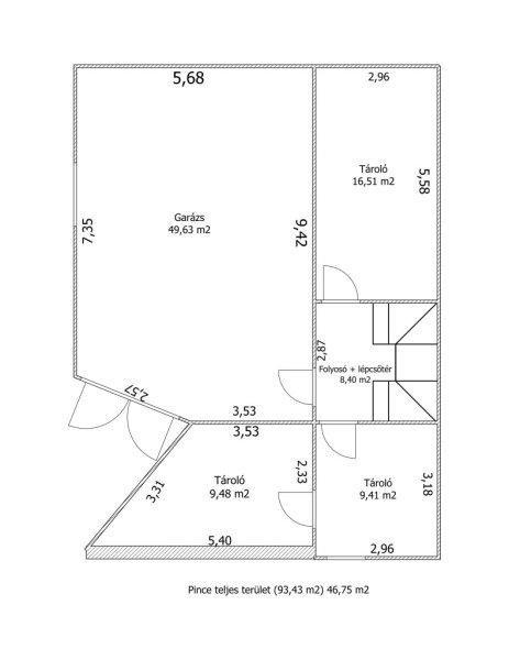
található. A pincében dupla garázs kapott helyet, amelyhez fűtőszálas
jégmentesítő rendszerrel ellátott lejáró tartozik ? praktikus és kényelmes
megoldás a téli hónapokra.Az összközműves ingatlan egy 850 m˛-es, rendezett
telken helyezkedik el, a különálló melléképület energiaellátását pedig napelemek
is támogatják, így a rezsiköltségek hosszú távon is kedvezők. Főbb
méretek:Bruttó alapterület: 307 m˛Nettó lakóterület: 232 m˛Pince: 46,75
m˛Földszint: 102,32 m˛Emelet: 83,03 m˛A ház ideális választás többgenerációs
családoknak, de vállalkozóknak is kiváló ? az önálló épület alkalmas lehet
műhelynek, irodának, raktárnak vagy akár autószerviznek is.Infrastruktúra?
Kiváló! Könnyen megközelíthető, nyugodt környezet, mégis közel mindenhez, amire
szükség lehet.Ne hagyja ki ezt a sokoldalúan hasznosítható ingatlant!Hívjon most
a megtekintésért ? akár hétvégén is elérhetőek vagyunk.Finanszírozási igény
esetén partnerünk segítségével a teljes banki kínálatból választhat, így
megtalálhatja a legkedvezőbb hitelmegoldást is! ...TOVÁBBI, TÖBBEZRES INGATLAN
KÍNÁLAT: www.gdn-ingatlan.hu - GDN azonosító: 383797
nagycsaládosoknak!Eladásra kínálunk Budapest XVI. kerületének egyik
legkedveltebb, kertvárosi részén, Cinkotán, egy kiváló adottságokkal rendelkező,
nettó 232 m˛-es családi házat, különálló, korábban húsüzemként működő
melléképülettel ? ez utóbbi a tulajdonos információi szerint kb. 140 m˛-es, és
sokféle funkcióra átalakítható.A ház háromszintes kialakítású (pince, földszint,
emelet), összesen 6 szobával, hálófülkével és gardróbbal, valamint két
fürdőszobával és toalettel. A földszinten egy tágas, jól felszerelt konyha
található. A pincében dupla garázs kapott helyet, amelyhez fűtőszálas
jégmentesítő rendszerrel ellátott lejáró tartozik ? praktikus és kényelmes
megoldás a téli hónapokra.Az összközműves ingatlan egy 850 m˛-es, rendezett
telken helyezkedik el, a különálló melléképület energiaellátását pedig napelemek
is támogatják, így a rezsiköltségek hosszú távon is kedvezők. Főbb
méretek:Bruttó alapterület: 307 m˛Nettó lakóterület: 232 m˛Pince: 46,75
m˛Földszint: 102,32 m˛Emelet: 83,03 m˛A ház ideális választás többgenerációs
családoknak, de vállalkozóknak is kiváló ? az önálló épület alkalmas lehet
műhelynek, irodának, raktárnak vagy akár autószerviznek is.Infrastruktúra?
Kiváló! Könnyen megközelíthető, nyugodt környezet, mégis közel mindenhez, amire
szükség lehet.Ne hagyja ki ezt a sokoldalúan hasznosítható ingatlant!Hívjon most
a megtekintésért ? akár hétvégén is elérhetőek vagyunk.Finanszírozási igény
esetén partnerünk segítségével a teljes banki kínálatból választhat, így
megtalálhatja a legkedvezőbb hitelmegoldást is! ...TOVÁBBI, TÖBBEZRES INGATLAN
KÍNÁLAT: www.gdn-ingatlan.hu - GDN azonosító: 383797
Részletek...
Adatlap
| Ár: | 149.900.000 Ft |
| Település: | XVI. kerület |
| A hirdető: | Ingatlaniroda ajánlatából |
| Értékesítés típusa: | Eladó |
| Használtság: | Használt |
| Utca: | Szakoly utca |
| Telek nagysága (m2) : | 805 |
| Épület hasznos területe (m2) : | 307 |
| Szobák száma: | 6 |
| Fűtés: | Cirkó fűtéses |
| Ingatlan állapota: | Normál állapotú |
| Anyaga: | Tégla |
| A hirdető kérése: | Ingatlanközvetítő vagyok - keresse fel Irodánkat! |
| Feladás dátuma: | 2026.05.08 |
| Eddig megtekintették 65 alkalommal | |
A hirdető adatai
Kapcsolat a hirdetővel...
Családi házak rovaton belül a(z) "Eladó családi ház Budapest, XVI. kerület, Szakoly utca" című hirdetést látja. (fent)




























