
Eladó családi ház Dunakeszi, Hargita utca
ÚJ ÉPÍTÉSŰ önálló családi, dupla garázzsal várja lakóit!Az egy szintes családi
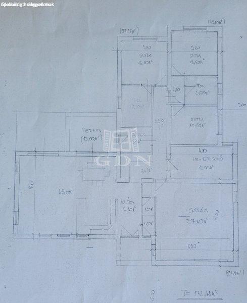
ház 769 nm összközműves telken épül, lakóterülete 178 nm + 24 nm terasz.Az
építkezés 2026 - ban kezdődik!A képeken látható -, a közelben lévő ingatlan
referenciaként bármikor megtekinthető!A ház helyiségei:- Amerikai konyhás
nappali: 45 nm,- Négy hálószoba: 12.6, 12.3, 13.2 és 12 nm,- Háztartási
helyiség,- Két, tágas fürdőszoba (zuhannyal vagy káddal, igény szerint)- Külön
WC,- Kamra- Közlekedő- Gardrób- Terasz: 24,33 nm- DUPLA GARÁZS 38,8 nm!MŰSZAKI
TARTALOM:A ház a 15 cm-es homlokzati hőszigeteléssel épül. A fűtést és a
melegvizet, HŐSZIVATTYÚ biztosítja PADLÓFŰTÉSSEL ÉS FALFŰTÉSSEL- FALHŰTÉSSEL,
cirkó gázkazánnal kiegészítve. A meleg nyarak elviselésére + 2 további
inverteres klíma áll majd rendelkezésre.A nyílászárók 3 rétegű üveggel
ellátottak, melyek külső színe harmóniában lesz az ANTRACIT, időtálló
betoncserép színével, belül pedig fehérek, így minden színvilággal
passzolnak.Minden ablakra szintén antracit színű, minőségi ELEKTROMOS alumínium
redőny és szúnyogháló kerül.Az ablakokat kívül és belül is időtálló kőpárkányok
díszítik.EXTRÁK :- 7 KW napelem- Elektromos garázskapu- Elektromos kertkapu-
Riasztórendszer- Eektromos redőny- Szúnyogháló- Hőszivattyú / falfűtés /
falhűtés / padlófűtés- Gázkazán - 2 db inverteres klíma- Térburkolatos járdák-
Gépkocsi beálló térkővel burkolva- DUPLA GARÁZSIGÉNY SZERINT:- Parkosított kert
(öntöző rendszerrel)- MedenceAz új tulajdonosnak lehetősége van a szaniterek és
a burkolatok megválasztására, valamint a belső falak színeit is
meghatározhatja.A környék közlekedése és ellátottsága kiváló!A közelben
található a helyi járat - és a helyközi járat buszmegállója. Közelben az M2 -
M0-s autópálya fel - és lehajtója, iskola, sportpálya, óvoda, játszótér,
gyógyszertár, TESCO, piac, étterem ... stb.Hitelre vásárló ügyfeleinknek
teljeskörű, ingyenes, bank semleges ügyintézéssel állunk rendelkezésére. Irodánk
ügyvédje pedig kedvező díjszabással vállalja az adásvételi szerződés
elkészítését.Amennyiben még el kell adnia ingatlanát, kérem, tiszteljen meg
bizalmával és kérje, nagy tapasztalattal rendelkező, az aktuális árakkal
tisztában lévő, irodánk ajánlatát.G.J. ...TOVÁBBI, TÖBBEZRES INGATLAN KÍNÁLAT:
www.gdn-ingatlan.hu - GDN azonosító: 383903
ház 769 nm összközműves telken épül, lakóterülete 178 nm + 24 nm terasz.Az
építkezés 2026 - ban kezdődik!A képeken látható -, a közelben lévő ingatlan
referenciaként bármikor megtekinthető!A ház helyiségei:- Amerikai konyhás
nappali: 45 nm,- Négy hálószoba: 12.6, 12.3, 13.2 és 12 nm,- Háztartási
helyiség,- Két, tágas fürdőszoba (zuhannyal vagy káddal, igény szerint)- Külön
WC,- Kamra- Közlekedő- Gardrób- Terasz: 24,33 nm- DUPLA GARÁZS 38,8 nm!MŰSZAKI
TARTALOM:A ház a 15 cm-es homlokzati hőszigeteléssel épül. A fűtést és a
melegvizet, HŐSZIVATTYÚ biztosítja PADLÓFŰTÉSSEL ÉS FALFŰTÉSSEL- FALHŰTÉSSEL,
cirkó gázkazánnal kiegészítve. A meleg nyarak elviselésére + 2 további
inverteres klíma áll majd rendelkezésre.A nyílászárók 3 rétegű üveggel
ellátottak, melyek külső színe harmóniában lesz az ANTRACIT, időtálló
betoncserép színével, belül pedig fehérek, így minden színvilággal
passzolnak.Minden ablakra szintén antracit színű, minőségi ELEKTROMOS alumínium
redőny és szúnyogháló kerül.Az ablakokat kívül és belül is időtálló kőpárkányok
díszítik.EXTRÁK :- 7 KW napelem- Elektromos garázskapu- Elektromos kertkapu-
Riasztórendszer- Eektromos redőny- Szúnyogháló- Hőszivattyú / falfűtés /
falhűtés / padlófűtés- Gázkazán - 2 db inverteres klíma- Térburkolatos járdák-
Gépkocsi beálló térkővel burkolva- DUPLA GARÁZSIGÉNY SZERINT:- Parkosított kert
(öntöző rendszerrel)- MedenceAz új tulajdonosnak lehetősége van a szaniterek és
a burkolatok megválasztására, valamint a belső falak színeit is
meghatározhatja.A környék közlekedése és ellátottsága kiváló!A közelben
található a helyi járat - és a helyközi járat buszmegállója. Közelben az M2 -
M0-s autópálya fel - és lehajtója, iskola, sportpálya, óvoda, játszótér,
gyógyszertár, TESCO, piac, étterem ... stb.Hitelre vásárló ügyfeleinknek
teljeskörű, ingyenes, bank semleges ügyintézéssel állunk rendelkezésére. Irodánk
ügyvédje pedig kedvező díjszabással vállalja az adásvételi szerződés
elkészítését.Amennyiben még el kell adnia ingatlanát, kérem, tiszteljen meg
bizalmával és kérje, nagy tapasztalattal rendelkező, az aktuális árakkal
tisztában lévő, irodánk ajánlatát.G.J. ...TOVÁBBI, TÖBBEZRES INGATLAN KÍNÁLAT:
www.gdn-ingatlan.hu - GDN azonosító: 383903
Részletek...
Adatlap
| Ár: | 260.000.000 Ft |
| Település: | Dunakeszi |
| A hirdető: | Ingatlaniroda ajánlatából |
| Értékesítés típusa: | Eladó |
| Utca: | Hargita utca |
| Telek nagysága (m2) : | 769 |
| Épület hasznos területe (m2) : | 178 |
| Szobák száma: | 5 |
| Félszobák száma: | 1 |
| Anyaga: | Tégla |
| A hirdető kérése: | Ingatlanközvetítő vagyok - keresse fel Irodánkat! |
| Feladás dátuma: | 2026.01.08 |
| Eddig megtekintették 39 alkalommal | |
A hirdető adatai
Kapcsolat a hirdetővel...
Családi házak rovaton belül a(z) "Eladó családi ház Dunakeszi, Hargita utca" című hirdetést látja. (fent)




























