
Eladó Debrecen, Senyei-Oláh István utca
AKCIÓ! 41 MILLIÓ ÁRENGEDMÉNY!Debrecen Óvárosi részén a Senyei-Oláh István utcán
eladó egy teljes körűen felújított két generációs ingatlan. Ára: 198.900.000
Ft (régi ár: 239.900.000 Ft). Nézze meg videónkat is:
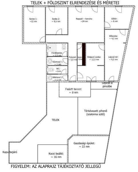
https://youtu.be/g5UW51_HNnMAz ingatlan alap méretei:- a telek mérete: 250 nm,-
az ingatlan méretei: 91nm+92nm+95nm= 278 nm. Ez egy teljeskörűen felújított
ingatlan. Sőt annyira friss, hogy egyes felújítási fázisok még most is zajlank,
igy akár még kisebb igényeinket most is jelezhetjük. Itt minden modern
anyagokból lett/ lesz felújítva, igy egy olyan ingatlant kapunk amire már nem
kell költeni (sőt sok berendezés is rendelkezésre áll).Az épület hasznos
alapterülete 183 nm melyben található:- Földszinten ( ami egy külön bejáratú
laktér):előtér, mosdó+WC, fürdőszoba, , spájz, nappali-konyha-étkező, 2 szoba,
dolgozó szoba (iroda), előszoba. - Emeleten :Előszoba, erkély és 2 db teljeskörű
apartman melyekben található: szoba, fürdőszoba, nappali-konyha-ebédlő -
Található még a telken egy fedett terasz, egy fedett kocsi beálló, egy teljes
körűen berendezett gazdasági épület, egy pihenő+ sütő-főző tér. - Továbbá a ház
alatt található egy 8 helységből álló mindennel felszerelt pince hálózat. A régi
földszintes épület a 2000 évek elején kapott egy emeletet, majd végül most
2025-ben minden pontja felújításon esett át, illetve jelenleg is folyik a
felújítás. 40 és 50 cm-es tégla falazatból áll az épület, amely kapott egy 10
cm-es szigetelést + a földszinten még kapott egy hang gátló gipszkarton réteget.
A tető is teljesen megújult és új beton cserepekkel látták el. A földszinten új
műanyag nyílászárók, míg az emeleten új fa nyílászárók lettek be építve,
melyeket hő védő rolókkal láttak el. Gyönyörű és impozáns terekkel felújított
lépcső és lépcső fordulok teszik még igényesebbé a házat. Az egész házban
gázcirkó látja el a fűtést, de a felújítás során az összes fűtőtest le lett
cserélve modernebbre, ezek mellett pedig több hűtő-fűtő klíma is
rendelkezésünkre áll. A ház kényelmét szolgálja még a praktikus vízlágyító
készülék is. Ami még jobbá teszi a házat az pedig a jó minőségű, jól felszerelt
és szép bútorzat, amely természetesen része az árnak. FIGYELEM:Az emeleten ki
lett alakítva 2 db apartman, ami külön bejáratú így a földszinti laktértől
különálló. Mindkettőben található 1 szoba, 1 fürdőszoba, 1 nagy nappalis -
konyhás-ebédlő. Ez annyira friss, hogy jelenleg is zajlanak a befejezések.A ház
méretéből és kialakításából adódóan, akár több generáció számára is alkalmas
lehet. Vállalkozok számára is remek lehetőség, ugyanis a méretek és helységek
számából adódóan, akár kiadásra is lehetőség van, ami a belváros közelsége miatt
(a Fórum pár perc sétára) igen nagy lehetőség. Ehhez segítségünkre van a kiváló
tömegközlekedés is, illetve az Egyetemek közelsége. A ház mellett van még a
telken egy jól felszerelt és minden közművel ellátott gazdasági épület, így
természetesen fűtés is és külön bojler is megtalálható benne a sok bútor
mellett. Található még a telken egy fedett kocsi beálló, de természetesen az
udvaron még további autóknak is van hely. A telken még ki lett alakítva egy sütő
+ pihenő övezet is egy térkövezett részen. A hátsó bejáratnál található egy szép
fából kialakított fedett terasz is. Ha ez még nem lenne elég, akkor a ház alatt
húzódik egy légbefúvó rendszerrel ellátott 8 helységből álló pince hálózat, ami
akár vállalkozásnak is meg felel, mint ahogy jelenleg is használatban van.
Foglaljuk össze:- van itt egy teljes körűen és igényesen felújított belvároshoz
közeli ház az óváros szívében,- van itt egy akár több generáció számára is
elegendő épület és- van itt egy sok plusz egységgel ellátott telek. Ez egy
kihagyhatatlan lehetőség! Fontos!Az ingatlan per és tehermentes, rövid időn
belül beköltözhető, 3 gyerekes CSOK Pluszra is alkalmas!Ha felkeltette
érdeklődését, hívja irodánkat bizalommal!Ha hitelre van szüksége éljen ingyenes,
személyre szabott hitel ügyintézési szolgáltatásunkkal is. ...TOVÁBBI, TÖBBEZRES
INGATLAN KÍNÁLAT: www.gdn-ingatlan.hu - GDN azonosító: 384810
eladó egy teljes körűen felújított két generációs ingatlan. Ára: 198.900.000
Ft (régi ár: 239.900.000 Ft). Nézze meg videónkat is:
https://youtu.be/g5UW51_HNnMAz ingatlan alap méretei:- a telek mérete: 250 nm,-
az ingatlan méretei: 91nm+92nm+95nm= 278 nm. Ez egy teljeskörűen felújított
ingatlan. Sőt annyira friss, hogy egyes felújítási fázisok még most is zajlank,
igy akár még kisebb igényeinket most is jelezhetjük. Itt minden modern
anyagokból lett/ lesz felújítva, igy egy olyan ingatlant kapunk amire már nem
kell költeni (sőt sok berendezés is rendelkezésre áll).Az épület hasznos
alapterülete 183 nm melyben található:- Földszinten ( ami egy külön bejáratú
laktér):előtér, mosdó+WC, fürdőszoba, , spájz, nappali-konyha-étkező, 2 szoba,
dolgozó szoba (iroda), előszoba. - Emeleten :Előszoba, erkély és 2 db teljeskörű
apartman melyekben található: szoba, fürdőszoba, nappali-konyha-ebédlő -
Található még a telken egy fedett terasz, egy fedett kocsi beálló, egy teljes
körűen berendezett gazdasági épület, egy pihenő+ sütő-főző tér. - Továbbá a ház
alatt található egy 8 helységből álló mindennel felszerelt pince hálózat. A régi
földszintes épület a 2000 évek elején kapott egy emeletet, majd végül most
2025-ben minden pontja felújításon esett át, illetve jelenleg is folyik a
felújítás. 40 és 50 cm-es tégla falazatból áll az épület, amely kapott egy 10
cm-es szigetelést + a földszinten még kapott egy hang gátló gipszkarton réteget.
A tető is teljesen megújult és új beton cserepekkel látták el. A földszinten új
műanyag nyílászárók, míg az emeleten új fa nyílászárók lettek be építve,
melyeket hő védő rolókkal láttak el. Gyönyörű és impozáns terekkel felújított
lépcső és lépcső fordulok teszik még igényesebbé a házat. Az egész házban
gázcirkó látja el a fűtést, de a felújítás során az összes fűtőtest le lett
cserélve modernebbre, ezek mellett pedig több hűtő-fűtő klíma is
rendelkezésünkre áll. A ház kényelmét szolgálja még a praktikus vízlágyító
készülék is. Ami még jobbá teszi a házat az pedig a jó minőségű, jól felszerelt
és szép bútorzat, amely természetesen része az árnak. FIGYELEM:Az emeleten ki
lett alakítva 2 db apartman, ami külön bejáratú így a földszinti laktértől
különálló. Mindkettőben található 1 szoba, 1 fürdőszoba, 1 nagy nappalis -
konyhás-ebédlő. Ez annyira friss, hogy jelenleg is zajlanak a befejezések.A ház
méretéből és kialakításából adódóan, akár több generáció számára is alkalmas
lehet. Vállalkozok számára is remek lehetőség, ugyanis a méretek és helységek
számából adódóan, akár kiadásra is lehetőség van, ami a belváros közelsége miatt
(a Fórum pár perc sétára) igen nagy lehetőség. Ehhez segítségünkre van a kiváló
tömegközlekedés is, illetve az Egyetemek közelsége. A ház mellett van még a
telken egy jól felszerelt és minden közművel ellátott gazdasági épület, így
természetesen fűtés is és külön bojler is megtalálható benne a sok bútor
mellett. Található még a telken egy fedett kocsi beálló, de természetesen az
udvaron még további autóknak is van hely. A telken még ki lett alakítva egy sütő
+ pihenő övezet is egy térkövezett részen. A hátsó bejáratnál található egy szép
fából kialakított fedett terasz is. Ha ez még nem lenne elég, akkor a ház alatt
húzódik egy légbefúvó rendszerrel ellátott 8 helységből álló pince hálózat, ami
akár vállalkozásnak is meg felel, mint ahogy jelenleg is használatban van.
Foglaljuk össze:- van itt egy teljes körűen és igényesen felújított belvároshoz
közeli ház az óváros szívében,- van itt egy akár több generáció számára is
elegendő épület és- van itt egy sok plusz egységgel ellátott telek. Ez egy
kihagyhatatlan lehetőség! Fontos!Az ingatlan per és tehermentes, rövid időn
belül beköltözhető, 3 gyerekes CSOK Pluszra is alkalmas!Ha felkeltette
érdeklődését, hívja irodánkat bizalommal!Ha hitelre van szüksége éljen ingyenes,
személyre szabott hitel ügyintézési szolgáltatásunkkal is. ...TOVÁBBI, TÖBBEZRES
INGATLAN KÍNÁLAT: www.gdn-ingatlan.hu - GDN azonosító: 384810
Részletek...
Adatlap
| Ár: | 198.900.000 Ft |
| Település: | Debrecen |
| A hirdető: | Ingatlaniroda ajánlatából |
| Értékesítés típusa: | Eladó |
| Használtság: | Használt |
| Utca: | Senyei-Oláh István utca |
| Telek nagysága (m2) : | 250 |
| Épület hasznos területe (m2) : | 278 |
| Szobák száma: | 6 |
| Fűtés: | Cirkó fűtéses |
| Ingatlan állapota: | Felújított |
| Anyaga: | Tégla |
| A hirdető kérése: | Ingatlanközvetítő vagyok - keresse fel Irodánkat! |
| Feladás dátuma: | 2026.05.08 |
| Eddig megtekintették 62 alkalommal | |
A hirdető adatai
Kapcsolat a hirdetővel...
Családi házak rovaton belül a(z) "Eladó Debrecen, Senyei-Oláh István utca" című hirdetést látja. (fent)




























