
Eladó Debrecen, Senyei-Oláh István utca
AKCIÓ! 21 MILLIÓ FT. ÁRENGEDMÉNY!Debrecen Óvárosi részén a Senyei-Oláh István
utcán eladó egy teljes körűen felújított két generációs ingatlan. Ára:
218.900.000 Ft (régi ár: 239.900.000 Ft). Nézze meg videónkat is:
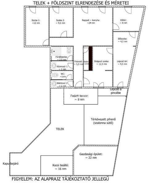
https://youtu.be/g5UW51_HNnMAz ingatlan alap méretei:- a telek mérete: 250 nm,-
az ingatlan méretei: 91nm+92nm+95nm= 278 nm.Az épület hasznos alapterülete 183
nm melyben található:- Földszinten: előtér, mosdó+WC, fürdőszoba, folyosó,
spájz, nappali-konyha-étkező, 2 szoba, dolgozó szoba, előszoba, lépcső tér.-
Emeleten: előtér, mosókonyha, spájz, 2 fürdőszoba, mosdó, közlekedő,
nappali-konyha-étkező, 2 szoba, lépcső tér.- Található még a telken egy fedett
terasz, egy fedett kocsi beálló, egy teljes körűen berendezett gazdasági épület,
egy pihenő+ sütő-főző tér.- Továbbá a ház alatt található egy 8 helységből álló
mindennel felszerelt pince hálózat.Ez egy teljeskörűen felújított ingatlan. Sőt
annyira friss, hogy egyes felújítási fázisok még most is zajlank, igy akár még
kisebb igényeinket most is jelezhetjük. Itt minden modern anyagokból lett/ lesz
felújítva, igy egy olyan ingatlant kapunk amire már nem kell költeni.A régi
földszintes épület a 2000 évek elején kapott egy emeletet, majd végül most
2025-ben minden pontja felújításon esett át. 40 és 50 cm-es tégla falazatból áll
az épület, amely kapott egy 10 cm-es szigetelést + a földszinten még kapott egy
hang gátló gipszkarton réteget. A tető is teljesen megújult és új beton
cserepekkel látták el. A földszinten új műanyag nyílászárók, míg az emeleten új
fa nyílászárók lettek be építve, melyeket hő védő rolókkal láttak el. Gyönyörű
és impozáns terekkel felújított lépcső és lépcső fordulok teszik még igényesebbé
a házat. Az egész házban gázcirkó látja el a fűtést, de a felújítás során az
összes fűtőtest le lett cserélve modernebbre, ezek mellett pedig több hűtő-fűtő
klíma is rendelkezésünkre áll. A ház kényelmét szolgálja még a praktikus
vízlágyító készülék is. Ami még jobbá teszi a házat az pedig a jó minőségű, jól
felszerelt és szép bútorzat, amely természetesen része az árnak. Az emeleten ki
lett alakítva egy napos, szép kis erkély is számunkra. A ház méretéből és
kialakításából adódóan, akár több generáció számára is alkalmas lehet.
Vállalkozok számára is remek lehetőség, ugyanis a méretek és helységek számából
adódóan, akár kiadásra is lehetőség van, ami a belváros közelsége miatt (a Fórum
pár perc sétára) igen nagy lehetőség. Ehhez segítségünkre van a kiváló
tömegközlekedés is, illetve az Egyetemek közelsége. A ház mellett van még a
telken egy jól felszerelt és minden közművel ellátott gazdasági épület, így
természetesen fűtés is és külön bojler is megtalálható benne a sok bútor
mellett. Található még a telken egy fedett kocsi beálló, de természetesen az
udvaron még további autóknak is van hely. A telken még ki lett alakítva egy sütő
+ pihenő övezet is egy térkövezett részen. A hátsó bejáratnál található egy szép
fából kialakított fedett terasz is. Ha ez még nem lenne elég, akkor a ház alatt
húzódik egy légbefúvó rendszerrel ellátott 8 helységből álló pince hálózat, ami
akár vállalkozásnak is meg felel, mint ahogy jelenleg is használatban van.
Figyelem!Most jön a ráadás, mindezek mellett az ingatlant egy több 10 milliót
termelő vállalkozással együtt kaphatja meg! Jelenleg az épületben egy jól menő,
gazdaságos és régi vállalkozás található (Intézmény higiénia és
megtakarításokkal foglalkozó vállalkozás), amely az eladási ár részét képezi.
Foglaljuk össze:- van itt egy teljes körűen és igényesen felújított belvároshoz
közeli ház az óváros szívében,- van itt egy akár több generáció számára is
elegendő épület,- van itt egy jól menő vállalkozás, és - van itt egy sok plusz
egységgel ellátott telek. Ez egy kihagyhatatlan lehetőség! Fontos!Az
ingatlan per és tehermentes, rövid időn belül beköltözhető, 3 gyerekes CSOK
Pluszra is alkalmas!Ha felkeltette érdeklődését, hívja irodánkat bizalommal!Ha
hitelre van szüksége éljen ingyenes, személyre szabott hitel ügyintézési
szolgáltatásunkkal is. ...TOVÁBBI, TÖBBEZRES INGATLAN KÍNÁLAT:
www.gdn-ingatlan.hu - GDN azonosító: 385054
utcán eladó egy teljes körűen felújított két generációs ingatlan. Ára:
218.900.000 Ft (régi ár: 239.900.000 Ft). Nézze meg videónkat is:
https://youtu.be/g5UW51_HNnMAz ingatlan alap méretei:- a telek mérete: 250 nm,-
az ingatlan méretei: 91nm+92nm+95nm= 278 nm.Az épület hasznos alapterülete 183
nm melyben található:- Földszinten: előtér, mosdó+WC, fürdőszoba, folyosó,
spájz, nappali-konyha-étkező, 2 szoba, dolgozó szoba, előszoba, lépcső tér.-
Emeleten: előtér, mosókonyha, spájz, 2 fürdőszoba, mosdó, közlekedő,
nappali-konyha-étkező, 2 szoba, lépcső tér.- Található még a telken egy fedett
terasz, egy fedett kocsi beálló, egy teljes körűen berendezett gazdasági épület,
egy pihenő+ sütő-főző tér.- Továbbá a ház alatt található egy 8 helységből álló
mindennel felszerelt pince hálózat.Ez egy teljeskörűen felújított ingatlan. Sőt
annyira friss, hogy egyes felújítási fázisok még most is zajlank, igy akár még
kisebb igényeinket most is jelezhetjük. Itt minden modern anyagokból lett/ lesz
felújítva, igy egy olyan ingatlant kapunk amire már nem kell költeni.A régi
földszintes épület a 2000 évek elején kapott egy emeletet, majd végül most
2025-ben minden pontja felújításon esett át. 40 és 50 cm-es tégla falazatból áll
az épület, amely kapott egy 10 cm-es szigetelést + a földszinten még kapott egy
hang gátló gipszkarton réteget. A tető is teljesen megújult és új beton
cserepekkel látták el. A földszinten új műanyag nyílászárók, míg az emeleten új
fa nyílászárók lettek be építve, melyeket hő védő rolókkal láttak el. Gyönyörű
és impozáns terekkel felújított lépcső és lépcső fordulok teszik még igényesebbé
a házat. Az egész házban gázcirkó látja el a fűtést, de a felújítás során az
összes fűtőtest le lett cserélve modernebbre, ezek mellett pedig több hűtő-fűtő
klíma is rendelkezésünkre áll. A ház kényelmét szolgálja még a praktikus
vízlágyító készülék is. Ami még jobbá teszi a házat az pedig a jó minőségű, jól
felszerelt és szép bútorzat, amely természetesen része az árnak. Az emeleten ki
lett alakítva egy napos, szép kis erkély is számunkra. A ház méretéből és
kialakításából adódóan, akár több generáció számára is alkalmas lehet.
Vállalkozok számára is remek lehetőség, ugyanis a méretek és helységek számából
adódóan, akár kiadásra is lehetőség van, ami a belváros közelsége miatt (a Fórum
pár perc sétára) igen nagy lehetőség. Ehhez segítségünkre van a kiváló
tömegközlekedés is, illetve az Egyetemek közelsége. A ház mellett van még a
telken egy jól felszerelt és minden közművel ellátott gazdasági épület, így
természetesen fűtés is és külön bojler is megtalálható benne a sok bútor
mellett. Található még a telken egy fedett kocsi beálló, de természetesen az
udvaron még további autóknak is van hely. A telken még ki lett alakítva egy sütő
+ pihenő övezet is egy térkövezett részen. A hátsó bejáratnál található egy szép
fából kialakított fedett terasz is. Ha ez még nem lenne elég, akkor a ház alatt
húzódik egy légbefúvó rendszerrel ellátott 8 helységből álló pince hálózat, ami
akár vállalkozásnak is meg felel, mint ahogy jelenleg is használatban van.
Figyelem!Most jön a ráadás, mindezek mellett az ingatlant egy több 10 milliót
termelő vállalkozással együtt kaphatja meg! Jelenleg az épületben egy jól menő,
gazdaságos és régi vállalkozás található (Intézmény higiénia és
megtakarításokkal foglalkozó vállalkozás), amely az eladási ár részét képezi.
Foglaljuk össze:- van itt egy teljes körűen és igényesen felújított belvároshoz
közeli ház az óváros szívében,- van itt egy akár több generáció számára is
elegendő épület,- van itt egy jól menő vállalkozás, és - van itt egy sok plusz
egységgel ellátott telek. Ez egy kihagyhatatlan lehetőség! Fontos!Az
ingatlan per és tehermentes, rövid időn belül beköltözhető, 3 gyerekes CSOK
Pluszra is alkalmas!Ha felkeltette érdeklődését, hívja irodánkat bizalommal!Ha
hitelre van szüksége éljen ingyenes, személyre szabott hitel ügyintézési
szolgáltatásunkkal is. ...TOVÁBBI, TÖBBEZRES INGATLAN KÍNÁLAT:
www.gdn-ingatlan.hu - GDN azonosító: 385054
Részletek...
Adatlap
| Ár: | 218.900.000 Ft |
| Település: | Debrecen |
| A hirdető: | Ingatlaniroda ajánlatából |
| Értékesítés típusa: | Eladó |
| Használtság: | Használt |
| Utca: | Senyei-Oláh István utca |
| Telek nagysága (m2) : | 250 |
| Épület hasznos területe (m2) : | 278 |
| Szobák száma: | 6 |
| Fűtés: | Cirkó fűtéses |
| Ingatlan állapota: | Felújított |
| Anyaga: | Tégla |
| A hirdető kérése: | Ingatlanközvetítő vagyok - keresse fel Irodánkat! |
| Feladás dátuma: | 2026.01.08 |
| Eddig megtekintették 36 alkalommal | |
A hirdető adatai
Kapcsolat a hirdetővel...
Családi házak rovaton belül a(z) "Eladó Debrecen, Senyei-Oláh István utca" című hirdetést látja. (fent)




























