
Eladó családi ház Szigetcsép, Pest megye
SZIGETCSÉPEN, MAGAS FELSZERELTSÉGŰ, HŐSZIVATTYÚS, 3 SZOBA+NAPPALIS,
ÖSSZKOMFORTOS ÚJ CSALÁDI HÁZ, KIVÁLÓ REFERENCIÁVAL RENDELKEZŐ BERUHÁZÓTÓL
ELADÓ!Szigetcsépen, Hév-megállótól 5 perc sétára, most épülő, DNY fekvésű, 101
m2 nettó (br.133 m2) lakóterületű, rendkívül jó beosztású, önálló, dupla
komfortos egyszintes, alacsony fenntartási költségű lakóház, magas
alapfelszereltséggel, 838 m2 összközműves bekerített telekkel, nyitott gépkocsi
beállóval eladó.Műszaki tartalom:-Vasbeton alap-30-as YTONG tégla falazat-Padló
alatt 10 cm hőszigetelés,-Homlokzaton 12 cm normál hőszigetelő rendszer
tört-fehér nemes vakolattal színezve -Lábazaton 10 cm xps szigetelés sötét
szürke műgyanta-Fagerendás födém gipszkarton mennyezettel, 25 cm fújt
hőhídmentes szigetelés -Impregnált fa tetőszerkezet, felső kategóriás sík
betoncseréppel antracit színben páraáteresztő fóliával-Válaszfalak 10 cm-es
YTONG-Vakolt fal 2 réteg glettelés, 2 réteg festés fehér színben -Belső MDF
nyílászárók-Hideg,- illetve meleg burkolat 6000 Ft/m2 árig választhatók
-Hibrid fűtésrendszer (hőszivattyú/kombi gázkazán), hőleadás
padlófűtéssel-Személybejáró, ház körüli kísérő járda térkövezett,-Gépkocsi
beálló murvás, kérésre térkövezett térítés ellenében -Terasz fagyálló
hidegburkolattal burkolva -Antracit alumínium csatornát tartalmaz-Kiegészítő
hűtés-fűtésnek 1 db inverteres klíma A+ energia osztály-Riasztó előkészítés-Fúrt
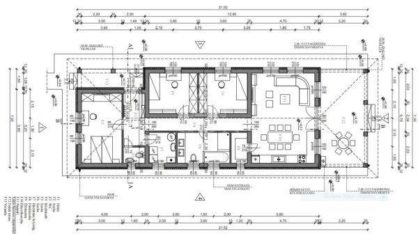
kútAz otthon helyiségei:-Előtér 6,24 m2 -Szoba 15,60 m2-Közlekedő 7,90
m2-Szoba 10,80 m2 -Szoba 10,80 m2-Nappali 20,21 m2-Étkező/konyha 11,28 m2-Kamra
2,76 m2-Háztartási helyiség 4,60 m2-Wc 1,92 m2-Fürdőszoba 8,97 m2 Lakás hasznos
lakóterülete 101,08 m2-Fedett terasz 25,55 m2-Veranda 6,73 m2Tervezett átadás
2025 év vége. Szigetcsép a Csepel-sziget egyik legbájosabb települése,
Budapesttől mindössze 30 km-re. Kiváló elhelyezkedése és jó közlekedése révén
ideális választás azoknak, akik csendes, természetközeli környezetre vágynak. A
Ráckevei-Duna közelsége nemcsak gyönyörű kilátást, hanem horgászási és vízi
sportolási lehetőségeket is kínál. A környék nyugodt, barátságos, kiválóan
alkalmas állandó otthonnak.Nálunk mindent egy helyen intézhet:- hivatalos
ingatlanközvetítés;- szakszerű jogi képviselet;- profi CSOK-PLUSZ, és
hitelügyintézés: 16 Bank, több mint 100 konstrukció;Kérésére, műszaki leírást,
nagy-felbontású alaprajzot küldök!VÁROM MEGTISZTELŐ HÍVÁSÁT! ...TOVÁBBI,
TÖBBEZRES INGATLAN KÍNÁLAT: www.gdn-ingatlan.hu - GDN azonosító: 385261
ÖSSZKOMFORTOS ÚJ CSALÁDI HÁZ, KIVÁLÓ REFERENCIÁVAL RENDELKEZŐ BERUHÁZÓTÓL
ELADÓ!Szigetcsépen, Hév-megállótól 5 perc sétára, most épülő, DNY fekvésű, 101
m2 nettó (br.133 m2) lakóterületű, rendkívül jó beosztású, önálló, dupla
komfortos egyszintes, alacsony fenntartási költségű lakóház, magas
alapfelszereltséggel, 838 m2 összközműves bekerített telekkel, nyitott gépkocsi
beállóval eladó.Műszaki tartalom:-Vasbeton alap-30-as YTONG tégla falazat-Padló
alatt 10 cm hőszigetelés,-Homlokzaton 12 cm normál hőszigetelő rendszer
tört-fehér nemes vakolattal színezve -Lábazaton 10 cm xps szigetelés sötét
szürke műgyanta-Fagerendás födém gipszkarton mennyezettel, 25 cm fújt
hőhídmentes szigetelés -Impregnált fa tetőszerkezet, felső kategóriás sík
betoncseréppel antracit színben páraáteresztő fóliával-Válaszfalak 10 cm-es
YTONG-Vakolt fal 2 réteg glettelés, 2 réteg festés fehér színben -Belső MDF
nyílászárók-Hideg,- illetve meleg burkolat 6000 Ft/m2 árig választhatók
-Hibrid fűtésrendszer (hőszivattyú/kombi gázkazán), hőleadás
padlófűtéssel-Személybejáró, ház körüli kísérő járda térkövezett,-Gépkocsi
beálló murvás, kérésre térkövezett térítés ellenében -Terasz fagyálló
hidegburkolattal burkolva -Antracit alumínium csatornát tartalmaz-Kiegészítő
hűtés-fűtésnek 1 db inverteres klíma A+ energia osztály-Riasztó előkészítés-Fúrt
kútAz otthon helyiségei:-Előtér 6,24 m2 -Szoba 15,60 m2-Közlekedő 7,90
m2-Szoba 10,80 m2 -Szoba 10,80 m2-Nappali 20,21 m2-Étkező/konyha 11,28 m2-Kamra
2,76 m2-Háztartási helyiség 4,60 m2-Wc 1,92 m2-Fürdőszoba 8,97 m2 Lakás hasznos
lakóterülete 101,08 m2-Fedett terasz 25,55 m2-Veranda 6,73 m2Tervezett átadás
2025 év vége. Szigetcsép a Csepel-sziget egyik legbájosabb települése,
Budapesttől mindössze 30 km-re. Kiváló elhelyezkedése és jó közlekedése révén
ideális választás azoknak, akik csendes, természetközeli környezetre vágynak. A
Ráckevei-Duna közelsége nemcsak gyönyörű kilátást, hanem horgászási és vízi
sportolási lehetőségeket is kínál. A környék nyugodt, barátságos, kiválóan
alkalmas állandó otthonnak.Nálunk mindent egy helyen intézhet:- hivatalos
ingatlanközvetítés;- szakszerű jogi képviselet;- profi CSOK-PLUSZ, és
hitelügyintézés: 16 Bank, több mint 100 konstrukció;Kérésére, műszaki leírást,
nagy-felbontású alaprajzot küldök!VÁROM MEGTISZTELŐ HÍVÁSÁT! ...TOVÁBBI,
TÖBBEZRES INGATLAN KÍNÁLAT: www.gdn-ingatlan.hu - GDN azonosító: 385261
Részletek...
Adatlap
| Ár: | 95.000.000 Ft |
| Település: | Szigetcsép |
| A hirdető: | Ingatlaniroda ajánlatából |
| Értékesítés típusa: | Eladó |
| Utca: | Pest megye |
| Telek nagysága (m2) : | 838 |
| Épület hasznos területe (m2) : | 133 |
| Szobák száma: | 4 |
| Anyaga: | Egyéb anyagból készült épület |
| A hirdető kérése: | Ingatlanközvetítő vagyok - keresse fel Irodánkat! |
| Feladás dátuma: | 2026.01.08 |
| Eddig megtekintették 41 alkalommal | |
A hirdető adatai
Kapcsolat a hirdetővel...
Családi házak rovaton belül a(z) "Eladó családi ház Szigetcsép, Pest megye" című hirdetést látja. (fent)




























