
Eladó családi ház Szeged, Szeged-Szentmihály kedvelt részén
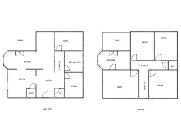
Szeged-Szentmihályon vált eladóvá ez az igényes, 248 m2-es, 2 szintes családi
ház 1038 m2-es telken.Az ingatlan Szentmihály új részén, csendes utcában
található.A földszinti rész 124m2, tetőtér 124m2, míg a pince 61m2.A ház
1992-ben épült, tégla szerkezetű, a külső homlokzat szigetelve van és korszerű
műanyag nyílászárók lettek beépítve.Az épület mögött található a 36 m2-es,
különálló dupla garázs áll.Szépen parkosított kertben, kiépített úszómedence
található tisztító, vízforgató rendszerrel ellátva. Továbbá kis hangulatos
halastó, pavilon, grillező, kemence helyezkedik el.A földszinten kapott helyet a
42 m2 nappali, kandallóval, ami nem csak látványos, de jelentős hőt is termel.
Klasszikus konyha, kamra, fürdőszoba, külön WC, hálószoba, háztartási
helyiség.Az emeleten három tágas hálószoba, fürdőszoba, külön WC.A ház fűtése a
pincében elhelyezett gázkazánról történik padlófűtéssel, a hűtésről pedig klíma
gondoskodik.Az ingatlan a gondos kezek nyomán nagyon szép állapotú, a kertben
különleges nővények kaptak helyet, igazi nyugalom szigete az itt élők
számára.Kiváló elhelyezkedése miatt több gyermekes családok ideális otthona
lehet, de több generáció együttélésére is alkalmas.Az épülő BYD- autógyár 10
perc autóval, sorompó és közlekedési lámpa nélkül kiszámíthatóan elérhető.Az
ingatlan tehermentes, 3 hónapon belül költözhető.NÉZZE MEG AJÁNLATUNKAT
SZEMÉLYESEN IS! ...TOVÁBBI, TÖBBEZRES INGATLAN KÍNÁLAT: www.gdn-ingatlan.hu -
GDN azonosító: 385638
ház 1038 m2-es telken.Az ingatlan Szentmihály új részén, csendes utcában
található.A földszinti rész 124m2, tetőtér 124m2, míg a pince 61m2.A ház
1992-ben épült, tégla szerkezetű, a külső homlokzat szigetelve van és korszerű
műanyag nyílászárók lettek beépítve.Az épület mögött található a 36 m2-es,
különálló dupla garázs áll.Szépen parkosított kertben, kiépített úszómedence
található tisztító, vízforgató rendszerrel ellátva. Továbbá kis hangulatos
halastó, pavilon, grillező, kemence helyezkedik el.A földszinten kapott helyet a
42 m2 nappali, kandallóval, ami nem csak látványos, de jelentős hőt is termel.
Klasszikus konyha, kamra, fürdőszoba, külön WC, hálószoba, háztartási
helyiség.Az emeleten három tágas hálószoba, fürdőszoba, külön WC.A ház fűtése a
pincében elhelyezett gázkazánról történik padlófűtéssel, a hűtésről pedig klíma
gondoskodik.Az ingatlan a gondos kezek nyomán nagyon szép állapotú, a kertben
különleges nővények kaptak helyet, igazi nyugalom szigete az itt élők
számára.Kiváló elhelyezkedése miatt több gyermekes családok ideális otthona
lehet, de több generáció együttélésére is alkalmas.Az épülő BYD- autógyár 10
perc autóval, sorompó és közlekedési lámpa nélkül kiszámíthatóan elérhető.Az
ingatlan tehermentes, 3 hónapon belül költözhető.NÉZZE MEG AJÁNLATUNKAT
SZEMÉLYESEN IS! ...TOVÁBBI, TÖBBEZRES INGATLAN KÍNÁLAT: www.gdn-ingatlan.hu -
GDN azonosító: 385638
Részletek...
Adatlap
| Ár: | 220.000.000 Ft |
| Település: | Szeged |
| A hirdető: | Ingatlaniroda ajánlatából |
| Értékesítés típusa: | Eladó |
| Használtság: | Használt |
| Utca: | Szeged-Szentmihály kedvelt részén |
| Telek nagysága (m2) : | 1038 |
| Épület hasznos területe (m2) : | 248 |
| Szobák száma: | 5 |
| Fűtés: | Cirkó fűtéses |
| Ingatlan állapota: | Normál állapotú |
| Anyaga: | Tégla |
| A hirdető kérése: | Ingatlanközvetítő vagyok - keresse fel Irodánkat! |
| Feladás dátuma: | 2026.03.09 |
| Eddig megtekintették 61 alkalommal | |
A hirdető adatai
Kapcsolat a hirdetővel...
Családi házak rovaton belül a(z) "Eladó családi ház Szeged, Szeged-Szentmihály kedvelt részén" című hirdetést látja. (fent)




























