
Eladó ikerház Szeged, Tápé kedvelt részén
IKERHÁZ ELADÓ SZEGED TÁPÉN SZERKEZETKÉSZ ÁLLAPOTBANSzeged egyik kedvelt
városrészében, Tápén kínálok megvételre egy kétlakásos, tégla építésű ikerház
egyik felét, amely a modern otthonok minden elvárásának megfelel.Az ingatlan
nettó 135,33m˛, alapterületű, melyet tovább növel a 6 m˛-es erkély és a 30 m˛-es
terasz, ideális teret biztosítva a pihenéshez és a családi együttlétekhez. Az
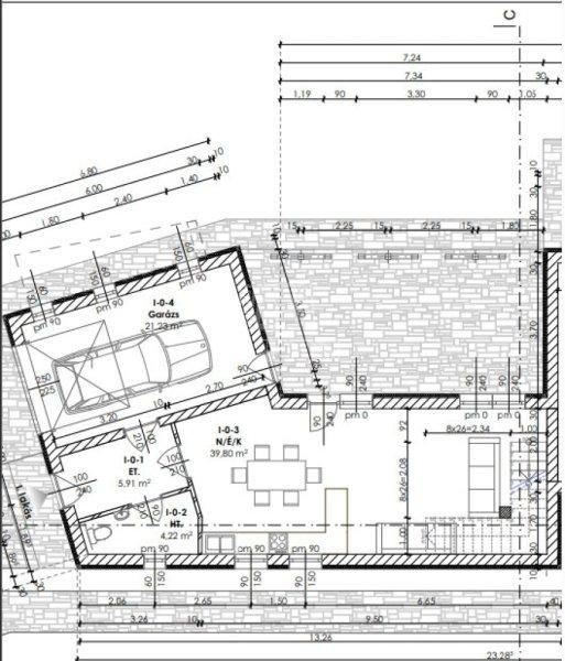
alaprajz a hirdetés mellékleteként elérhető.Az ingatlan szerkezetkész állapotban
kerül értékesítésre, így a végső kialakítás teljes mértékben az új tulajdonos
ízlését és igényeit tükrözheti.Kiemelkedő műszaki tartalom30 cm PTH tégla
falazat12 cm külső hőszigetelésPrémium minőségű, 3 rétegű, 6 légkamrás
nyílászárókkívül dió, belül fehér kivitelbenPadlófűtés hőszivattyús
rendszerrelHelyiségenként szabályozható hűtés hőszivattyúvalH tarifás
áramSzerkezetkész állapot részleteiGlettelt falak, festésre előkészítveKomplett
villanyszerelés (szerelvények nélkül)Napelem előkészítésPANASONIC hőszivattyús
fűtés?hűtés rendszerElektromos árnyékolástechnika: redőnyök és
zsalúziákTérkövezett udvarAz ár nem tartalmazzaBeltéri ajtók és
kilincsekKapcsolók, lámpák, aljzatokHideg- és melegburkolatokSzaniterekEz az
ingatlan ideális választás azok számára, akik modern, energiatakarékos és hosszú
távon értékálló otthont keresnek Szeged egyik jól megközelíthető, mégis nyugodt
környezetében. További információért és megtekintésért keressen bizalommal!
...TOVÁBBI, TÖBBEZRES INGATLAN KÍNÁLAT: www.gdn-ingatlan.hu - GDN azonosító:
390877
városrészében, Tápén kínálok megvételre egy kétlakásos, tégla építésű ikerház
egyik felét, amely a modern otthonok minden elvárásának megfelel.Az ingatlan
nettó 135,33m˛, alapterületű, melyet tovább növel a 6 m˛-es erkély és a 30 m˛-es
terasz, ideális teret biztosítva a pihenéshez és a családi együttlétekhez. Az
alaprajz a hirdetés mellékleteként elérhető.Az ingatlan szerkezetkész állapotban
kerül értékesítésre, így a végső kialakítás teljes mértékben az új tulajdonos
ízlését és igényeit tükrözheti.Kiemelkedő műszaki tartalom30 cm PTH tégla
falazat12 cm külső hőszigetelésPrémium minőségű, 3 rétegű, 6 légkamrás
nyílászárókkívül dió, belül fehér kivitelbenPadlófűtés hőszivattyús
rendszerrelHelyiségenként szabályozható hűtés hőszivattyúvalH tarifás
áramSzerkezetkész állapot részleteiGlettelt falak, festésre előkészítveKomplett
villanyszerelés (szerelvények nélkül)Napelem előkészítésPANASONIC hőszivattyús
fűtés?hűtés rendszerElektromos árnyékolástechnika: redőnyök és
zsalúziákTérkövezett udvarAz ár nem tartalmazzaBeltéri ajtók és
kilincsekKapcsolók, lámpák, aljzatokHideg- és melegburkolatokSzaniterekEz az
ingatlan ideális választás azok számára, akik modern, energiatakarékos és hosszú
távon értékálló otthont keresnek Szeged egyik jól megközelíthető, mégis nyugodt
környezetében. További információért és megtekintésért keressen bizalommal!
...TOVÁBBI, TÖBBEZRES INGATLAN KÍNÁLAT: www.gdn-ingatlan.hu - GDN azonosító:
390877
Részletek...
Adatlap
| Ár: | 142.900.000 Ft |
| Település: | Szeged |
| A hirdető: | Ingatlaniroda ajánlatából |
| Értékesítés típusa: | Eladó |
| Használtság: | Új építésű |
| Utca: | Tápé kedvelt részén |
| Telek nagysága (m2) : | 600 |
| Épület hasznos területe (m2) : | 135 |
| Szobák száma: | 5 |
| Anyaga: | Tégla |
| A hirdető kérése: | Ingatlanközvetítő vagyok - keresse fel Irodánkat! |
| Feladás dátuma: | 2026.04.21 |
| Eddig megtekintették 51 alkalommal | |
A hirdető adatai
Kapcsolat a hirdetővel...
Családi házak rovaton belül a(z) "Eladó ikerház Szeged, Tápé kedvelt részén" című hirdetést látja. (fent)




























