
Eladó 125m2-es Ikerház, Gödöllő
Gödöllő kertvárosi részén új építésű, nappali + 3 szobás
garázskapcsolatos ikerház eladó!Műszaki adatok:- vasalt, beton sávalap,- 30-as
Porotherm tégla tartófalak, 10 cm Ytong válaszfalak, - 20cm homlokzati
hőszigetelés, - 3 rétegű, kívül antracit-belül fehér színű, SALAMANDER
nyílászárók,- programozható, automata alumínium redőny minden ablakon és a
teraszajtókon is, antracit színben,- födémen 25cm fújt gyapotszigetelés,-
antracit Bramac tetőcserép,- DAIKIN Altherma 3RF típusú, saját hőszivattyús
rendszer padlófűtéssel,- 4 klíma beépíthető, - mozgásérzékelő, kamera rendszer,
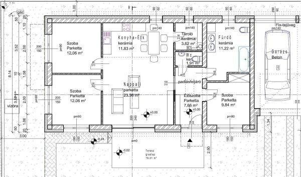
napelem, elektromos autó töltő előkészítve. Elosztás:- Előszoba,
nappali-konyha-étkező, 3 szoba, kamra, sarokkádas-zuhanyzós fürdő, külön
mellékhelyiség + 25nm garázs és 16nm terasz.Telek:- 474nm lekerített telekrész,-
utcafronton épített fehér betonkerítés gondozásmentes, antracit alumínium
kerítéslécekkel, úszókapuval,- a térkövezett kocsibeállón, valamint a kert
részben is kiépítésre kerültek a kerti lámpák elhelyezésének lehetőségei.- A két
ikerházfél csak a garázsoknál ér össze, nincs közös fal, a kapuk és kocsibejárók
teljesen különállóak, így biztosítva a maximális intimitást.Környék:- Csendes,
aszfaltozott utcában, rendezett környezetben található.- Közelben minden
megtalálható, ami a kényelmes hétköznapokhoz szükséges: iskola, óvoda,
bevásárlási lehetőség, orvosi rendelő, gyógyszertár, vasútállomás, HÉV,
buszmegálló, mind néhány percen belül elérhető. Az ingatlant több referenciával
rendelkező, megbízható kivitelező építi! Burkolatok, belső ajtók a vevői igényei
szerint még szabadon választhatók!A kivitelezés során a legkorszerűbb megoldások
lettek alkalmazva.Kérésre teljes műszaki tartalmat, alaprajzot szívesen küldünk!
Az építkezés munkafolyamata végig fotókkal dokumentált.(Az alaprajz után
szereplő képek a hátsó lakásról készültek, referenciák.)Irányár:
109,9MftHivatkozási szám: 2518175.Megtekinthető telefonos időpont egyeztetés
alapján:Sápi Balázs +36 20 772-2429 sapibalazs@godolloi.hu GÖDÖLLŐ
INGATLANKÖZPONT - www.godolloi.hu: Gödöllő és környéke legnagyobb ingatlan
választéka /Gödöllő, Szada, Veresegyház, Kistarcsa, Kerepes, Erdőkertes, Fót,
Dunakeszi/ eladó-kiadó családi ház, telek, lakás! Ingatlan építés és felújítás!
garázskapcsolatos ikerház eladó!Műszaki adatok:- vasalt, beton sávalap,- 30-as
Porotherm tégla tartófalak, 10 cm Ytong válaszfalak, - 20cm homlokzati
hőszigetelés, - 3 rétegű, kívül antracit-belül fehér színű, SALAMANDER
nyílászárók,- programozható, automata alumínium redőny minden ablakon és a
teraszajtókon is, antracit színben,- födémen 25cm fújt gyapotszigetelés,-
antracit Bramac tetőcserép,- DAIKIN Altherma 3RF típusú, saját hőszivattyús
rendszer padlófűtéssel,- 4 klíma beépíthető, - mozgásérzékelő, kamera rendszer,
napelem, elektromos autó töltő előkészítve. Elosztás:- Előszoba,
nappali-konyha-étkező, 3 szoba, kamra, sarokkádas-zuhanyzós fürdő, külön
mellékhelyiség + 25nm garázs és 16nm terasz.Telek:- 474nm lekerített telekrész,-
utcafronton épített fehér betonkerítés gondozásmentes, antracit alumínium
kerítéslécekkel, úszókapuval,- a térkövezett kocsibeállón, valamint a kert
részben is kiépítésre kerültek a kerti lámpák elhelyezésének lehetőségei.- A két
ikerházfél csak a garázsoknál ér össze, nincs közös fal, a kapuk és kocsibejárók
teljesen különállóak, így biztosítva a maximális intimitást.Környék:- Csendes,
aszfaltozott utcában, rendezett környezetben található.- Közelben minden
megtalálható, ami a kényelmes hétköznapokhoz szükséges: iskola, óvoda,
bevásárlási lehetőség, orvosi rendelő, gyógyszertár, vasútállomás, HÉV,
buszmegálló, mind néhány percen belül elérhető. Az ingatlant több referenciával
rendelkező, megbízható kivitelező építi! Burkolatok, belső ajtók a vevői igényei
szerint még szabadon választhatók!A kivitelezés során a legkorszerűbb megoldások
lettek alkalmazva.Kérésre teljes műszaki tartalmat, alaprajzot szívesen küldünk!
Az építkezés munkafolyamata végig fotókkal dokumentált.(Az alaprajz után
szereplő képek a hátsó lakásról készültek, referenciák.)Irányár:
109,9MftHivatkozási szám: 2518175.Megtekinthető telefonos időpont egyeztetés
alapján:Sápi Balázs +36 20 772-2429 sapibalazs@godolloi.hu GÖDÖLLŐ
INGATLANKÖZPONT - www.godolloi.hu: Gödöllő és környéke legnagyobb ingatlan
választéka /Gödöllő, Szada, Veresegyház, Kistarcsa, Kerepes, Erdőkertes, Fót,
Dunakeszi/ eladó-kiadó családi ház, telek, lakás! Ingatlan építés és felújítás!
Részletek...
Adatlap
| Ár: | 109.900.000 Ft |
| Település: | Gödöllő |
| A hirdető: | Ingatlaniroda ajánlatából |
| Értékesítés típusa: | Eladó |
| Telek nagysága (m2) : | 474 |
| Épület hasznos területe (m2) : | 125 |
| Szobák száma: | 4 |
| Komfort: | Összkomfortos |
| Ingatlan állapota: | Normál állapotú |
| Anyaga: | Tégla |
| A hirdető kérése: | Ingatlanközvetítő vagyok - keresse fel Irodánkat! |
| Feladás dátuma: | 2026.01.20 |
| Eddig megtekintették 35 alkalommal | |
A hirdető adatai
Kapcsolat a hirdetővel...
Családi házak rovaton belül a(z) "Eladó 125m2-es Ikerház, Gödöllő" című hirdetést látja. (fent)




























