
Eladó ikerház Mogyoród, Nagyhomoki út
Eladásra kínálok Mogyoródon kertvárosi környezetben, 2026. év augusztusi
átadással egy ikerház felet, amely 125 nm nagyságú, és 115 Millió forintba
kerül, kulcsrakész állapotban.Jellemzője, a minőségi alapanyag, átgondolt terv!-
30 centiméter vastagságú Porotherm tartó téglafalazattal, a szintek között
monolit födémmel, vagy Porotherm födémmel készül, a gépészeti rész szerinti
területeken a födémbe tekert csővezetékekkel. A válaszfalak pedig 10 centiméter
vastagságú téglából lesznek.- Az emeleti födém szeglemezes tartószerkezettel
készül, amely 25 cm hőszigetelést kap, valamint a mennyezeti tartószerkezeten
elhelyezett álmennyezeti gipszkarton rendszer kerül kialakításra a gépészeti
rész szerinti területeken integrált mennyezethűtéssel. A padlásterek
megközelítésére padlásfeljáró beépítésre kerül.- A földszinten a vízszigetelés
fölé 12 cm lépésálló hőszigetelés kerül, melyre fóliafedést terítünk, erre pedig
a burkolatok alá 8 centiméter vastagságban úsztatott esztrich beton készül,
benne a padlófűtési csővezetékekkel.- A homlokzaton 15 cm vastagságú EPS80, a
lábazaton 10 cm vastagságú XPS polisztirol alapú homlokzati hőszigetelő rendszer
készül 2mm szemcsenagyságú dörzsölt vakolattal törtfehér kivitelben. A lábazat
igazodik a cserép színéhez.- A tető, Terrán barna színű cserépfedést kap. Az
ereszcsatornák és az egyéb bádogozások alumíniumból készülnek, igazodva a cserép
színéhez.- A külső műanyag nyílászárók, a (a jelenlegi energetikai
szabályozásnak megfelelően) 6 légkamrás, háromrétegű hőszigetelő üvegezéssel,
argon gázzal töltve, kerülnek kialakításra, bukó-nyíló kivitelben.-A padlókra a
fürdőkben, konyhában, étkezőben, mellékhelyiségekben, kamrában, előszobában,
közlekedőben, lépcsőházban, igény szerint választható, hálósan rakott mázas
kerámialap, vagy greslap kerül lerakásra. Jelenleg, még választható,
burkolatok!-Nappaliban, hálószobákban, gardróbban közepes kopásállóságú, I.o.
laminált parketta választható, 4 centiméter magas szegélyléccel.-A Fűtést és a
használati melegvíz előállítását, valamint a hűtést hőszivattyú végzi. A
vezérlés nappali és szobánkénti digitális termosztáttal, és mini hőközpont
kialakításával történik. Az emeleten és a földszinten padlófűtés és
mennyezethűtés (vizes és nem lakó helyiségekben, valamint a konyha fölött nincs
hűtés) kerül kiépítésre. A cirkulációs rendszer kiépítését az alapár nem
tartalmazza. A WC berendezések falsík alatti tartállyal készülnek.Egyéb
információért hívjon bizalommal! ...TOVÁBBI, TÖBBEZRES INGATLAN KÍNÁLAT:
www.gdn-ingatlan.hu - GDN azonosító: 387769
átadással egy ikerház felet, amely 125 nm nagyságú, és 115 Millió forintba
kerül, kulcsrakész állapotban.Jellemzője, a minőségi alapanyag, átgondolt terv!-
30 centiméter vastagságú Porotherm tartó téglafalazattal, a szintek között
monolit födémmel, vagy Porotherm födémmel készül, a gépészeti rész szerinti
területeken a födémbe tekert csővezetékekkel. A válaszfalak pedig 10 centiméter
vastagságú téglából lesznek.- Az emeleti födém szeglemezes tartószerkezettel
készül, amely 25 cm hőszigetelést kap, valamint a mennyezeti tartószerkezeten
elhelyezett álmennyezeti gipszkarton rendszer kerül kialakításra a gépészeti
rész szerinti területeken integrált mennyezethűtéssel. A padlásterek
megközelítésére padlásfeljáró beépítésre kerül.- A földszinten a vízszigetelés
fölé 12 cm lépésálló hőszigetelés kerül, melyre fóliafedést terítünk, erre pedig
a burkolatok alá 8 centiméter vastagságban úsztatott esztrich beton készül,
benne a padlófűtési csővezetékekkel.- A homlokzaton 15 cm vastagságú EPS80, a
lábazaton 10 cm vastagságú XPS polisztirol alapú homlokzati hőszigetelő rendszer
készül 2mm szemcsenagyságú dörzsölt vakolattal törtfehér kivitelben. A lábazat
igazodik a cserép színéhez.- A tető, Terrán barna színű cserépfedést kap. Az
ereszcsatornák és az egyéb bádogozások alumíniumból készülnek, igazodva a cserép
színéhez.- A külső műanyag nyílászárók, a (a jelenlegi energetikai
szabályozásnak megfelelően) 6 légkamrás, háromrétegű hőszigetelő üvegezéssel,
argon gázzal töltve, kerülnek kialakításra, bukó-nyíló kivitelben.-A padlókra a
fürdőkben, konyhában, étkezőben, mellékhelyiségekben, kamrában, előszobában,
közlekedőben, lépcsőházban, igény szerint választható, hálósan rakott mázas
kerámialap, vagy greslap kerül lerakásra. Jelenleg, még választható,
burkolatok!-Nappaliban, hálószobákban, gardróbban közepes kopásállóságú, I.o.
laminált parketta választható, 4 centiméter magas szegélyléccel.-A Fűtést és a
használati melegvíz előállítását, valamint a hűtést hőszivattyú végzi. A
vezérlés nappali és szobánkénti digitális termosztáttal, és mini hőközpont
kialakításával történik. Az emeleten és a földszinten padlófűtés és
mennyezethűtés (vizes és nem lakó helyiségekben, valamint a konyha fölött nincs
hűtés) kerül kiépítésre. A cirkulációs rendszer kiépítését az alapár nem
tartalmazza. A WC berendezések falsík alatti tartállyal készülnek.Egyéb
információért hívjon bizalommal! ...TOVÁBBI, TÖBBEZRES INGATLAN KÍNÁLAT:
www.gdn-ingatlan.hu - GDN azonosító: 387769
Részletek...
Adatlap
| Ár: | 114.900.000 Ft |
| Település: | Mogyoród |
| A hirdető: | Ingatlaniroda ajánlatából |
| Értékesítés típusa: | Eladó |
| Használtság: | Új építésű |
| Utca: | Nagyhomoki út |
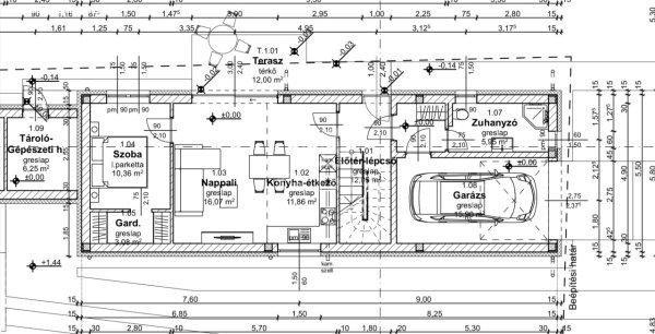
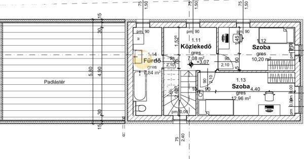
| Telek nagysága (m2) : | 500 |
| Épület hasznos területe (m2) : | 125 |
| Szobák száma: | 4 |
| Anyaga: | Tégla |
| A hirdető kérése: | Ingatlanközvetítő vagyok - keresse fel Irodánkat! |
| Feladás dátuma: | 2025.12.28 |
| Eddig megtekintették 34 alkalommal | |
A hirdető adatai
Kapcsolat a hirdetővel...
Családi házak rovaton belül a(z) "Eladó ikerház Mogyoród, Nagyhomoki út" című hirdetést látja. (fent)




























