
Eladó házrész Budapest, XVI. kerület, Baross utca
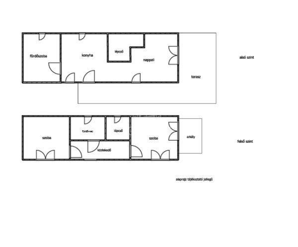
Eladásra kínálunk egy újszerű állapotú, 69 m˛-es házrészt a XVI.kerület csendes
kertvárosi részén.A három szobás ingatlannal egyben 180 m˛-es saját kert is jár,
ami kiváló lehetőséget nyújt pihenésre és szabadidős tevékenységekre. Plusz
kocsi beállás is megoldott.A házhoz tartozik egy 3 m˛-es erkély és egy tágas, 32
m˛-es terasz, kertre néző kilátással, amely tökéletes helyszín a
kikapcsolódáshoz.Az elektromos fűtési rendszer gondoskodik a kellemes
hőmérsékletről a hideg téli hónapokban.Az ingatlan modern kialakítású, és
kiválóan illeszkedik a környezet kertvárosi jellegéhez.Vegye fel a kapcsolatot
velünk, és tekintse meg ezt az egyedi lehetőséget! ...TOVÁBBI, TÖBBEZRES
INGATLAN KÍNÁLAT: www.gdn-ingatlan.hu - GDN azonosító: 381715
kertvárosi részén.A három szobás ingatlannal egyben 180 m˛-es saját kert is jár,
ami kiváló lehetőséget nyújt pihenésre és szabadidős tevékenységekre. Plusz
kocsi beállás is megoldott.A házhoz tartozik egy 3 m˛-es erkély és egy tágas, 32
m˛-es terasz, kertre néző kilátással, amely tökéletes helyszín a
kikapcsolódáshoz.Az elektromos fűtési rendszer gondoskodik a kellemes
hőmérsékletről a hideg téli hónapokban.Az ingatlan modern kialakítású, és
kiválóan illeszkedik a környezet kertvárosi jellegéhez.Vegye fel a kapcsolatot
velünk, és tekintse meg ezt az egyedi lehetőséget! ...TOVÁBBI, TÖBBEZRES
INGATLAN KÍNÁLAT: www.gdn-ingatlan.hu - GDN azonosító: 381715
Részletek...
Adatlap
| Ár: | 133.900.000 Ft |
| Település: | XVI. kerület |
| A hirdető: | Ingatlaniroda ajánlatából |
| Értékesítés típusa: | Eladó |
| Használtság: | Újszerű |
| Utca: | Baross utca |
| Telek nagysága (m2) : | 280 |
| Épület hasznos területe (m2) : | 104 |
| Szobák száma: | 3 |
| Fűtés: | Egyéb fűtéses |
| Anyaga: | Tégla |
| A hirdető kérése: | Ingatlanközvetítő vagyok - keresse fel Irodánkat! |
| Feladás dátuma: | 2026.01.04 |
| Eddig megtekintették 36 alkalommal | |
A hirdető adatai
Kapcsolat a hirdetővel...
Családi házak rovaton belül a(z) "Eladó házrész Budapest, XVI. kerület, Baross utca" című hirdetést látja. (fent)




























