
Eladó családi ház Zalaegerszeg, Csácsihegy
Felújítást nem igénylő, városra néző panorámával rendelkező, BELSŐ LÉPCSŐVEL
ellátott 65 m2-es lakóterületű házikó eladó, mindössze pár perces autóútra
ZALAEGERSZEG belvárosától egy lakás áráért - csodálatos környezetben!IRÁNYÁRA:
31.900.000 FT. A Csácsi-hegyen vált eladóvá egy szinte végig aszfaltos úton,
télen is könnyedén megközelíthető, LAKHATÁSRA ALKALMAS ingatlan, GARÁZZSAL,
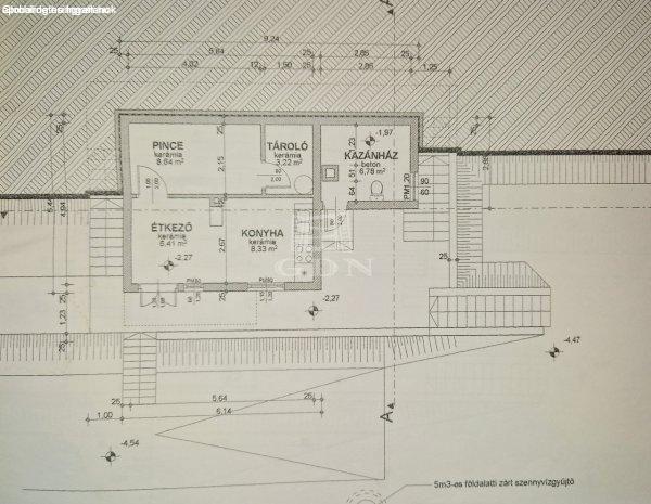
termő gyümölcsfákkal egy mesés, kezelhető nagyságú területen.Az otthon alsó
szintjén található a konyha - étkező együttes, egy spejz, valamint a kazánház.A
középső szint ad helyet egy előtérnek, egy háztartási helyiségnek és az onnan
nyíló fürdőszobának, mely zuhanyzóval és toalettel ellátott, egy nappalinak, az
onnan nyíló erkélynek, mely gyönyörű városi panorámával bír, illetve egy fél
szobának is kiválóan alkalmas helyiségnek a lépcső alatt.A felső szinten
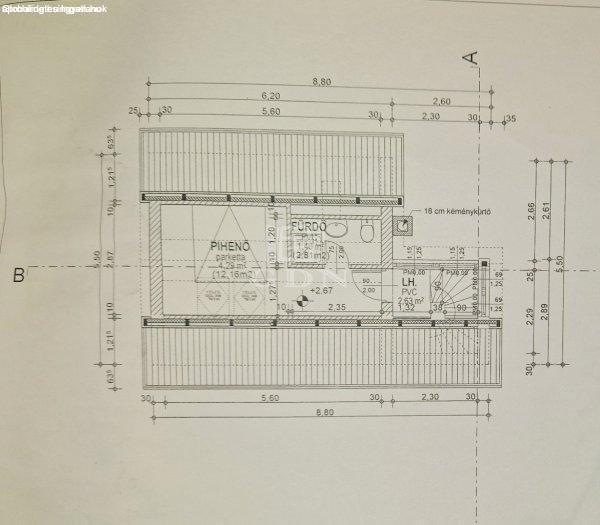
található egy egybefüggő folyosó - végén egy pihenősarokkal - mely ajtóval
elválasztva hálóként funkcionálhat - továbbá ezen a szinten is kialakításra
került egy fürdőszoba, mely fürdőkáddal és toalettel felszerelt. E szinten
mindegy, hogy merre tekintünk, mesés panoráma tárul elénk.Az ingatlan
jellemzői:- Az alsó (konyhaszint) az 1990-es években épült kizárólag TÉGLÁBÓL,
2005-ben épült rá a felső 2 szint,- külső 15 cm-es SZIGETELÉSSEL, vasbeton
födémmel rendelkezik, tetejének fedése cserép, mely szintén szigetelt és
fóliával ellátott.- nyílászárói a legalsó szinten fa, a felső szinteken műanyag
nyílászárók, redőnnyel és szúnyoghálóval felszerelve,- melegvízellátásáért
villanybojler, míg melegéért vegyes tüzelésű kazán gondoskodik lapradiátor
hőleadókkal.-Közművek :Vezetékes víz és áram az ingatlanban található, saját
emésztővel rendelkezik.Az Otthon egy 1355 m2-es területen helyezkedik el, melyen
egy különálló tároló, egy kerti kiülő, kialakított esővízgyűjtő és a
rácsatlakozott kerti csap, valamint GARÁZS is található.Gyümölcsfából sincs
hiány, hiszen a területen megtalálható rengeteg fügefa, körte, barack,
cseresznye, alma, meggy és szilva is.Ajánlom azoknak:-Akik szeretnének csendes,
zajtól mentes környezetben élni, de mégis közel a városhoz.- Akik szeretnek
túrázni, sétálni, hisz ezen a gyönyörű helyen ez könnyen megtehető.- Akik egy
lakás árán (vagy inkább az alatt) szeretnének vásárolni egy területtel
rendelkező ingatlant.FONTOS, hogy az ingatlan művelődési ág alól nincs kivonva,
így KIFÜGGESZTÉSES ELJÁRÁSSAL vásárolható meg, valamint UTCA és HÁZSZÁMMAL
RENDELKEZIK, így a lakcímre való bejelentkezés lehetséges! ...TOVÁBBI, TÖBBEZRES
INGATLAN KÍNÁLAT: www.gdn-ingatlan.hu - GDN azonosító: 388286
ellátott 65 m2-es lakóterületű házikó eladó, mindössze pár perces autóútra
ZALAEGERSZEG belvárosától egy lakás áráért - csodálatos környezetben!IRÁNYÁRA:
31.900.000 FT. A Csácsi-hegyen vált eladóvá egy szinte végig aszfaltos úton,
télen is könnyedén megközelíthető, LAKHATÁSRA ALKALMAS ingatlan, GARÁZZSAL,
termő gyümölcsfákkal egy mesés, kezelhető nagyságú területen.Az otthon alsó
szintjén található a konyha - étkező együttes, egy spejz, valamint a kazánház.A
középső szint ad helyet egy előtérnek, egy háztartási helyiségnek és az onnan
nyíló fürdőszobának, mely zuhanyzóval és toalettel ellátott, egy nappalinak, az
onnan nyíló erkélynek, mely gyönyörű városi panorámával bír, illetve egy fél
szobának is kiválóan alkalmas helyiségnek a lépcső alatt.A felső szinten
található egy egybefüggő folyosó - végén egy pihenősarokkal - mely ajtóval
elválasztva hálóként funkcionálhat - továbbá ezen a szinten is kialakításra
került egy fürdőszoba, mely fürdőkáddal és toalettel felszerelt. E szinten
mindegy, hogy merre tekintünk, mesés panoráma tárul elénk.Az ingatlan
jellemzői:- Az alsó (konyhaszint) az 1990-es években épült kizárólag TÉGLÁBÓL,
2005-ben épült rá a felső 2 szint,- külső 15 cm-es SZIGETELÉSSEL, vasbeton
födémmel rendelkezik, tetejének fedése cserép, mely szintén szigetelt és
fóliával ellátott.- nyílászárói a legalsó szinten fa, a felső szinteken műanyag
nyílászárók, redőnnyel és szúnyoghálóval felszerelve,- melegvízellátásáért
villanybojler, míg melegéért vegyes tüzelésű kazán gondoskodik lapradiátor
hőleadókkal.-Közművek :Vezetékes víz és áram az ingatlanban található, saját
emésztővel rendelkezik.Az Otthon egy 1355 m2-es területen helyezkedik el, melyen
egy különálló tároló, egy kerti kiülő, kialakított esővízgyűjtő és a
rácsatlakozott kerti csap, valamint GARÁZS is található.Gyümölcsfából sincs
hiány, hiszen a területen megtalálható rengeteg fügefa, körte, barack,
cseresznye, alma, meggy és szilva is.Ajánlom azoknak:-Akik szeretnének csendes,
zajtól mentes környezetben élni, de mégis közel a városhoz.- Akik szeretnek
túrázni, sétálni, hisz ezen a gyönyörű helyen ez könnyen megtehető.- Akik egy
lakás árán (vagy inkább az alatt) szeretnének vásárolni egy területtel
rendelkező ingatlant.FONTOS, hogy az ingatlan művelődési ág alól nincs kivonva,
így KIFÜGGESZTÉSES ELJÁRÁSSAL vásárolható meg, valamint UTCA és HÁZSZÁMMAL
RENDELKEZIK, így a lakcímre való bejelentkezés lehetséges! ...TOVÁBBI, TÖBBEZRES
INGATLAN KÍNÁLAT: www.gdn-ingatlan.hu - GDN azonosító: 388286
Részletek...
Adatlap
| Ár: | 31.900.000 Ft |
| Település: | Zalaegerszeg |
| A hirdető: | Ingatlaniroda ajánlatából |
| Értékesítés típusa: | Eladó |
| Használtság: | Használt |
| Utca: | Csácsihegy |
| Telek nagysága (m2) : | 1355 |
| Épület hasznos területe (m2) : | 90 |
| Szobák száma: | 2 |
| Félszobák száma: | 1 |
| Ingatlan állapota: | Felújított |
| Anyaga: | Tégla |
| A hirdető kérése: | Ingatlanközvetítő vagyok - keresse fel Irodánkat! |
| Feladás dátuma: | 2026.03.12 |
| Eddig megtekintették 50 alkalommal | |
A hirdető adatai
Kapcsolat a hirdetővel...
Családi házak rovaton belül a(z) "Eladó családi ház Zalaegerszeg, Csácsihegy" című hirdetést látja. (fent)




























