
Új építésű öko ház eladó!
Új építésű öko ház eladó!Megvételre kínálok kettő vadonatúj,
környezettudatos és energiatakarékos családi házat Szolnok kiemeltövezetében a
Bimbó úton, csendes, mégis jól megközelíthető részén. Az ingatlan a legmodernebb
öko technológiákkal épül, így hosszú távon alacsony rezsiköltséget és kényelmes,
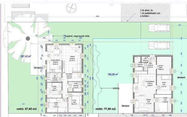
egészséges életteret biztosít.Főbb jellemzők:-Alapterület: 88 m2 illetve 78
m2-Telek: 267 m2 illetve 195 m2-Építés éve: 2025-Energiaellátás: napelem
rendszer, hűtő-fütő klíma, H-tarifa-Szigetelés: prémium, 3 rétegű nyílászárók,
korszerű hőszigetelés-Energetikai besorolás: A++-Kert: természetközeli
kialakítássalElőnyök:-Új építésű-Alacsony fenntartási költségek-Fenntartható és
környezetbarát megoldások-Modern design, világos, tágas belső
terekElhelyezkedés: Szolnok nyugodt részén, jó közlekedéssel, közelben iskola,
óvoda, bolt, játszótérÁr: Irányár 90 millió illetve 80 millióIdeális választás
azoknak, akik modern, energiatakarékos otthonban szeretnének élni,
kompromisszumok nélkül!Ha hirdetésem felkeltette érdeklődését, további
információkért várom megtisztelő hívását a hét bármely napján.Bátaszékiné
TündeHirdesse nálam ingatlanát. Csatlakozzon meglévő kedves ügyfeleim körébe ön
is!
környezettudatos és energiatakarékos családi házat Szolnok kiemeltövezetében a
Bimbó úton, csendes, mégis jól megközelíthető részén. Az ingatlan a legmodernebb
öko technológiákkal épül, így hosszú távon alacsony rezsiköltséget és kényelmes,
egészséges életteret biztosít.Főbb jellemzők:-Alapterület: 88 m2 illetve 78
m2-Telek: 267 m2 illetve 195 m2-Építés éve: 2025-Energiaellátás: napelem
rendszer, hűtő-fütő klíma, H-tarifa-Szigetelés: prémium, 3 rétegű nyílászárók,
korszerű hőszigetelés-Energetikai besorolás: A++-Kert: természetközeli
kialakítássalElőnyök:-Új építésű-Alacsony fenntartási költségek-Fenntartható és
környezetbarát megoldások-Modern design, világos, tágas belső
terekElhelyezkedés: Szolnok nyugodt részén, jó közlekedéssel, közelben iskola,
óvoda, bolt, játszótérÁr: Irányár 90 millió illetve 80 millióIdeális választás
azoknak, akik modern, energiatakarékos otthonban szeretnének élni,
kompromisszumok nélkül!Ha hirdetésem felkeltette érdeklődését, további
információkért várom megtisztelő hívását a hét bármely napján.Bátaszékiné
TündeHirdesse nálam ingatlanát. Csatlakozzon meglévő kedves ügyfeleim körébe ön
is!
Részletek...
Adatlap
| Ár: | 90.000.000 Ft |
| Település: | Szolnok |
| A hirdető: | Ingatlaniroda ajánlatából |
| Értékesítés típusa: | Eladó |
| Telek nagysága (m2) : | 267 |
| Épület hasznos területe (m2) : | 88 |
| Ingatlan állapota: | Normál állapotú |
| Anyaga: | Egyéb anyagból készült épület |
| A hirdető kérése: | Ingatlanközvetítő vagyok - keresse fel Irodánkat! |
| Feladás dátuma: | 2025.12.26 |
| Eddig megtekintették 23 alkalommal | |
A hirdető adatai
Kapcsolat a hirdetővel...
Családi házak rovaton belül a(z) "Új építésű öko ház eladó!" című hirdetést látja. (fent)

























