
Monor kertvárosában 2×2 társasházi lakás épül saját
HASZNÁLJA KI A CSOK+ KAMATTÁMOGATOTT HITEL ELŐNYEIT, A 4% ILLETÉKKEDVEZMÉNYT,
VALAMINT A 3%-OS OTTHON START HITELT!!!!!!10 % FOGLALÓVAL, + 10 % VÉTELÁR
ELŐLEGGEL LEKÖTHETŐ!!!Monor kertvárosában 2×2 társasházi lakás épül, saját
telekkel, közös kocsibeállóval melyek I. ütemének FOGLALÁSA MÁR
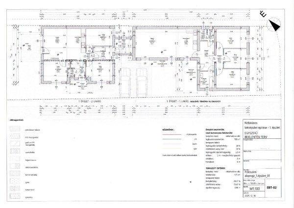
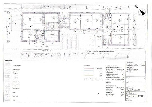
MEGKEZDŐDÖTT!!!Az 1. lakás lakóterülete 92,35 m2, melyben előszoba (8,95 m2),
nappali (24,02 m2), konyha-étkező (12,82 m2), közlekedő (2,80 m2), 1. szoba
(12,14 m2), 2. szoba (9,22 m2), 3. szoba (12,17), fürdőszoba (5,08 m2), WC (3,49
m2), és gépészet (1,66 m2) található, valamint egy fedett terasz (7,69 m2) van a
bejárat előtt.Igény szerint a nappaliból egy 4. szoba (11,61 m2) is
kialakítható, így a nappali (18,29 m2), a konyha-étkező (6,54 m2) lesz.Az
ingatlanhoz kb. 50 m2 saját telek tartozik.Fűtés: hőszivattyúval (?H? tarifa),
hőleadás padlófűtéssel, valamint inverteres klímával.Közművek közül vezetékes
víz, villany (?H? tarifával), és csatorna bevezetésre kerül.Az ingatlan a ?90-es
években épült téglából, ezt újítják fel teljes egészében: új szigetelést,
nyílászárókat, fűtésrendszert, és a vevő által kiválasztott burkolatot kap,
valamint a belső tereket is átalakítják a mai kor elvárásainak megfelelően.ÁRA:
90.000.000.- FtEhhez az ingatlanhoz csatlakozik az új építésű 2. lakás, mellyel
csak a tárolóval ér össze.A 2. lakás lakóterülete 76,18 m2, melyben előszoba
(4,38 m2), nappali (18,52 m2), konyha-étkező (8,48 m2), közlekedő (1,10 m2), 1.
szoba (11,05 m2), 2. szoba (10,30 m2), 3. szoba (10,64), fürdőszoba (5,13 m2),
WC (1,17 m2), és tároló (5,46 m2) található, valamint egy előlépcső (4,16 m2),
és egy terasz (11,70 m2) kapcsolódik a nappalihoz.Fűtés: hőszivattyúval (?H?
tarifa), hőleadás padlófűtéssel, valamint inverteres klímával.Közművek közül a
villany (?H? tarifával), vezetékes víz kerül bevezetésre, a szennyvízelvezetés
emésztőbe történik.ÁRA: 83.800.000.- FtElektromos kapu!Burkolatok 8.000.- Ft/m2
árig választhatóak.Átadás: 2026. IV. negyedévAZ ELKÉSZÜLT INGATLANOKRÓL
FELTÖLTÖTT KÉPEK A VÁLLALKOZÓ ÁLTAL ÉPÍTETT INGATLANOK
REFERENCIAMUNKÁI!!!DÍJMENTES HITELÜGYINTÉZÉS IRODÁNKBAN!!!OTTHON START HITEL,
CSOK+, BABAVÁRÓ KÖLCSÖN, KAMATTÁMOGATOTT LAKÁSHITELEK, ?.2003 ÓTA AZ ÖNÖK
BIZALMÁBAN!
VALAMINT A 3%-OS OTTHON START HITELT!!!!!!10 % FOGLALÓVAL, + 10 % VÉTELÁR
ELŐLEGGEL LEKÖTHETŐ!!!Monor kertvárosában 2×2 társasházi lakás épül, saját
telekkel, közös kocsibeállóval melyek I. ütemének FOGLALÁSA MÁR
MEGKEZDŐDÖTT!!!Az 1. lakás lakóterülete 92,35 m2, melyben előszoba (8,95 m2),
nappali (24,02 m2), konyha-étkező (12,82 m2), közlekedő (2,80 m2), 1. szoba
(12,14 m2), 2. szoba (9,22 m2), 3. szoba (12,17), fürdőszoba (5,08 m2), WC (3,49
m2), és gépészet (1,66 m2) található, valamint egy fedett terasz (7,69 m2) van a
bejárat előtt.Igény szerint a nappaliból egy 4. szoba (11,61 m2) is
kialakítható, így a nappali (18,29 m2), a konyha-étkező (6,54 m2) lesz.Az
ingatlanhoz kb. 50 m2 saját telek tartozik.Fűtés: hőszivattyúval (?H? tarifa),
hőleadás padlófűtéssel, valamint inverteres klímával.Közművek közül vezetékes
víz, villany (?H? tarifával), és csatorna bevezetésre kerül.Az ingatlan a ?90-es
években épült téglából, ezt újítják fel teljes egészében: új szigetelést,
nyílászárókat, fűtésrendszert, és a vevő által kiválasztott burkolatot kap,
valamint a belső tereket is átalakítják a mai kor elvárásainak megfelelően.ÁRA:
90.000.000.- FtEhhez az ingatlanhoz csatlakozik az új építésű 2. lakás, mellyel
csak a tárolóval ér össze.A 2. lakás lakóterülete 76,18 m2, melyben előszoba
(4,38 m2), nappali (18,52 m2), konyha-étkező (8,48 m2), közlekedő (1,10 m2), 1.
szoba (11,05 m2), 2. szoba (10,30 m2), 3. szoba (10,64), fürdőszoba (5,13 m2),
WC (1,17 m2), és tároló (5,46 m2) található, valamint egy előlépcső (4,16 m2),
és egy terasz (11,70 m2) kapcsolódik a nappalihoz.Fűtés: hőszivattyúval (?H?
tarifa), hőleadás padlófűtéssel, valamint inverteres klímával.Közművek közül a
villany (?H? tarifával), vezetékes víz kerül bevezetésre, a szennyvízelvezetés
emésztőbe történik.ÁRA: 83.800.000.- FtElektromos kapu!Burkolatok 8.000.- Ft/m2
árig választhatóak.Átadás: 2026. IV. negyedévAZ ELKÉSZÜLT INGATLANOKRÓL
FELTÖLTÖTT KÉPEK A VÁLLALKOZÓ ÁLTAL ÉPÍTETT INGATLANOK
REFERENCIAMUNKÁI!!!DÍJMENTES HITELÜGYINTÉZÉS IRODÁNKBAN!!!OTTHON START HITEL,
CSOK+, BABAVÁRÓ KÖLCSÖN, KAMATTÁMOGATOTT LAKÁSHITELEK, ?.2003 ÓTA AZ ÖNÖK
BIZALMÁBAN!
Részletek...
Adatlap
| Ár: | 90.000.000 Ft |
| Település: | Monor |
| A hirdető: | Ingatlaniroda ajánlatából |
| Értékesítés típusa: | Eladó |
| Használtság: | Használt |
| Utca: | Juditingatlan és Hiteliroda |
| Telek nagysága (m2) : | 100 |
| Épület hasznos területe (m2) : | 92 |
| Szobák száma: | 3 |
| Félszobák száma: | 1 |
| Komfort: | Összkomfortos |
| Fűtés: | Egyéb fűtéses |
| Ingatlan állapota: | Felújított |
| Anyaga: | Tégla |
| Extrák: | inverteres klíma, elektromos kapu, redőny,... |
| A hirdető kérése: | Ingatlanközvetítő vagyok - keresse fel Irodánkat! |
| Feladás dátuma: | 2026.05.14 |
| Eddig megtekintették 63 alkalommal | |
A hirdető adatai
Kapcsolat a hirdetővel...
Családi házak rovaton belül a(z) "Monor kertvárosában 2×2 társasházi lakás épül saját" című hirdetést látja. (fent)




























