
Monor kertvárosában 2×2 társasházi lakás épül saját
HASZNÁLJA KI A CSOK+ KAMATTÁMOGATOTT HITEL ELŐNYEIT, A 4% ILLETÉKKEDVEZMÉNYT,
VALAMINT A 3%-OS OTTHON START HITELT!!!!!!10 % FOGLALÓVAL, + 10 % VÉTELÁR
ELŐLEGGEL LEKÖTHETŐ!!!Monor kertvárosában 2×2 társasházi lakás épül, saját
telekkel, közös kocsibeállóval melyek I. ütemének FOGLALÁSA MÁR
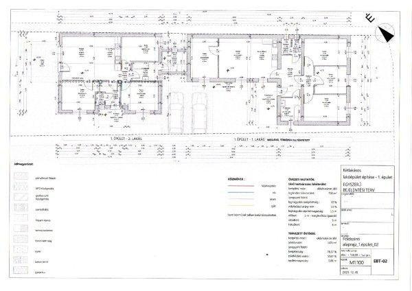
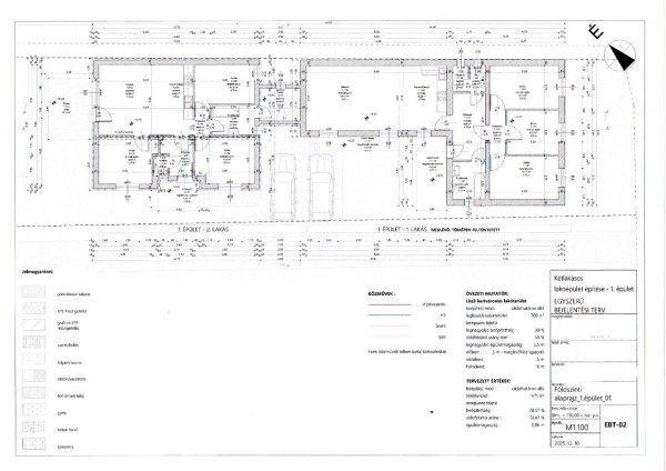
MEGKEZDŐDÖTT!!!Az 1. lakás lakóterülete 92,35 m2, melyben előszoba (8,95 m2),
nappali (24,02 m2), konyha-étkező (12,82 m2), közlekedő (2,80 m2), 1. szoba
(12,14 m2), 2. szoba (9,22 m2), 3. szoba (12,17), fürdőszoba (5,08 m2), WC (3,49
m2), és gépészet (1,66 m2) található, valamint egy fedett terasz (7,69 m2) van a
bejárat előtt.Igény szerint a nappaliból egy 4. szoba (11,61 m2) is
kialakítható, így a nappali (18,29 m2), a konyha-étkező (6,54 m2) lesz.Az
ingatlanhoz kb. 100 m2 saját telek tartozik.Fűtés: hőszivattyúval (?H? tarifa),
hőleadás padlófűtéssel, valamint inverteres klímával.Közművek közül vezetékes
víz, villany (?H? tarifával), és csatorna bevezetésre kerül.Az ingatlan a ?90-es
években épült téglából, ezt újítják fel teljes egészében: új szigetelést,
nyílászárókat, fűtésrendszert, és a vevő által kiválasztott burkolatot kap,
valamint a belső tereket is átalakítják a mai kor elvárásainak megfelelően.ÁRA:
90.000.000.- FtEhhez az ingatlanhoz csatlakozik az új építésű 2. lakás, mellyel
csak a tárolóval ér össze.A 2. lakás lakóterülete 76,18 m2, melyben előszoba
(4,38 m2), nappali (18,52 m2), konyha-étkező (8,48 m2), közlekedő (1,10 m2), 1.
szoba (11,05 m2), 2. szoba (10,30 m2), 3. szoba (10,64), fürdőszoba (5,13 m2),
WC (1,17 m2), és tároló (5,46 m2) található, valamint egy előlépcső (4,16 m2),
és egy terasz (11,70 m2) kapcsolódik a nappalihoz.Az ingatlanhoz kb. 150 m2
saját telek tartozik.Fűtés: hőszivattyúval (?H? tarifa), hőleadás padlófűtéssel,
valamint inverteres klímával.Közművek közül a villany (?H? tarifával), vezetékes
víz kerül bevezetésre, a szennyvízelvezetés zárt rendszerű emésztőbe
történik.ÁRA: 83.800.000.- FtElektromos kapu!Burkolatok 8.000.- Ft/m2 árig
választhatóak.Átadás: 2026. IV. negyedévAZ ELKÉSZÜLT INGATLANOKRÓL FELTÖLTÖTT
KÉPEK A VÁLLALKOZÓ ÁLTAL ÉPÍTETT INGATLANOK REFERENCIAMUNKÁI!!!DÍJMENTES
HITELÜGYINTÉZÉS IRODÁNKBAN!!!OTTHON START HITEL, CSOK+, BABAVÁRÓ KÖLCSÖN,
KAMATTÁMOGATOTT LAKÁSHITELEK, ?.2003 ÓTA AZ ÖNÖK BIZALMÁBAN!
VALAMINT A 3%-OS OTTHON START HITELT!!!!!!10 % FOGLALÓVAL, + 10 % VÉTELÁR
ELŐLEGGEL LEKÖTHETŐ!!!Monor kertvárosában 2×2 társasházi lakás épül, saját
telekkel, közös kocsibeállóval melyek I. ütemének FOGLALÁSA MÁR
MEGKEZDŐDÖTT!!!Az 1. lakás lakóterülete 92,35 m2, melyben előszoba (8,95 m2),
nappali (24,02 m2), konyha-étkező (12,82 m2), közlekedő (2,80 m2), 1. szoba
(12,14 m2), 2. szoba (9,22 m2), 3. szoba (12,17), fürdőszoba (5,08 m2), WC (3,49
m2), és gépészet (1,66 m2) található, valamint egy fedett terasz (7,69 m2) van a
bejárat előtt.Igény szerint a nappaliból egy 4. szoba (11,61 m2) is
kialakítható, így a nappali (18,29 m2), a konyha-étkező (6,54 m2) lesz.Az
ingatlanhoz kb. 100 m2 saját telek tartozik.Fűtés: hőszivattyúval (?H? tarifa),
hőleadás padlófűtéssel, valamint inverteres klímával.Közművek közül vezetékes
víz, villany (?H? tarifával), és csatorna bevezetésre kerül.Az ingatlan a ?90-es
években épült téglából, ezt újítják fel teljes egészében: új szigetelést,
nyílászárókat, fűtésrendszert, és a vevő által kiválasztott burkolatot kap,
valamint a belső tereket is átalakítják a mai kor elvárásainak megfelelően.ÁRA:
90.000.000.- FtEhhez az ingatlanhoz csatlakozik az új építésű 2. lakás, mellyel
csak a tárolóval ér össze.A 2. lakás lakóterülete 76,18 m2, melyben előszoba
(4,38 m2), nappali (18,52 m2), konyha-étkező (8,48 m2), közlekedő (1,10 m2), 1.
szoba (11,05 m2), 2. szoba (10,30 m2), 3. szoba (10,64), fürdőszoba (5,13 m2),
WC (1,17 m2), és tároló (5,46 m2) található, valamint egy előlépcső (4,16 m2),
és egy terasz (11,70 m2) kapcsolódik a nappalihoz.Az ingatlanhoz kb. 150 m2
saját telek tartozik.Fűtés: hőszivattyúval (?H? tarifa), hőleadás padlófűtéssel,
valamint inverteres klímával.Közművek közül a villany (?H? tarifával), vezetékes
víz kerül bevezetésre, a szennyvízelvezetés zárt rendszerű emésztőbe
történik.ÁRA: 83.800.000.- FtElektromos kapu!Burkolatok 8.000.- Ft/m2 árig
választhatóak.Átadás: 2026. IV. negyedévAZ ELKÉSZÜLT INGATLANOKRÓL FELTÖLTÖTT
KÉPEK A VÁLLALKOZÓ ÁLTAL ÉPÍTETT INGATLANOK REFERENCIAMUNKÁI!!!DÍJMENTES
HITELÜGYINTÉZÉS IRODÁNKBAN!!!OTTHON START HITEL, CSOK+, BABAVÁRÓ KÖLCSÖN,
KAMATTÁMOGATOTT LAKÁSHITELEK, ?.2003 ÓTA AZ ÖNÖK BIZALMÁBAN!
Részletek...
Adatlap
| Ár: | 83.800.000 Ft |
| Település: | Monor |
| A hirdető: | Ingatlaniroda ajánlatából |
| Értékesítés típusa: | Eladó |
| Használtság: | Új építésű |
| Utca: | Juditingatlan és Hiteliroda |
| Telek nagysága (m2) : | 150 |
| Épület hasznos területe (m2) : | 76 |
| Szobák száma: | 1 |
| Félszobák száma: | 3 |
| Komfort: | Összkomfortos |
| Fűtés: | Egyéb fűtéses |
| Ingatlan állapota: | Felújított |
| Anyaga: | Tégla |
| Extrák: | inverteres klíma, elektromos kapu, redőny,... |
| A hirdető kérése: | Ingatlanközvetítő vagyok - keresse fel Irodánkat! |
| Feladás dátuma: | 2026.04.14 |
| Eddig megtekintették 49 alkalommal | |
A hirdető adatai
Kapcsolat a hirdetővel...
Családi házak rovaton belül a(z) "Monor kertvárosában 2×2 társasházi lakás épül saját" című hirdetést látja. (fent)




























