
Eladó Kulcsra Kész Újépítésű Ikerházfél Héderváron!
Ne maradjon le erről a modern, energiatakarékos otthonról Hédervár csendes,
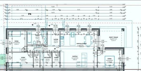
fejlődő környékén!Főbb Jellemzők: Állapot: Kulcsrakész átadás (konyhabútor
nélkül). Méret: 100,60 m˛ nettó lakóterület, plusz egy tágas, 12,93 m˛-es fedett
terasz. Elosztás: Ideális elrendezésű, 3 hálószobával, amerikai konyhás
nappali-étkezővel (18,45 m˛ + 19,68 m˛), fürdőszobával (7,58 m˛), külön WC-vel,
háztartási helyiséggel és kamrával. Kivitelezés: Minőségi anyagok, Porotherm 25
N+F falazat 20 cm vastag Austrotherm hőszigeteléssel. 3 rétegű hőszigetelt
műanyag nyílászárók és antracit színű Bramac tetőcserép. Elektromos
padlófűtés Telek: Az ikerház egy 1028 m˛-es telken helyezkedik el. Ár: Bruttó
74.900.000 FtTökéletes választás azoknak, akik egy nyugodt, de mégis modern
környezetben képzelik el a jövőjüket. További információkért és megtekintésért
keressen minket bizalommal!
fejlődő környékén!Főbb Jellemzők: Állapot: Kulcsrakész átadás (konyhabútor
nélkül). Méret: 100,60 m˛ nettó lakóterület, plusz egy tágas, 12,93 m˛-es fedett
terasz. Elosztás: Ideális elrendezésű, 3 hálószobával, amerikai konyhás
nappali-étkezővel (18,45 m˛ + 19,68 m˛), fürdőszobával (7,58 m˛), külön WC-vel,
háztartási helyiséggel és kamrával. Kivitelezés: Minőségi anyagok, Porotherm 25
N+F falazat 20 cm vastag Austrotherm hőszigeteléssel. 3 rétegű hőszigetelt
műanyag nyílászárók és antracit színű Bramac tetőcserép. Elektromos
padlófűtés Telek: Az ikerház egy 1028 m˛-es telken helyezkedik el. Ár: Bruttó
74.900.000 FtTökéletes választás azoknak, akik egy nyugodt, de mégis modern
környezetben képzelik el a jövőjüket. További információkért és megtekintésért
keressen minket bizalommal!
Részletek...
Adatlap
| Ár: | 74.900.000 Ft |
| Település: | Hédervár |
| A hirdető: | Ingatlaniroda ajánlatából |
| Értékesítés típusa: | Eladó |
| Használtság: | Új építésű |
| Telek nagysága (m2) : | 514 |
| Épület hasznos területe (m2) : | 100.00 |
| Szobák száma: | 4 |
| Feladás dátuma: | 2025.12.29 |
| Eddig megtekintették 9 alkalommal | |
A hirdető adatai
Kapcsolat a hirdetővel...
Családi házak rovaton belül a(z) "Eladó Kulcsra Kész Újépítésű Ikerházfél Héderváron!" című hirdetést látja. (fent)




























