
4654: Alsó-Göd, csendes kertvárosi részén, ÚJ ÉPÍTÉSŰ, CSALÁ
Alsó-Göd, csendes kertvárosi részén, ÚJ ÉPÍTÉSŰ, CSALÁDI HÁZ eladó!A
csendes, kertvárosi részen épülő ház 560 nm-es telekre épül, belső-kétszintes,
bruttó 216 nm, nettó lakóterülete 166 nm + garázs + 2 terasz, amerikai-konyhás
nappali + 4 szobás, dupla komfortos elrendezéssel.CÉGES ÉPÍTKEZÉS, a 2024-től
aktuális állami támogatások valamint kedvezményes, kamattámogatott hitelek
felvehetőek, CSOK PLUS, babaváró is igényelhető, az ügyintézésben díjmentesen
segítünk!Az építő munkájára jellemző a megbízhatóság és igényesség,
leinformálható, referencia házai megtekinthetők.A telek nyugati, utcai oldalán
található a gépkocsi és személy bejárati kapu is, az előkerten burkolt járdán és
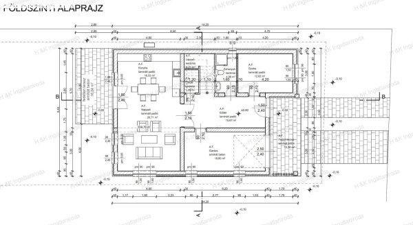
kapubehajtón jutunk a házhoz.A földszint 117,09 nm: a házba belépve az előtérbe
érkezünk, ahonnan feltárul a nagy nappali- étkező-konyha, szemben az emeletre
vezető lépcső (alatt tároló), balra fordulva pedig egy WC + zuhanyzó és egy
nagyméretű szoba valamint a lakáskapcsolatos garázs.Az emelet 64,24 nm, ahol 3
szoba, egy fürdő, egy külön WC, valamint egy gépészeti helyiség található, ami
mosókonyhaként is funkcionálhat.Rövid műszaki tartalom:A ház kitűnő minőségben
30-as téglából épül + 10 cm külső dryvit szigeteléssel.A külső nyílászárók fehér
színű, hőszigetelő üvegezésű műanyag ablakok és ajtók.Fűtés ? hűtés: A fűtési
energia előállítás feladatát egyrészt a tervezett kondenzációs kazán, másrészt
két levegő-levegő hőszivattyús egység (2 hűtő-fűtő klíma) biztosítja, mely
rendszer nyáron biztosítani tudja a hűtést is. A kazán az emeleti gépészeti
helyiségben kerül elhelyezésre.Burkolatok, szaniterek, belső ajtók választhatók,
a belső műszaki tartalomba megjelölt összegig a vételár részét
képezve.Infrastruktúra: óvoda, iskola, boltok, orvosi rendelő, vasútállomás,
buszmegálló gyalogosan pár perc alatt elérhetők.Irányára kulcsrakészen:
184.900.000.- FtAzonosító: 4654
csendes, kertvárosi részen épülő ház 560 nm-es telekre épül, belső-kétszintes,
bruttó 216 nm, nettó lakóterülete 166 nm + garázs + 2 terasz, amerikai-konyhás
nappali + 4 szobás, dupla komfortos elrendezéssel.CÉGES ÉPÍTKEZÉS, a 2024-től
aktuális állami támogatások valamint kedvezményes, kamattámogatott hitelek
felvehetőek, CSOK PLUS, babaváró is igényelhető, az ügyintézésben díjmentesen
segítünk!Az építő munkájára jellemző a megbízhatóság és igényesség,
leinformálható, referencia házai megtekinthetők.A telek nyugati, utcai oldalán
található a gépkocsi és személy bejárati kapu is, az előkerten burkolt járdán és
kapubehajtón jutunk a házhoz.A földszint 117,09 nm: a házba belépve az előtérbe
érkezünk, ahonnan feltárul a nagy nappali- étkező-konyha, szemben az emeletre
vezető lépcső (alatt tároló), balra fordulva pedig egy WC + zuhanyzó és egy
nagyméretű szoba valamint a lakáskapcsolatos garázs.Az emelet 64,24 nm, ahol 3
szoba, egy fürdő, egy külön WC, valamint egy gépészeti helyiség található, ami
mosókonyhaként is funkcionálhat.Rövid műszaki tartalom:A ház kitűnő minőségben
30-as téglából épül + 10 cm külső dryvit szigeteléssel.A külső nyílászárók fehér
színű, hőszigetelő üvegezésű műanyag ablakok és ajtók.Fűtés ? hűtés: A fűtési
energia előállítás feladatát egyrészt a tervezett kondenzációs kazán, másrészt
két levegő-levegő hőszivattyús egység (2 hűtő-fűtő klíma) biztosítja, mely
rendszer nyáron biztosítani tudja a hűtést is. A kazán az emeleti gépészeti
helyiségben kerül elhelyezésre.Burkolatok, szaniterek, belső ajtók választhatók,
a belső műszaki tartalomba megjelölt összegig a vételár részét
képezve.Infrastruktúra: óvoda, iskola, boltok, orvosi rendelő, vasútállomás,
buszmegálló gyalogosan pár perc alatt elérhetők.Irányára kulcsrakészen:
184.900.000.- FtAzonosító: 4654
Részletek...
Adatlap
| Ár: | 184.900.000 Ft |
| Település: | Göd |
| A hirdető: | Ingatlaniroda ajánlatából |
| Értékesítés típusa: | Eladó |
| Telek nagysága (m2) : | 560 |
| Épület hasznos területe (m2) : | 198 |
| Szobák száma: | 5 |
| Komfort: | Duplakomfortos |
| Fűtés: | Egyéb fűtéses |
| Ingatlan állapota: | Normál állapotú |
| Anyaga: | Tégla |
| A hirdető kérése: | Ingatlanközvetítő vagyok - keresse fel Irodánkat! |
| Feladás dátuma: | 2026.03.20 |
| Eddig megtekintették 21 alkalommal | |
A hirdető adatai
Kapcsolat a hirdetővel...
Családi házak rovaton belül a(z) "4654: Alsó-Göd, csendes kertvárosi részén, ÚJ ÉPÍTÉSŰ, CSALÁ" című hirdetést látja. (fent)




























