
4671/2: Alsógöd, kertvárosi részén épülő ikerház mindkét fel
Kedves Otthonkereső!!Alsógöd, kertvárosi részén épülő ikerház mindkét
fele eladó!!! CÉGES ÉPÍTKEZÉS, az aktuális állami támogatások valamint
kedvezményes, kamattámogatott hitelek felvehetőek ? akár a 3%-os OTTHON START
hitel, CSOK PLUS, babaváró is igényelhető, az ügyintézésben díjmentesen
segítünk! Az építő munkájára jellemző a megbízhatóság és igényesség,
leinformálható, referencia házai megtekinthetők. A ház 1488 nm-es telekre épül,
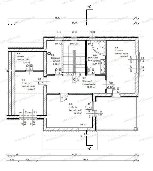
a lakások belső kialakítása megegyezik.Nettó 160,13 nm (lakótér + garázs) +
erkély és terasz, belső-kétszintes, amerikai-konyhás nappali + 4 szobás +
gardrób, dupla komfortos, garázsos elrendezéssel.Kényelmes, nagyméretű
szobákkal, nagy terekkel rendelkezik.Az utcafronti lakáshoz 588 nm, a belső
lakáshoz 650 nm kizárólagos használatú telekrész tartozik, valamint egy 250
nm-es közös terület is a lakók rendelkezésére áll.Rövid műszaki tartalom:A ház
30-as téglából épül + 10 cm-es külső dryvit szigetelést kap.A tető betoncserép
fedést kap.A külső nyílászárók, műanyag szerkezetű, hőszigetelő üvegezéssel
kerülnek beépítésre.A fűtést korszerű hőszivattyú biztosítja, a hő leadás
padlófűtéssel történik.2 db inverteres klíma is beépítésre kerül, mely a vételár
részét képezi. Az ingatlan kulcsrakész állapotban kerül átadásra, konyhabútor
nélkül.Az ingatlan jelenleg építés alatt áll, így az új tulajdonosnak lehetősége
van a burkolatok, szaniterek és belső ajtók kiválasztására a műszaki tartalomban
feltüntetett keretösszegig a vételár részét képezve. A látványterv a lehetséges
kialakítást és hangulatot szemlélteti. A tényleges megvalósítás az alaprajz és
műszaki tartalom szerint történik. A berendezett kép csak egy látványterv, hogy
könnyebb legyen elképzelni a tér lehetőségeit ? az ingatlan a valóságban
bútorozatlan.Az utcafronti ház ára: 165.900.000.- Ft (588 nm-es kizárólagos
telekrésszel) ? 4671/1A belső ház ára: 167.900.000.- Ft (650 nm-es kizárólagos
telekrésszel) ? 4671/2
fele eladó!!! CÉGES ÉPÍTKEZÉS, az aktuális állami támogatások valamint
kedvezményes, kamattámogatott hitelek felvehetőek ? akár a 3%-os OTTHON START
hitel, CSOK PLUS, babaváró is igényelhető, az ügyintézésben díjmentesen
segítünk! Az építő munkájára jellemző a megbízhatóság és igényesség,
leinformálható, referencia házai megtekinthetők. A ház 1488 nm-es telekre épül,
a lakások belső kialakítása megegyezik.Nettó 160,13 nm (lakótér + garázs) +
erkély és terasz, belső-kétszintes, amerikai-konyhás nappali + 4 szobás +
gardrób, dupla komfortos, garázsos elrendezéssel.Kényelmes, nagyméretű
szobákkal, nagy terekkel rendelkezik.Az utcafronti lakáshoz 588 nm, a belső
lakáshoz 650 nm kizárólagos használatú telekrész tartozik, valamint egy 250
nm-es közös terület is a lakók rendelkezésére áll.Rövid műszaki tartalom:A ház
30-as téglából épül + 10 cm-es külső dryvit szigetelést kap.A tető betoncserép
fedést kap.A külső nyílászárók, műanyag szerkezetű, hőszigetelő üvegezéssel
kerülnek beépítésre.A fűtést korszerű hőszivattyú biztosítja, a hő leadás
padlófűtéssel történik.2 db inverteres klíma is beépítésre kerül, mely a vételár
részét képezi. Az ingatlan kulcsrakész állapotban kerül átadásra, konyhabútor
nélkül.Az ingatlan jelenleg építés alatt áll, így az új tulajdonosnak lehetősége
van a burkolatok, szaniterek és belső ajtók kiválasztására a műszaki tartalomban
feltüntetett keretösszegig a vételár részét képezve. A látványterv a lehetséges
kialakítást és hangulatot szemlélteti. A tényleges megvalósítás az alaprajz és
műszaki tartalom szerint történik. A berendezett kép csak egy látványterv, hogy
könnyebb legyen elképzelni a tér lehetőségeit ? az ingatlan a valóságban
bútorozatlan.Az utcafronti ház ára: 165.900.000.- Ft (588 nm-es kizárólagos
telekrésszel) ? 4671/1A belső ház ára: 167.900.000.- Ft (650 nm-es kizárólagos
telekrésszel) ? 4671/2
Részletek...
Adatlap
| Ár: | 167.900.000 Ft |
| Település: | Göd |
| A hirdető: | Ingatlaniroda ajánlatából |
| Értékesítés típusa: | Eladó |
| Telek nagysága (m2) : | 650 |
| Épület hasznos területe (m2) : | 180 |
| Szobák száma: | 5 |
| Komfort: | Duplakomfortos |
| Ingatlan állapota: | Normál állapotú |
| Anyaga: | Tégla |
| A hirdető kérése: | Ingatlanközvetítő vagyok - keresse fel Irodánkat! |
| Feladás dátuma: | 2026.04.17 |
| Eddig megtekintették 29 alkalommal | |
A hirdető adatai
Kapcsolat a hirdetővel...
Családi házak rovaton belül a(z) "4671/2: Alsógöd, kertvárosi részén épülő ikerház mindkét fel" című hirdetést látja. (fent)




























