
4651/1: Új építésű, földszintes családi házak Erdőkertesen!
Kedves Otthonkereső!Új építésű, földszintes családi házak
Erdőkertesen!CÉGES ÉPÍTKEZÉS, az aktuális állami támogatások valamint
kedvezményes, kamattámogatott hitelek felvehetőek ? akár a 3%-os OTTHON START
hitel, CSOK PLUS, babaváró is igényelhető, az ügyintézésben díjmentesen
segítünk!Az építő munkájára jellemző a megbízhatóság és igényesség,
leinformálható, referencia házai megtekinthetők.Az ingatlanok elrendezése
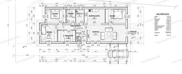
kiváló: 112 nm hasznos alapterület (+ 8 nm terasz), nappali + 4 szoba,
dupla-komfortos kialakítással, lakásonként nagy telekrészekkel (1-es lakás kb.
600 nm, 2-es lakás kb. 690 nm).Az ingatlanok csak a fedett beállónál
érintkeznek, közös faluk nincs!Rövid műszaki leírás:A ház falai 30-as PTH
téglából épülnek, 10 cm grafitos homlokzati szigeteléssel, E-gerendás födémmel.A
tető szerkezete betoncseréppel lesz fedve, antracit színben.Az ablakok műanyag
szerkezetűek, 3 rétegű hőszigetelő üvegezéssel, fehér színben.A fűtés és meleg
vízellátás hőszivattyúval kerül kialakításra, a hő leadás padlófűtéssel
történik.Kiegészítésként hűtő-fűtő klíma lesz használható, melynek az
előkészítése a vételár részét képezi.Helyiségek:Nappali 29,27 nm, konyha 13,8
nm, négy szoba 12,9 - 12,24 - 12 és 8,8 nm, fürdőszoba 5,7 nm, háztartási
helyiség 5,1 nm, WC 1,7 nm, előtér 3,72 nm, közlekedő 6,7 nm, terasz 8,4
nm.Parkolás zárt udvari beállón kerül kialakításra.Az ingatlan kulcsrakész
állapotban kerül átadásra, konyhabútor nélkül.Belső nyílászárók, szaniterek és a
burkolatok választhatók, a belső műszaki tartalomban megjelölt összegig a
vételár részét képezik.A fotókon az építő már elkészült azonos kialakítású háza
látható.Kulcsrakész ár: 104.900.000.- FtAzonosító: 4651/1-es lakás
Erdőkertesen!CÉGES ÉPÍTKEZÉS, az aktuális állami támogatások valamint
kedvezményes, kamattámogatott hitelek felvehetőek ? akár a 3%-os OTTHON START
hitel, CSOK PLUS, babaváró is igényelhető, az ügyintézésben díjmentesen
segítünk!Az építő munkájára jellemző a megbízhatóság és igényesség,
leinformálható, referencia házai megtekinthetők.Az ingatlanok elrendezése
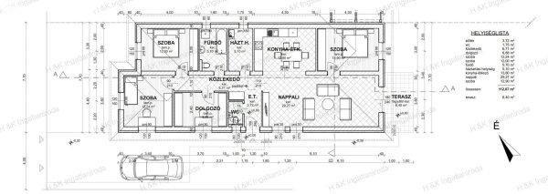
kiváló: 112 nm hasznos alapterület (+ 8 nm terasz), nappali + 4 szoba,
dupla-komfortos kialakítással, lakásonként nagy telekrészekkel (1-es lakás kb.
600 nm, 2-es lakás kb. 690 nm).Az ingatlanok csak a fedett beállónál
érintkeznek, közös faluk nincs!Rövid műszaki leírás:A ház falai 30-as PTH
téglából épülnek, 10 cm grafitos homlokzati szigeteléssel, E-gerendás födémmel.A
tető szerkezete betoncseréppel lesz fedve, antracit színben.Az ablakok műanyag
szerkezetűek, 3 rétegű hőszigetelő üvegezéssel, fehér színben.A fűtés és meleg
vízellátás hőszivattyúval kerül kialakításra, a hő leadás padlófűtéssel
történik.Kiegészítésként hűtő-fűtő klíma lesz használható, melynek az
előkészítése a vételár részét képezi.Helyiségek:Nappali 29,27 nm, konyha 13,8
nm, négy szoba 12,9 - 12,24 - 12 és 8,8 nm, fürdőszoba 5,7 nm, háztartási
helyiség 5,1 nm, WC 1,7 nm, előtér 3,72 nm, közlekedő 6,7 nm, terasz 8,4
nm.Parkolás zárt udvari beállón kerül kialakításra.Az ingatlan kulcsrakész
állapotban kerül átadásra, konyhabútor nélkül.Belső nyílászárók, szaniterek és a
burkolatok választhatók, a belső műszaki tartalomban megjelölt összegig a
vételár részét képezik.A fotókon az építő már elkészült azonos kialakítású háza
látható.Kulcsrakész ár: 104.900.000.- FtAzonosító: 4651/1-es lakás
Részletek...
Adatlap
| Ár: | 104.900.000 Ft |
| Település: | Erdőkertes |
| A hirdető: | Ingatlaniroda ajánlatából |
| Értékesítés típusa: | Eladó |
| Telek nagysága (m2) : | 600 |
| Épület hasznos területe (m2) : | 116 |
| Szobák száma: | 5 |
| Komfort: | Duplakomfortos |
| Ingatlan állapota: | Normál állapotú |
| Anyaga: | Tégla |
| A hirdető kérése: | Ingatlanközvetítő vagyok - keresse fel Irodánkat! |
| Feladás dátuma: | 2026.04.19 |
| Eddig megtekintették 40 alkalommal | |
A hirdető adatai
Kapcsolat a hirdetővel...
Családi házak rovaton belül a(z) "4651/1: Új építésű, földszintes családi házak Erdőkertesen!" című hirdetést látja. (fent)




























